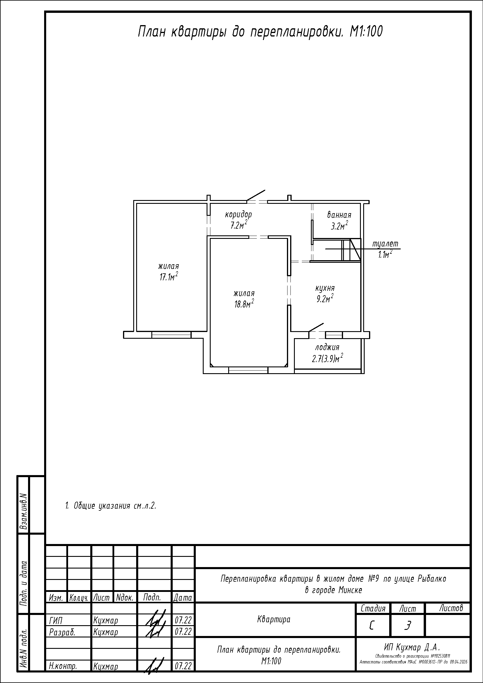
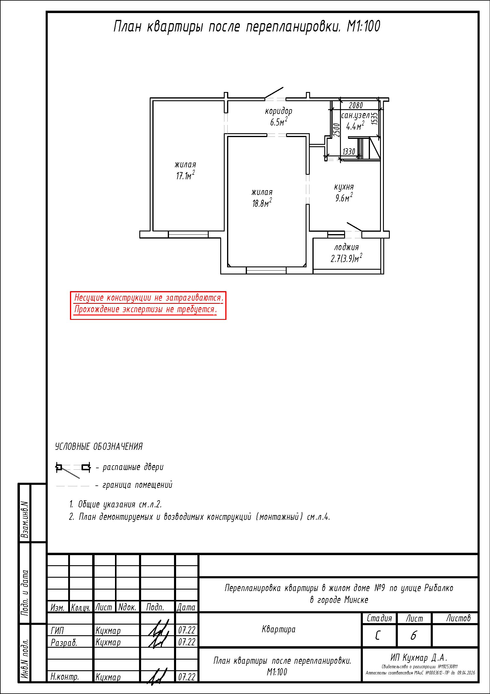
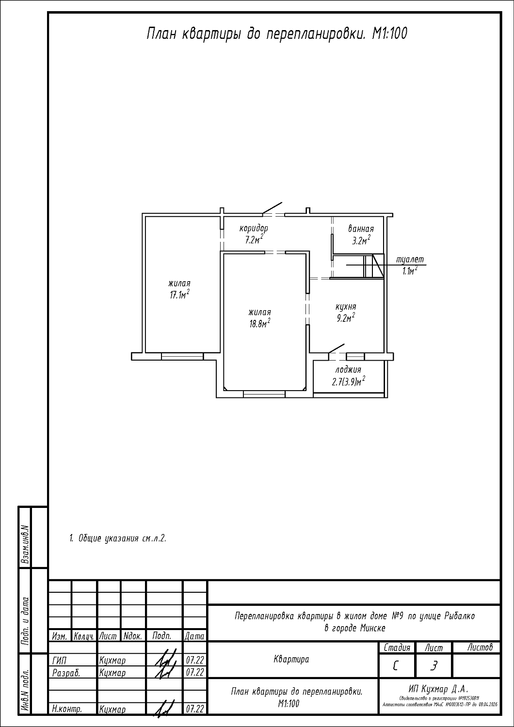
Перепланировка квартиры по ул. Рыбалко, 9 в ЖК «Антоновский квартал»
Пожелания заказчика:
- Устройство санузла на площадях существующей ванной, туалета и части площади коридора;
- Устройство панорамного окна в существующем дверном проёме кухни в лоджию;
- Устройство кухни на площади существующей и части площади коридора;
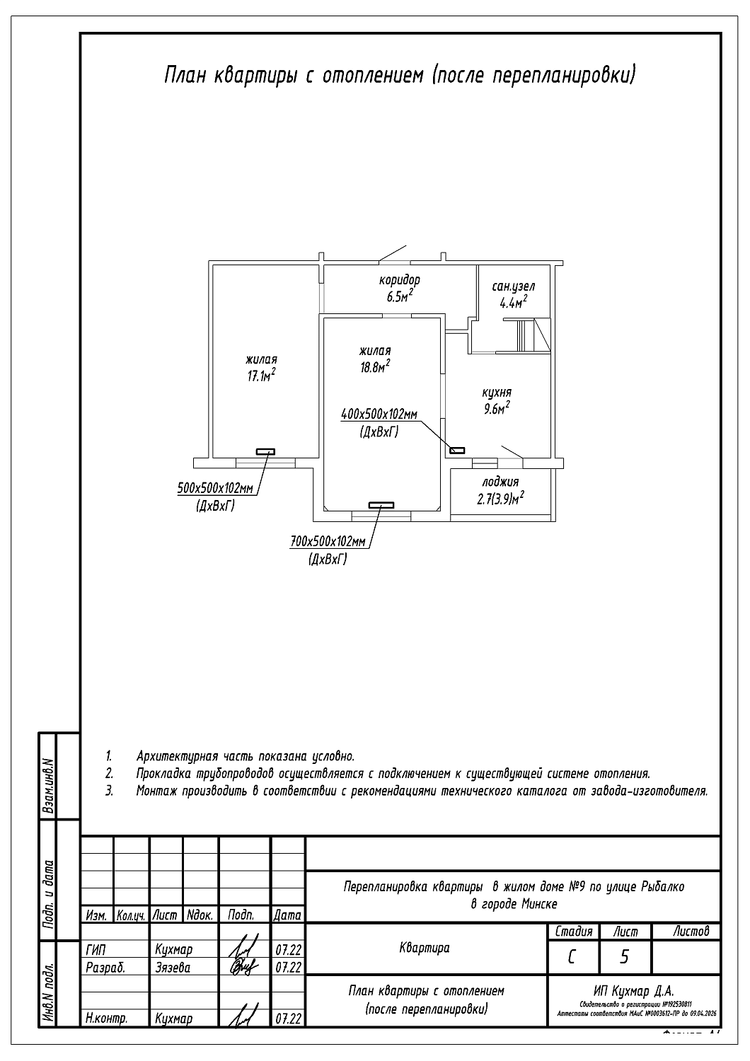
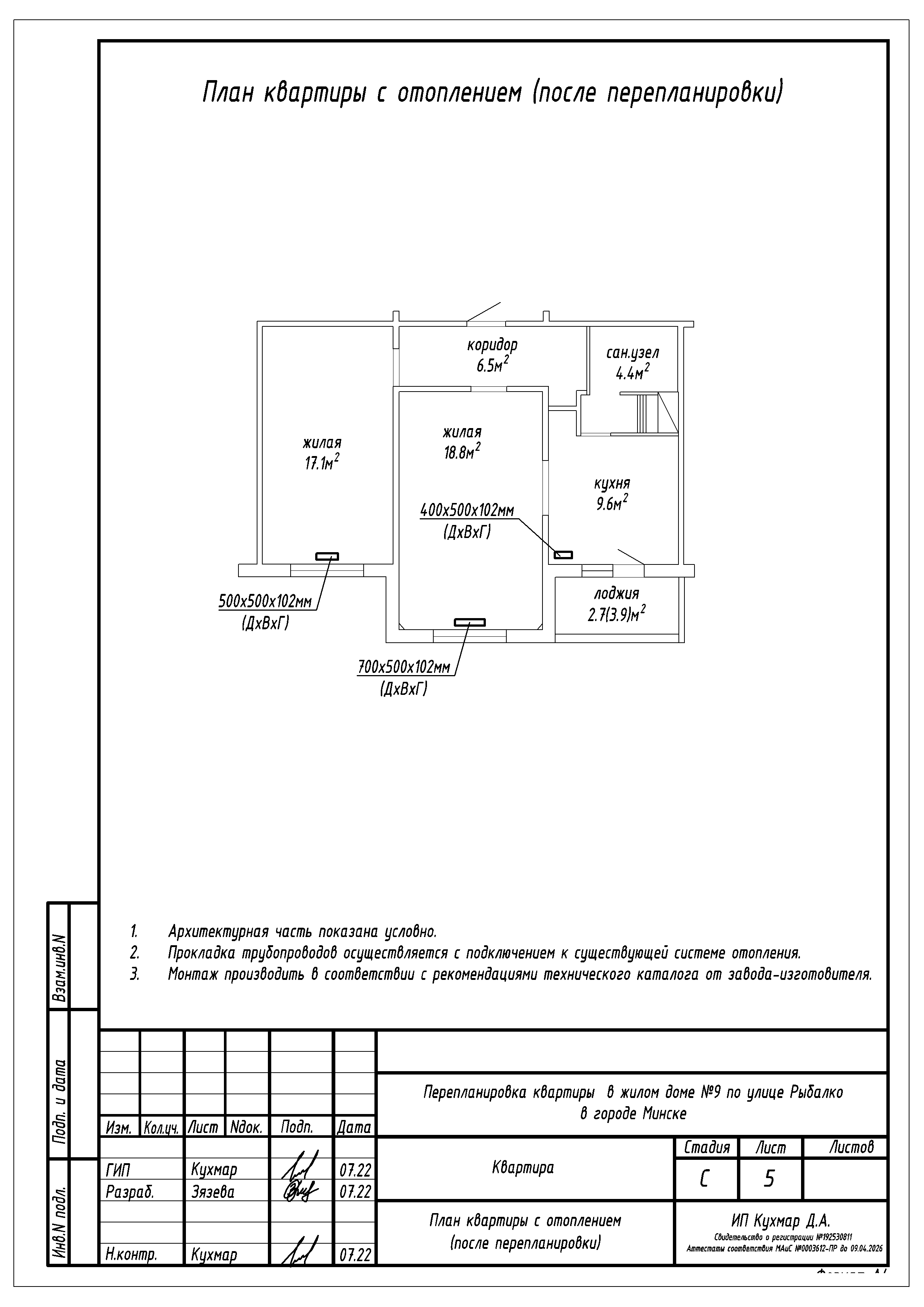
- Перенос существующего нагревательного прибора.
Нами были разработаны следующие разделы проектной документации для согласования в исполкоме:
- АС - архитектурно-строительные решения;
- ОВ - отопление и вентиляция.
