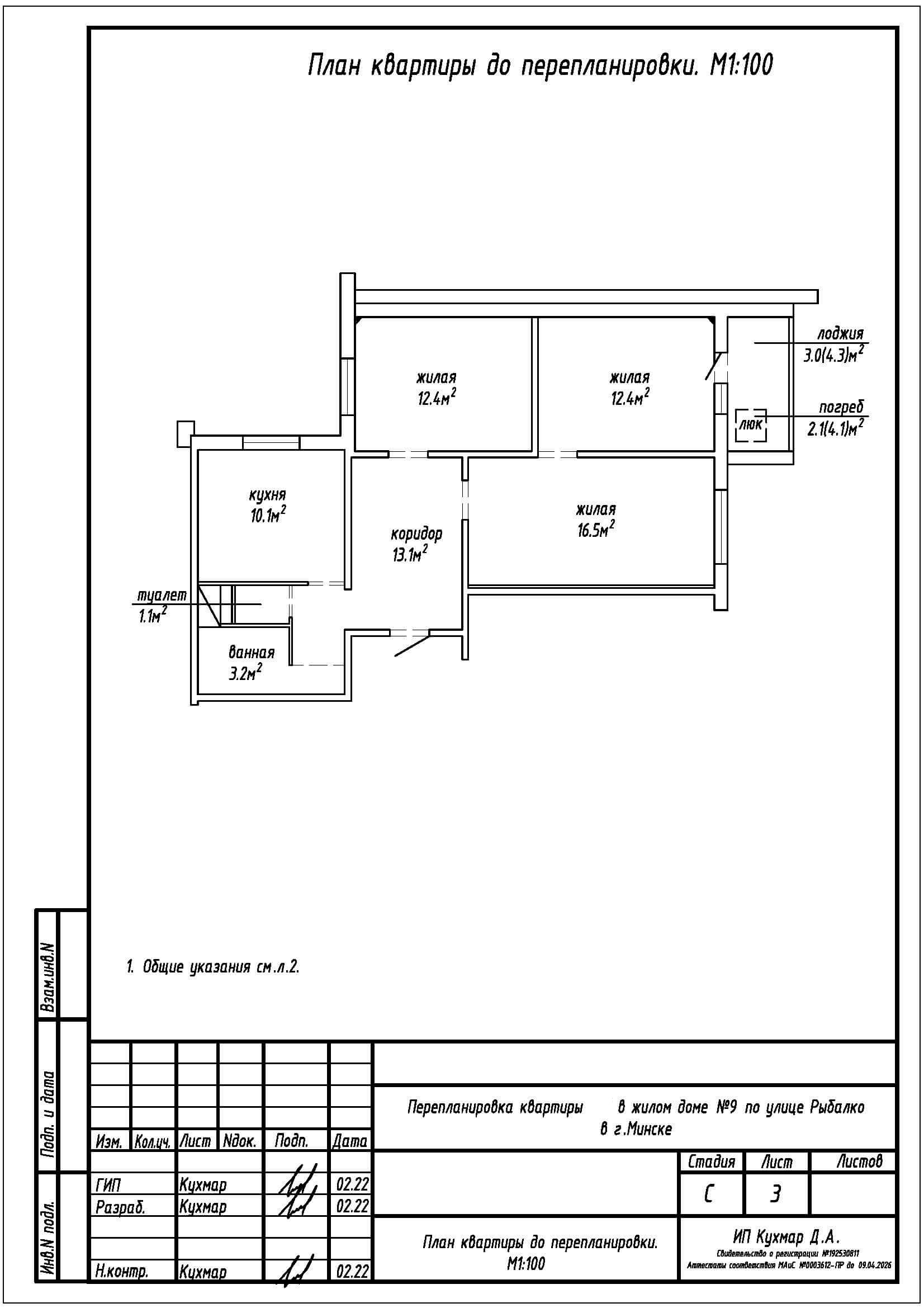
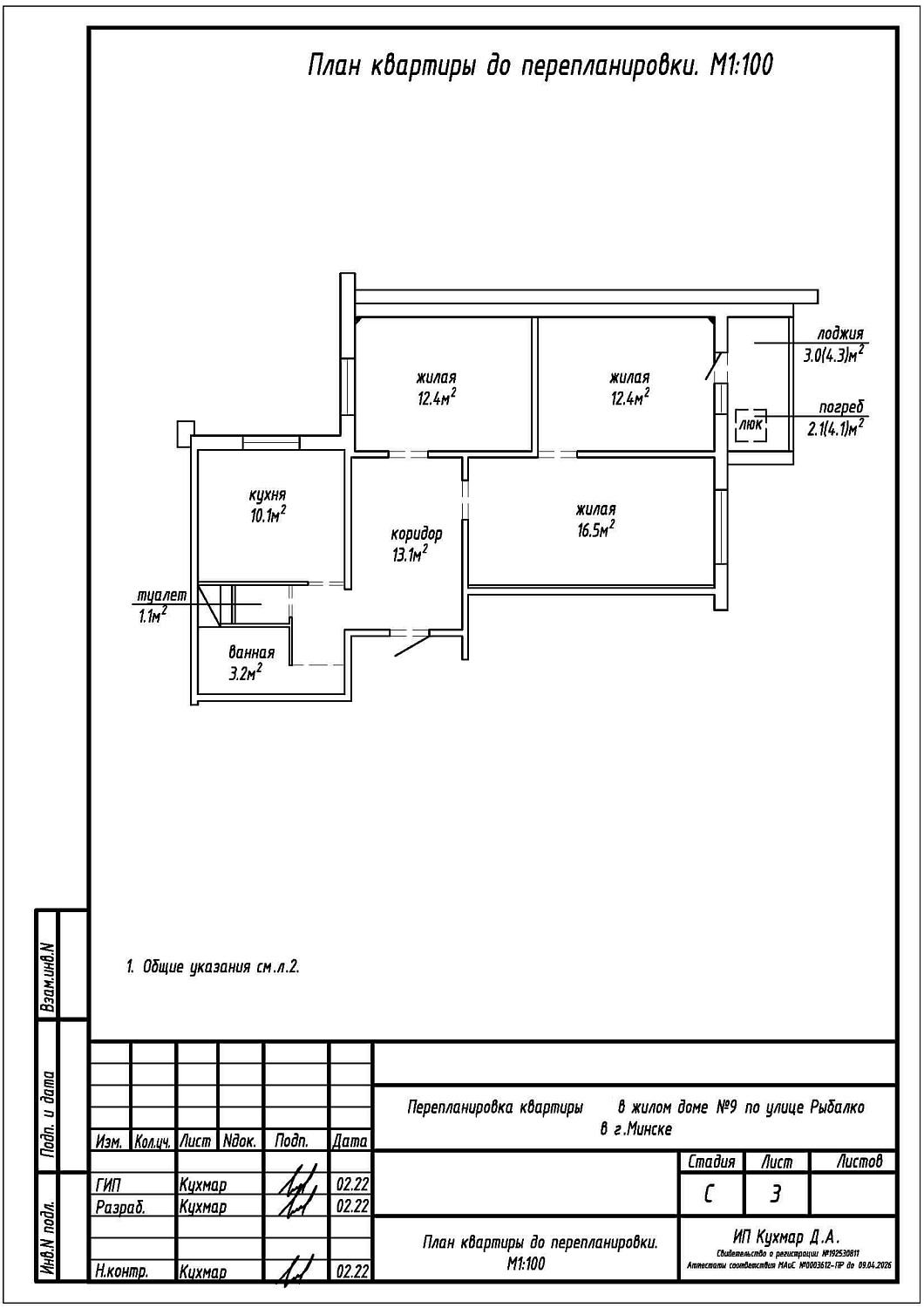
Перепланировка квартиры по ул. Рыбалко, 9 в ЖК «Антоновский квартал»
Пожелания заказчика:
- Устройство ванной комнаты на площади существующей и части площади коридора.
Нами были разработаны следующие разделы проектной документации для согласования в исполкоме:
- АС - архитектурно-строительные решения.
