Перепланировка квартиры по ул. Героев 120-й Дивизии, 2 в г. Минске
Пожелания заказчика:
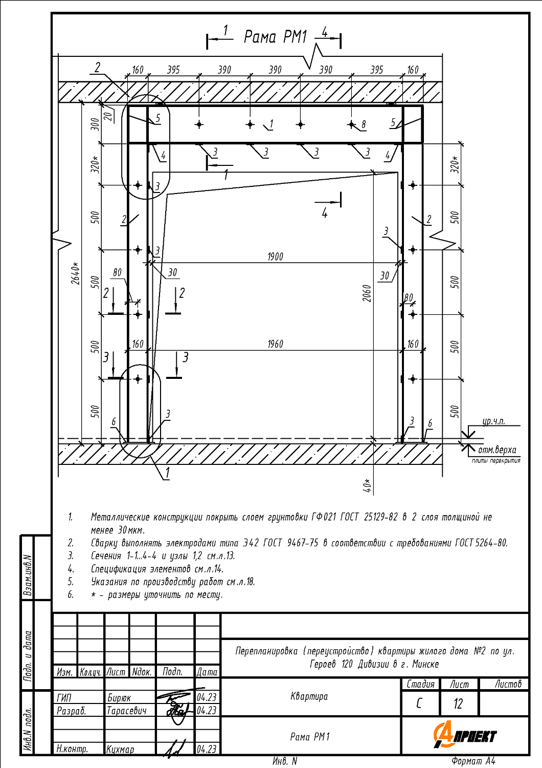
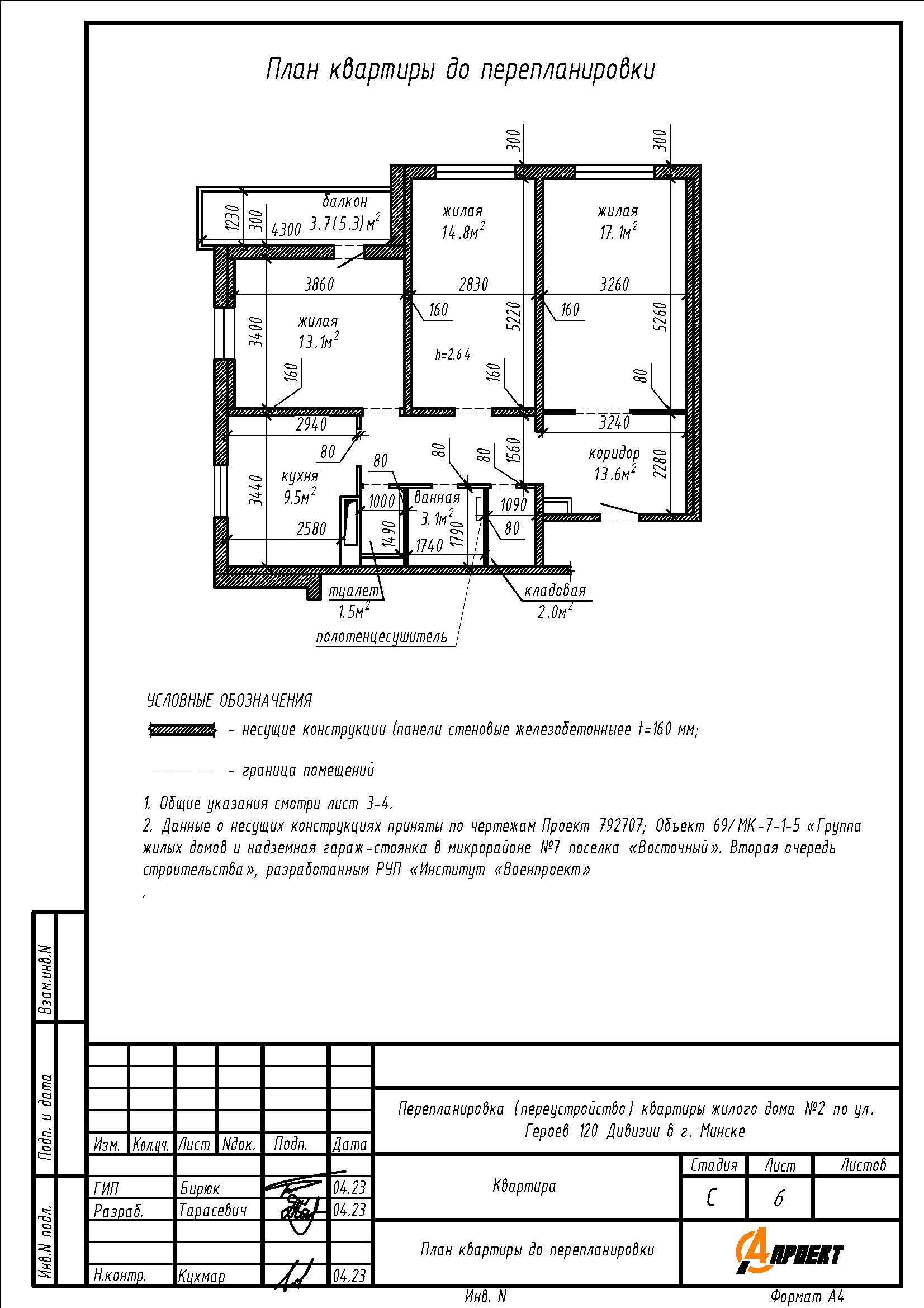
- Пробивка проёма в несущей стене между жилой и кухней;
- Закладка дверного проёма в стене между жилой и коридором;
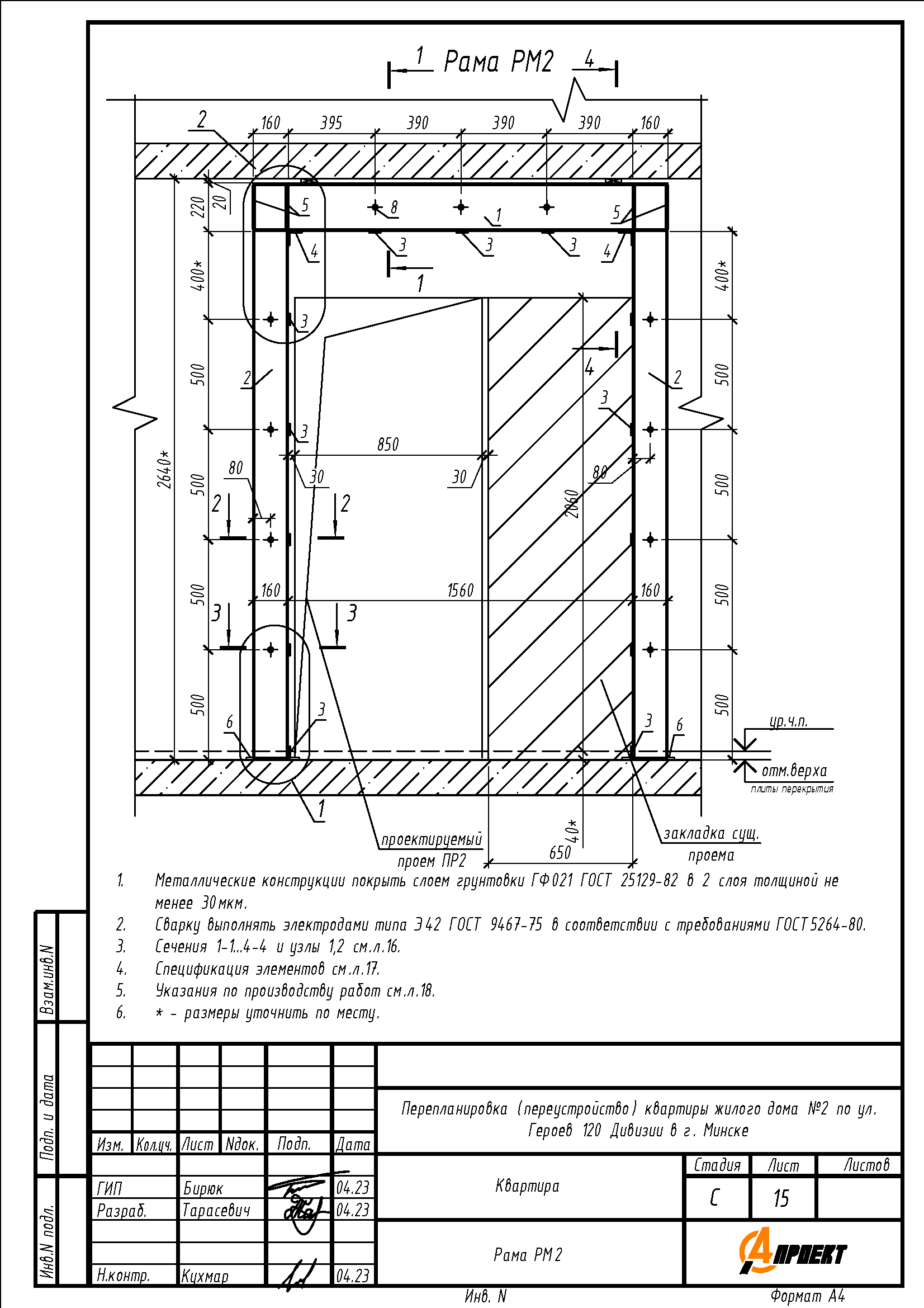
- Закладка дверного проёма в стене между коридором и жилой, с последующей пробивкой проёма в несущей стене между жилой и коридором;
- Закладка части дверного проёма в перегородке между жилой и коридором;
- Устройство гардеробной на части площади жилой;
- Увеличение площади туалета и ванной за счёт площади коридра.
Нами были разработаны следующие разделы проектной документации для согласования в исполкоме:
- АС - архитектурно-строительные решения.
