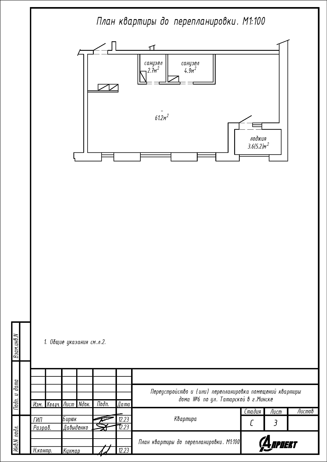
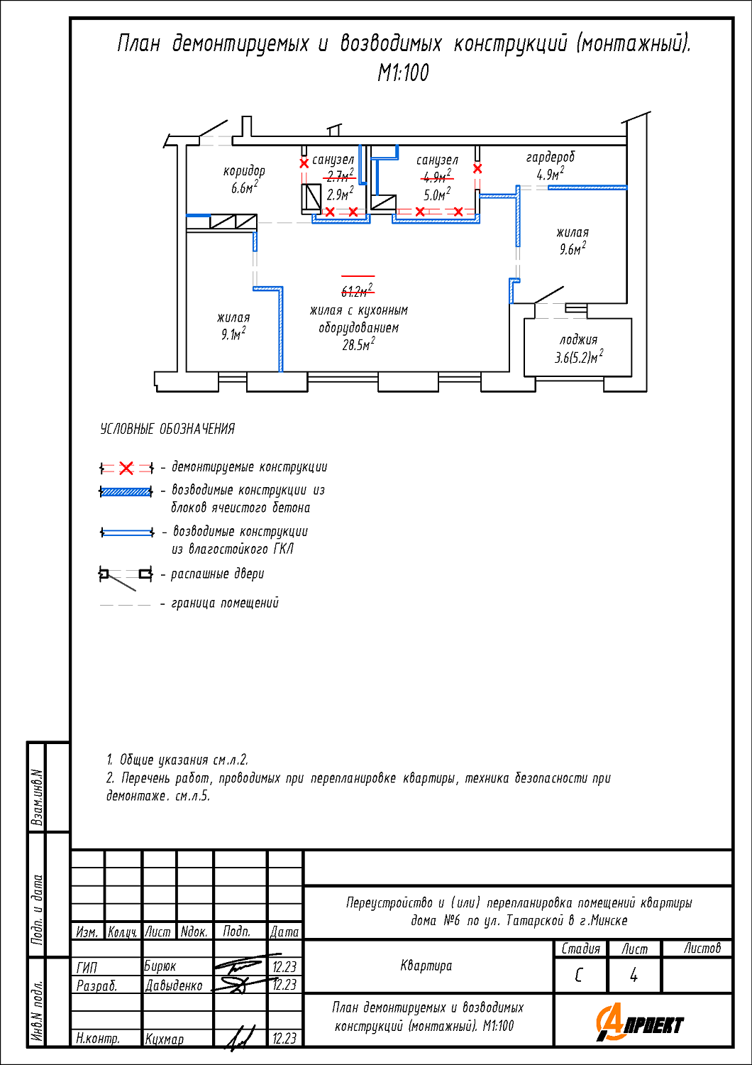
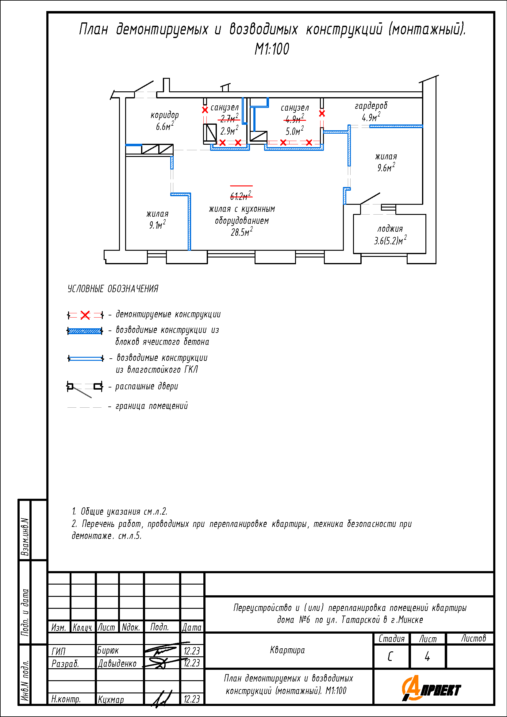
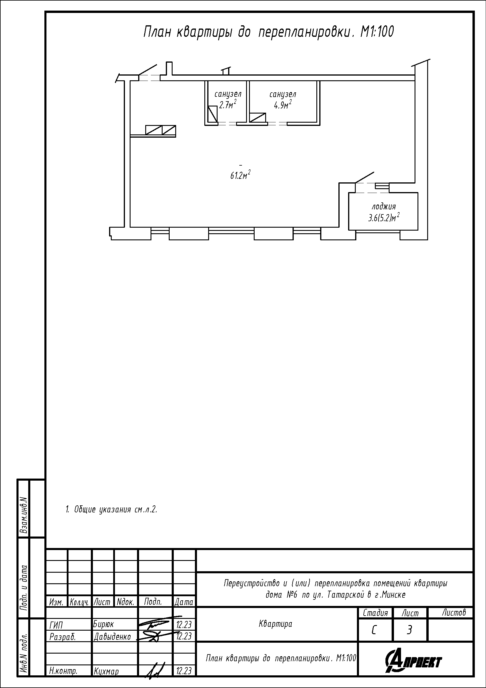
Перепланировка квартиры по ул. Татарская, 6 в ЖК «Комфорт Парк»
Пожелания заказчика:
- Разделение общего жилого помещения на жилую с кухонным оборудованием, жилую, гардеробную и коридор;
- Увеличение площади санузлов;
- Смещение дверных проёмов в санузлах;
- Устройство зашивки из ГКЛ на площади жилого помещения, на площади санузлов;
- Замена отопительного прибора.
Нами были разработаны следующие разделы проектной документации для согласования в исполкоме:
- АС - архитектурно-строительные решения;
- ОВ - отопление и вентиляция.
