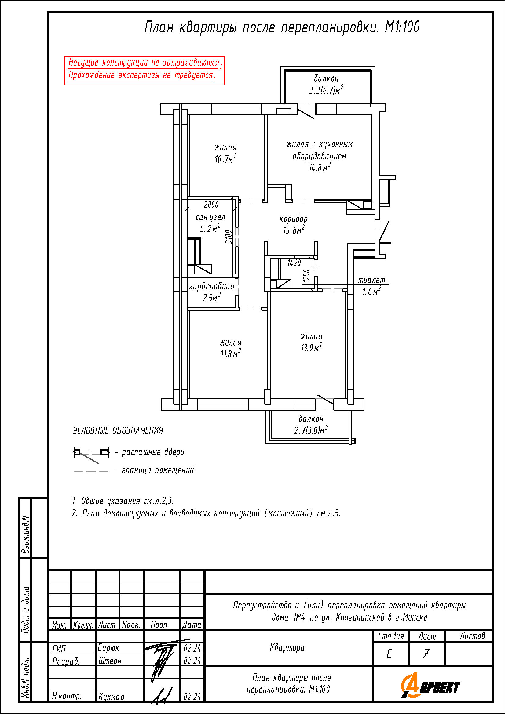
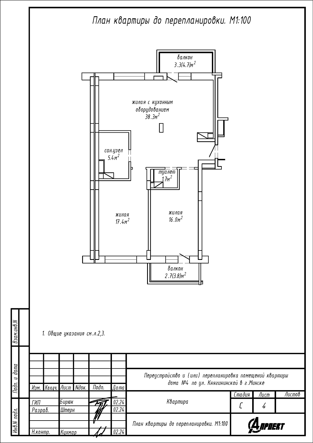
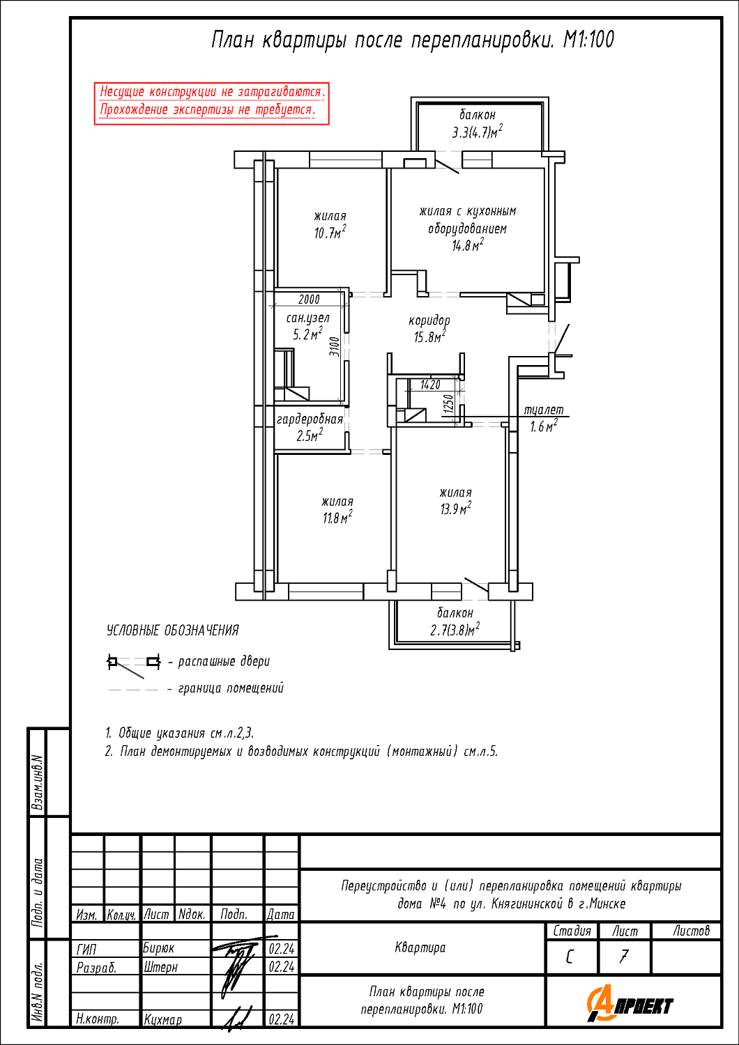
Перепланировка квартиры по ул. Княгининская 4, в ЖК «Променад»
Пожелания заказчика:
- Устройство дополнительной жилой комнаты на площади жилой с кухонным оборудованием;
- Устройство гардеробной на площади жилой;
- Перенос входа в туалет;
- Устройство коридора;
- Звукоизоляция жилых.
Нами были разработаны следующие разделы проектной документации для согласования в исполкоме:
- АС - архитектурно-строительные решения.
