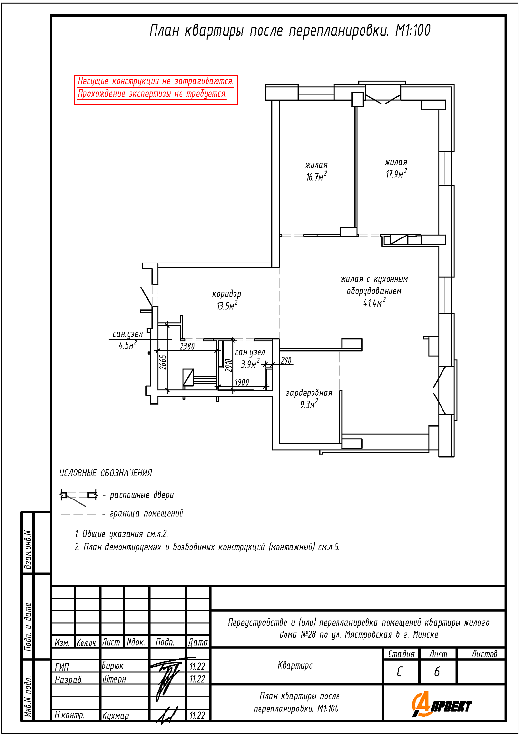
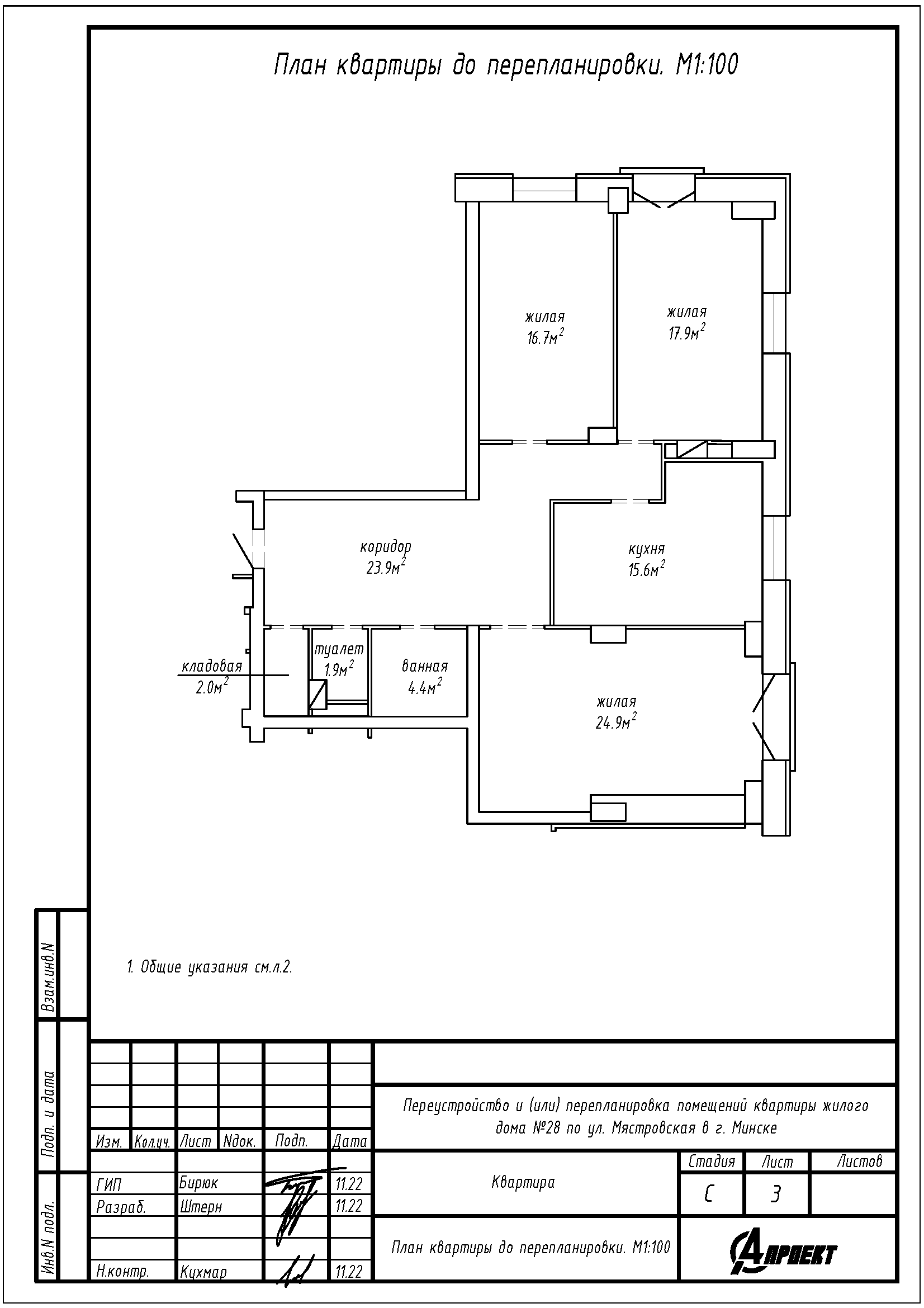
Перепланировка квартиры по ул. Мястровская, 28 в ЖК «Променад»
Пожелания заказчика:
- Демонтаж частей перегородок с дверными проёмами между кухней, жилой и коридором с последующим устройством перегородок на части площади кухни, жилой, с целью устройства жилой с кухонным оборудованием, гардеробной и коридором;
- Перенос дверного проёма в перегородке между кухней и жилой, жилой, коридором и туалетом;
- Устройство санузла на площади кладовой и туалета;
- Устройство санузла на площади ванной.
Нами были разработаны следующие разделы проектной документации для согласования в исполкоме:
- АС - архитектурно-строительные решения.
