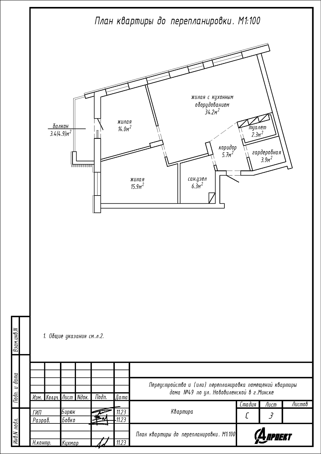
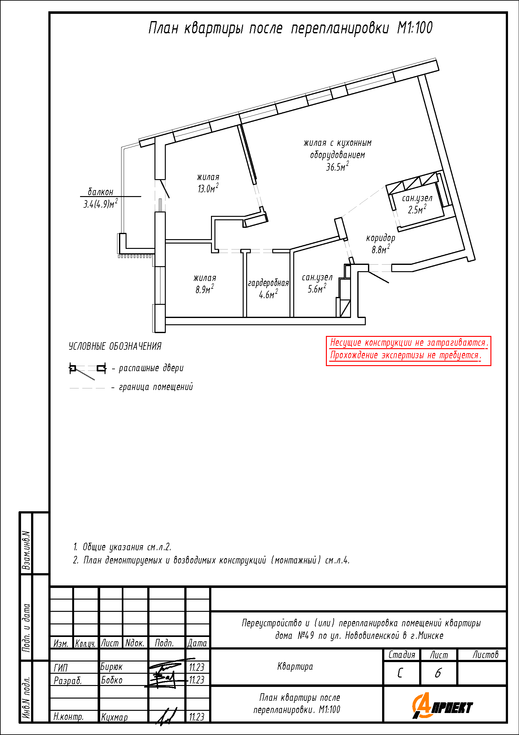
Перепланировка квартиры по ул. Нововиленская, 49 в ЖК «Левада»
Пожелания заказчика:
- Демонтаж части перегородки между коридором, гардеробом, туалетом, сан.узлом, жилой комнатой площадью 15.9 м2, жилой комнатой площадью 14.0 м2 и жилой комнатой с кухонным оборудованием с последующим устройством новых перегородок, образованием помещений: двух жилых комнат, жилой комнаты с кухонным оборудованием, гардероба, коридора и двух санузлов с устройством гидроизоляции.
Нами были разработаны следующие разделы проектной документации для согласования в исполкоме:
- АС - архитектурно-строительные решения.
