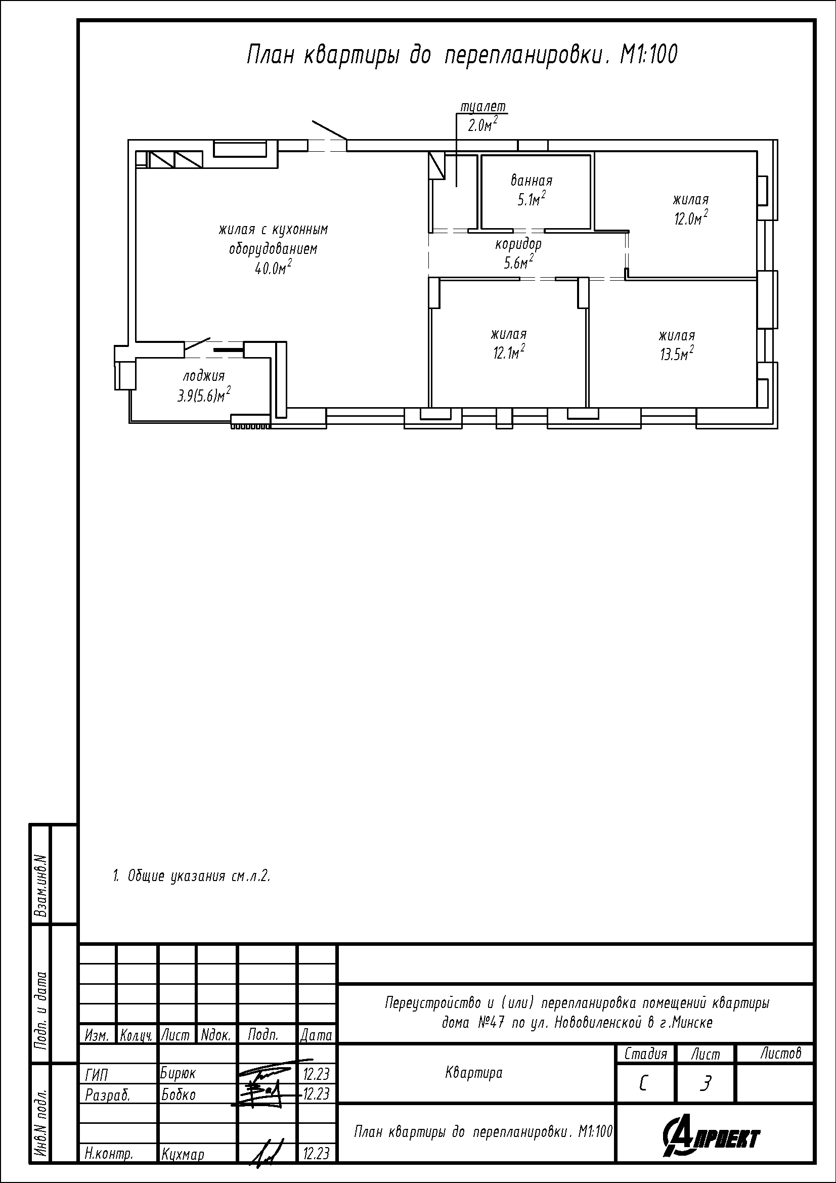
Перепланировка квартиры по ул. Нововиленская, 47 в ЖК «Левада»
Пожелания заказчика:
- Демонтаж части перегородок между жилой комнатой с кухонным оборудованием, жилой 12.1 м2, жилой комнаты площадью 13,5 м2, жилой комнатой площадью 12,0 м2, ванной, туалетом и коридором, с последующим устройством новых перегородок, образованием новых помещений: жилой комнаты с кухонным оборудованием, трёх жилых комнат, гардеробной, кладовой, коридора и санузлов;
- Устройство зашивок из ГКЛ на части площади санузлов и лоджии.
Нами были разработаны следующие разделы проектной документации для согласования в исполкоме:
- АС - архитектурно-строительные решения.
