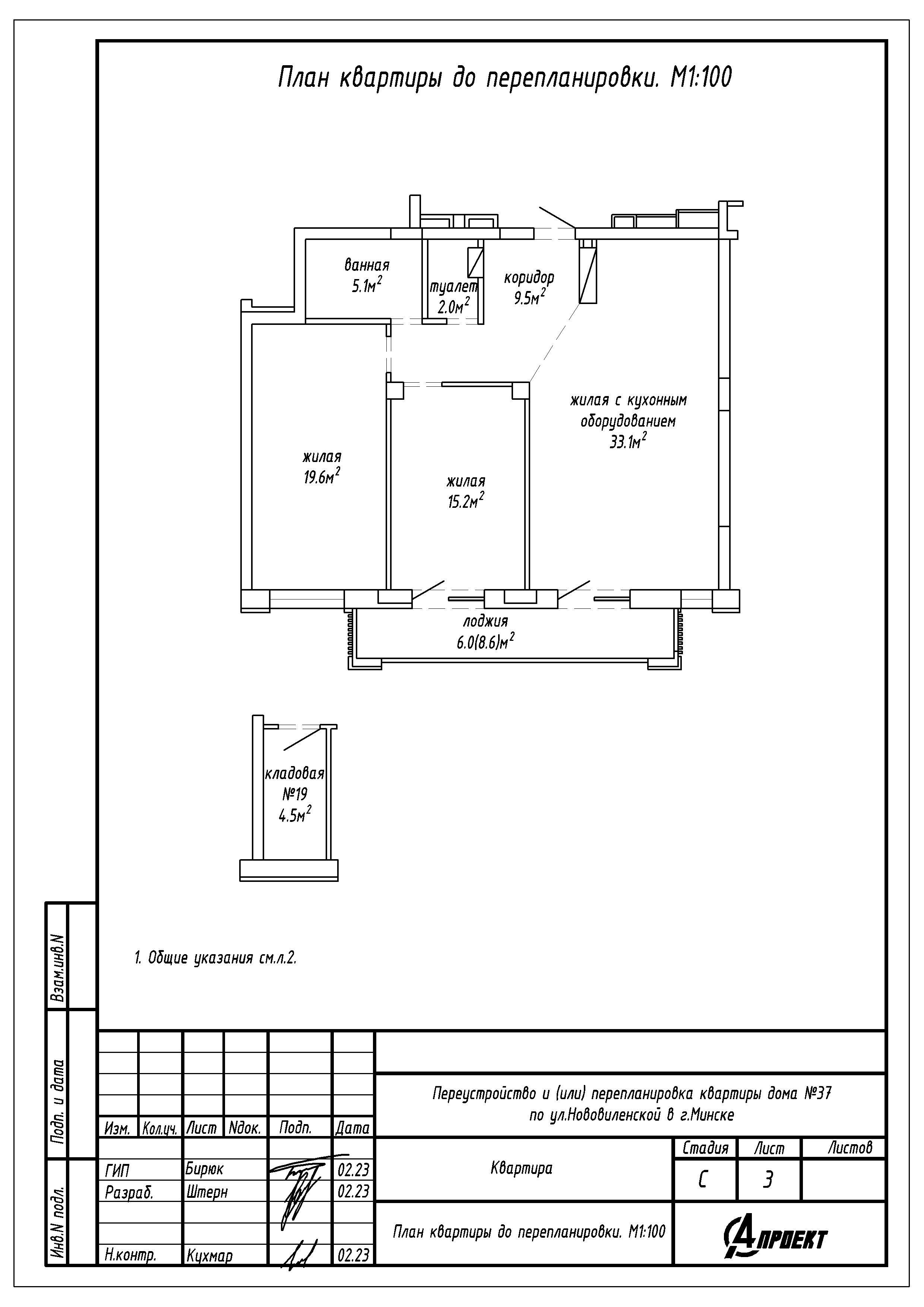
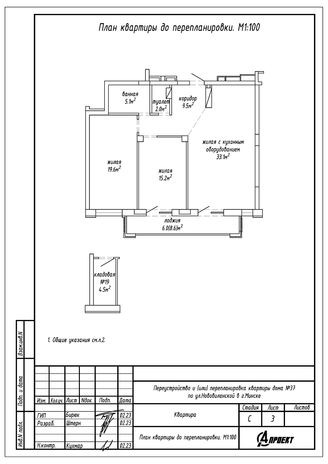
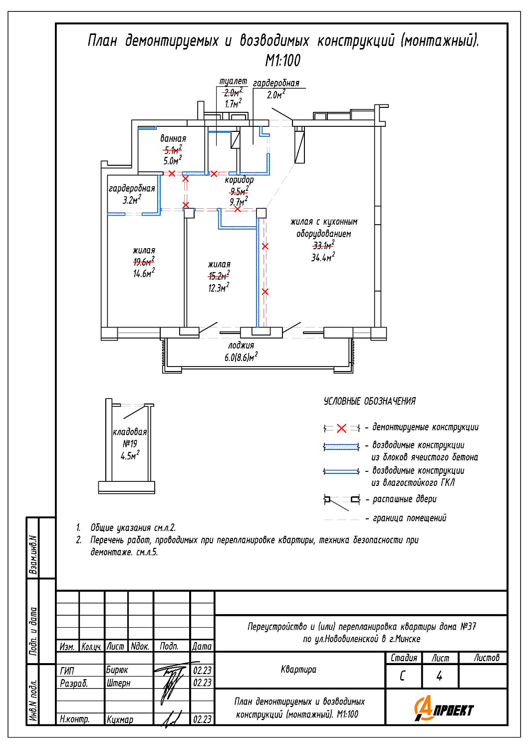
Перепланировка квартиры по ул. Нововиленская, 37 в ЖК «Левада»
Пожелания заказчика:
- Изменение габаритов жилой с кухонным оборудованием;
- Изменение габаритов жилой;
- Устройство гардеробной на части площади жилой;
- Устройство гардеробной на части площади коридора;
- Закладка дверного блока в туалете с последующим устройством нового дверного блока;
- Закладка дверного блока в ванной с последующим устройством нового дверного блока.
Нами были разработаны следующие разделы проектной документации для согласования в исполкоме:
- АС - архитектурно-строительные решения.
