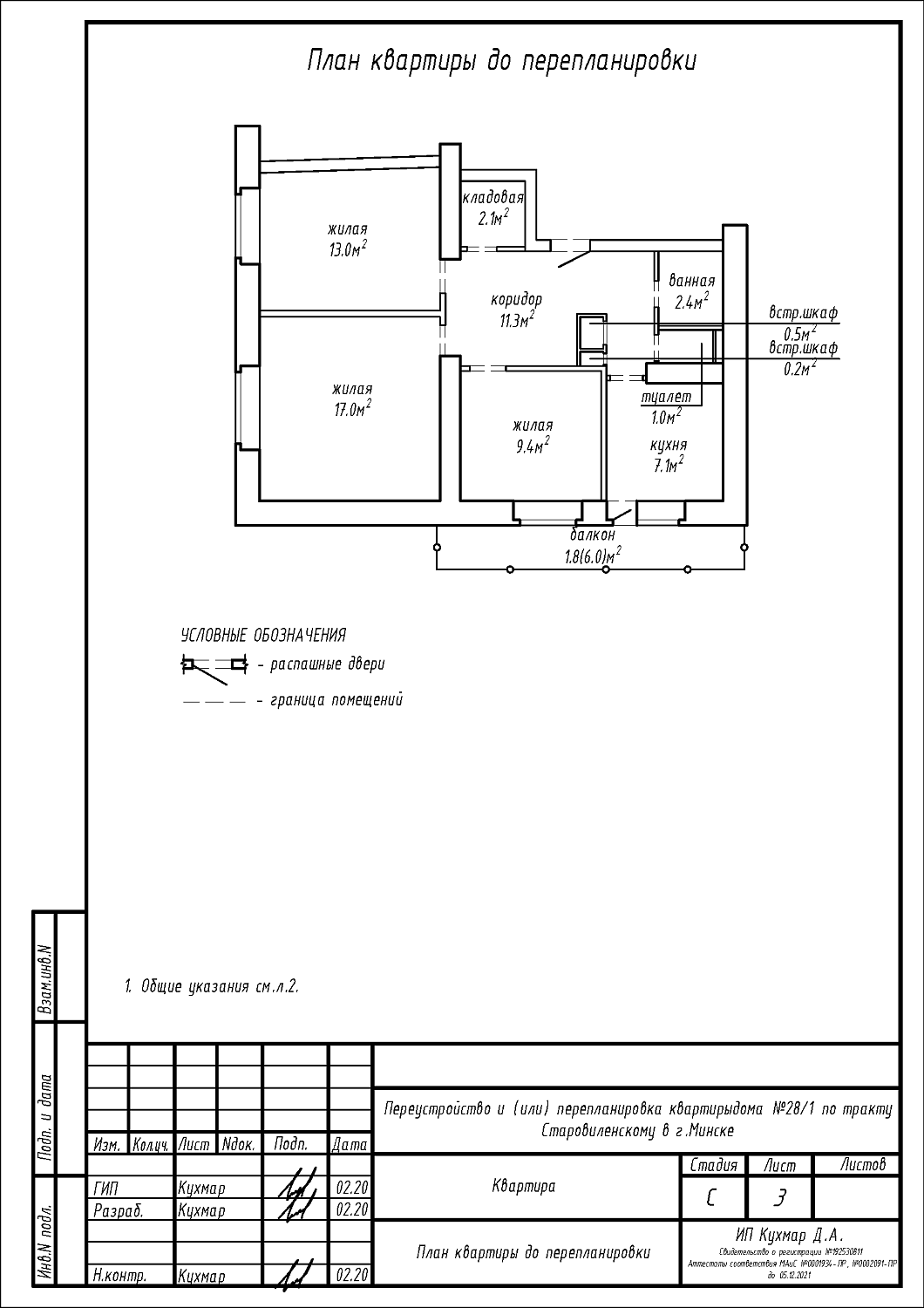
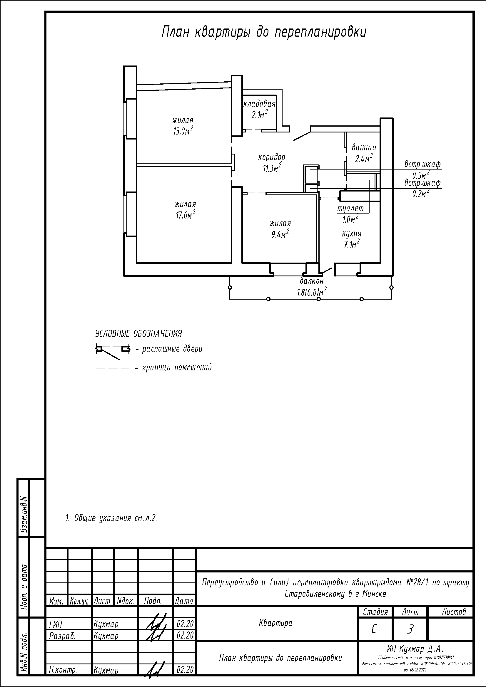
Перепланировка квартиры по тр-ту Старовиленскому 28/1 в г. Минске
Пожелания заказчика:
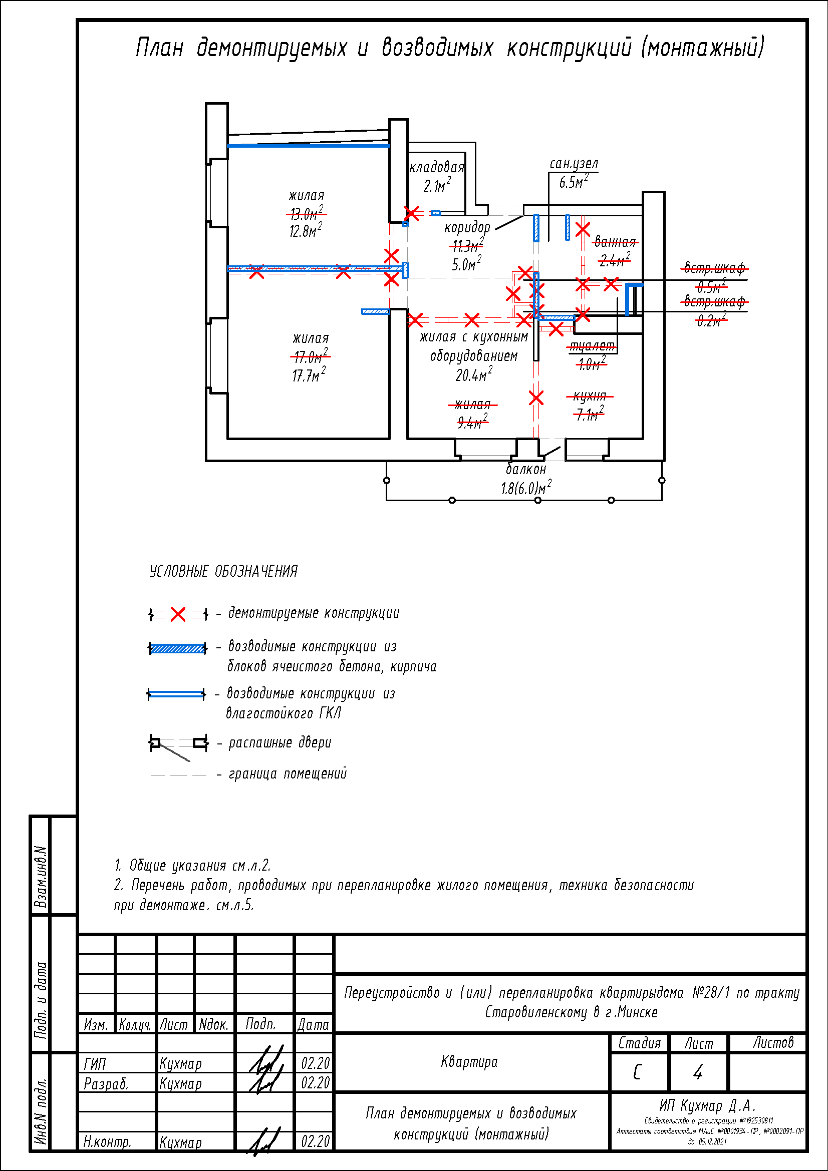
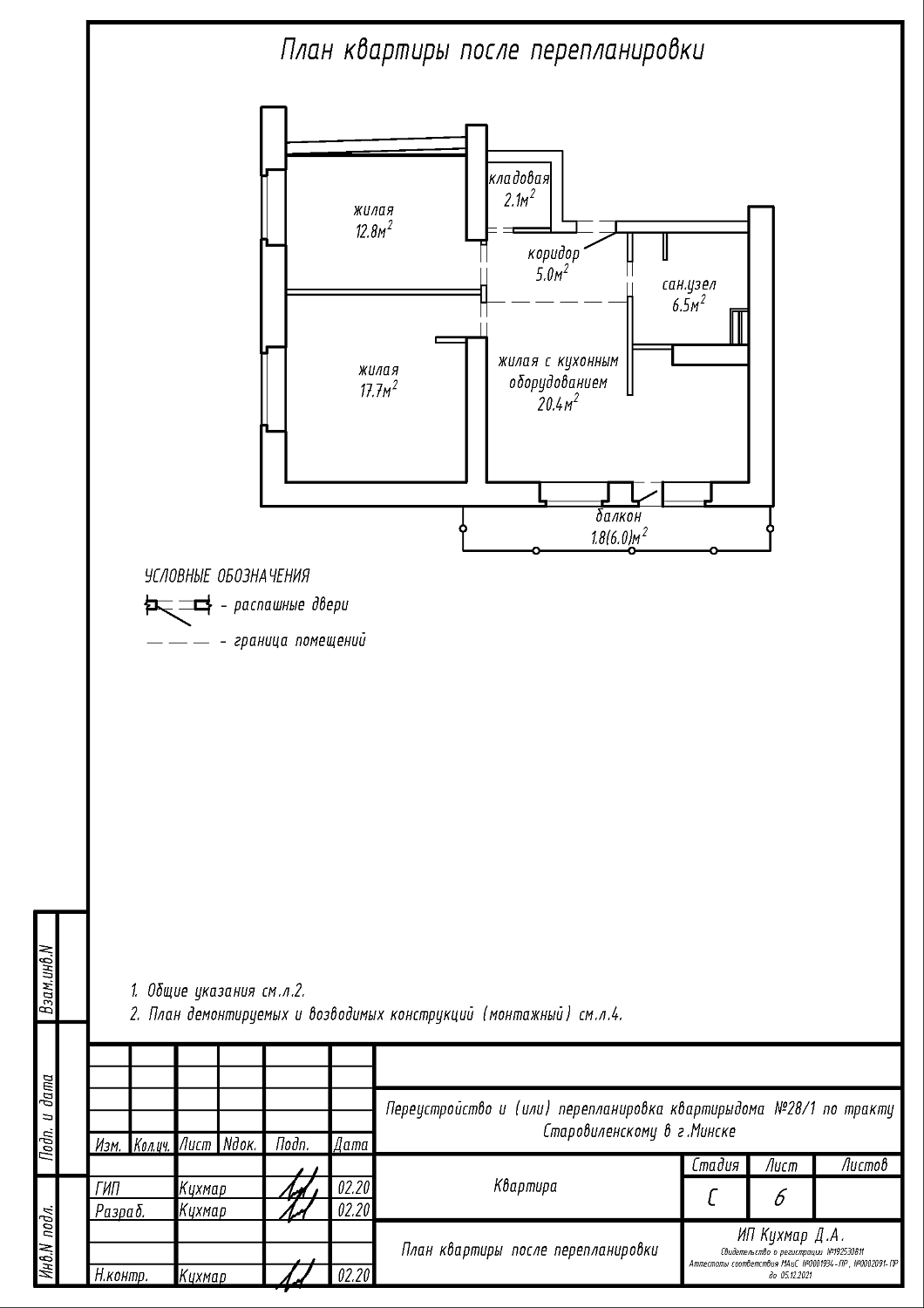
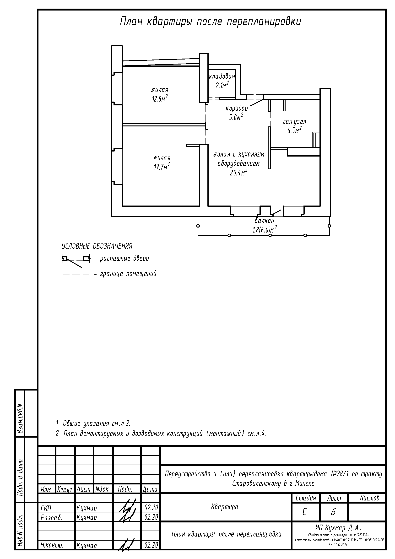
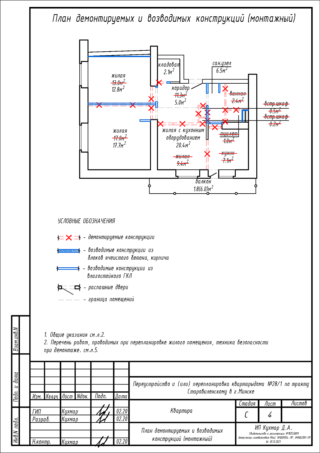
- Демонтаж части перегородки между коридором и кладовой с последующим устройством новой части перегородки;
- Закладка дверного блока между кухней и коридором;
- Демонтаж перегородок между коридором, ванной и туалетом с последующим устройством новых перегородок, образованием санузла с увеличенной площадью за счет площади коридора с устройством гидроизоляции пола;
- Демонтаж части перегородки между жилой комнатой площадью 9,4 кв.м и кухней:
- Демонтаж двух встроенных шкафов площадью 0,7 кв.м;
- Демонтаж перегородок между коридором и жилой комнатой площадью 9,4 кв.м;
- Демонтаж перегородки между жилой комнатой площадью 17,0 кв.м и жилой комнатой площадью 13,0 кв.м с последующим устройством надой перегородки;
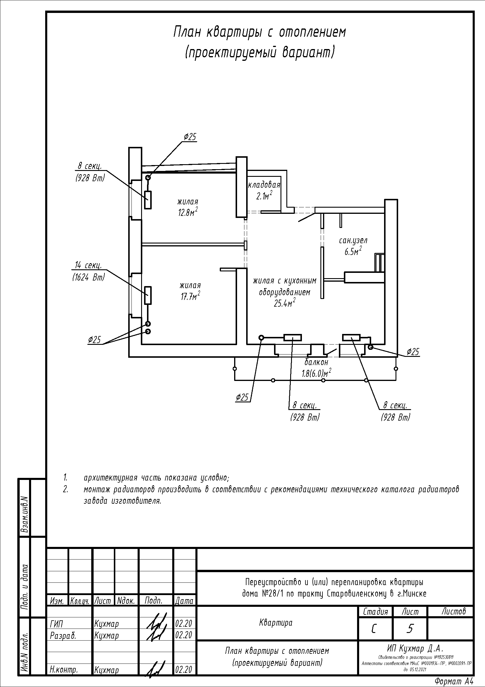
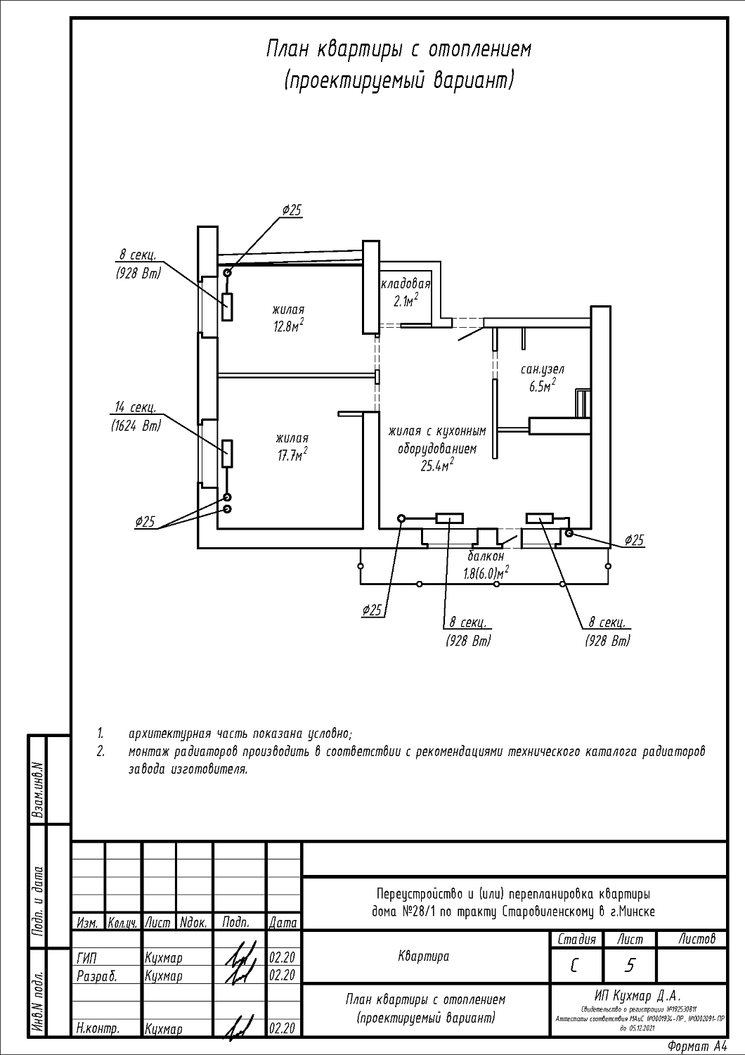
- Замена отопительных приборов.
Нами были разработаны следующие разделы проектной документации для согласования в исполкоме:
- АС - архитектурно-строительные решения;
- ОВ - отопление и вентиляция.
