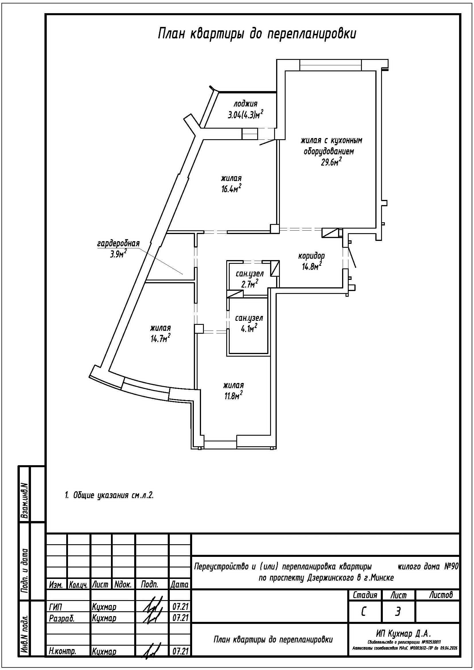
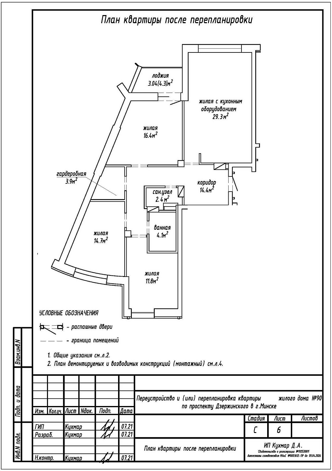
Перепланировка квартиры по пр-ту Дзержинского, 90 в ЖК «Петровщина»
Пожелания заказчика:
- Изменение площади санузла;
- Устройство ванной на месте санузла;
- Устройство перегородки между жилой с кухонным оборудованием и коридором;
- Сдвиг дверного проема между жилой и коридором;
- Демонтаж подоконной части стены между жилой комнатой и и лоджией с установкой дверного блока;
- Перенос существующих отопительных приборов.
Нами были разработаны следующие разделы проектной документации для согласования в исполкоме:
- АС - архитектурно-строительные решения;
- ОВ - отопление и вентиляция.
