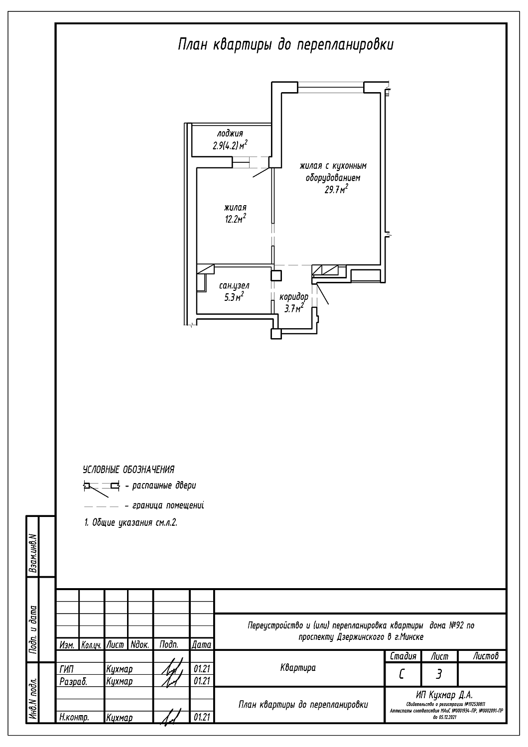
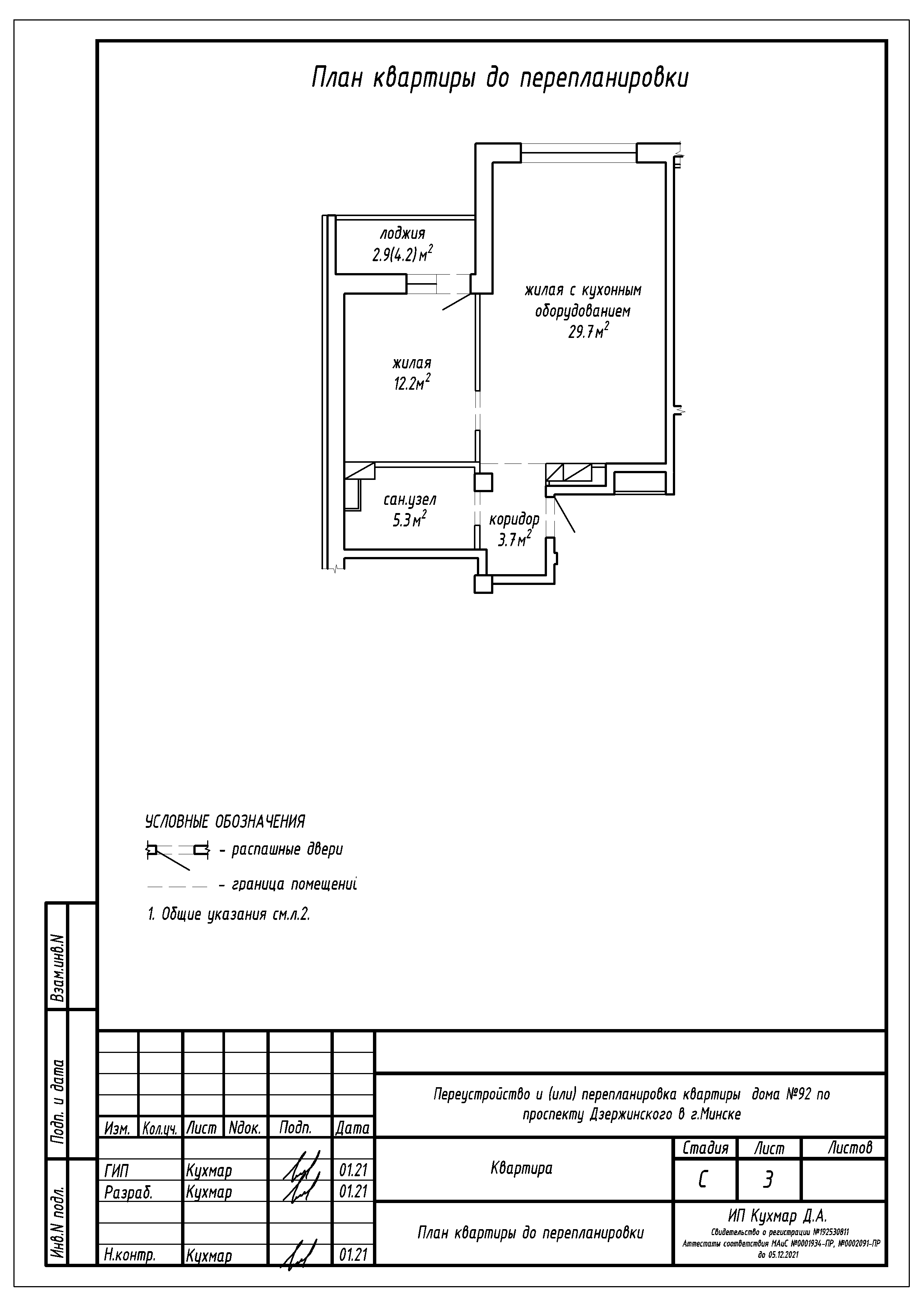
Перепланировка квартиры по пр-ту Дзержинского, 92 в ЖК «Петровщина»
Пожелания заказчика:
- Разделение санузла на отдельный туалет и санузел;
- Увеличение туалета за счет площади коридора;
- Устройство кладовой на площади жилой с кухонным оборудованием;
- Замена отопительных приборов.
Нами были разработаны следующие разделы проектной документации для согласования в исполкоме:
- АС - архитектурно-строительные решения;
- ОВ - отопление и вентиляция.
