Реконструкция квартиры по ул. Сторожовская, 6 в г. Минске
Пожелания заказчика:
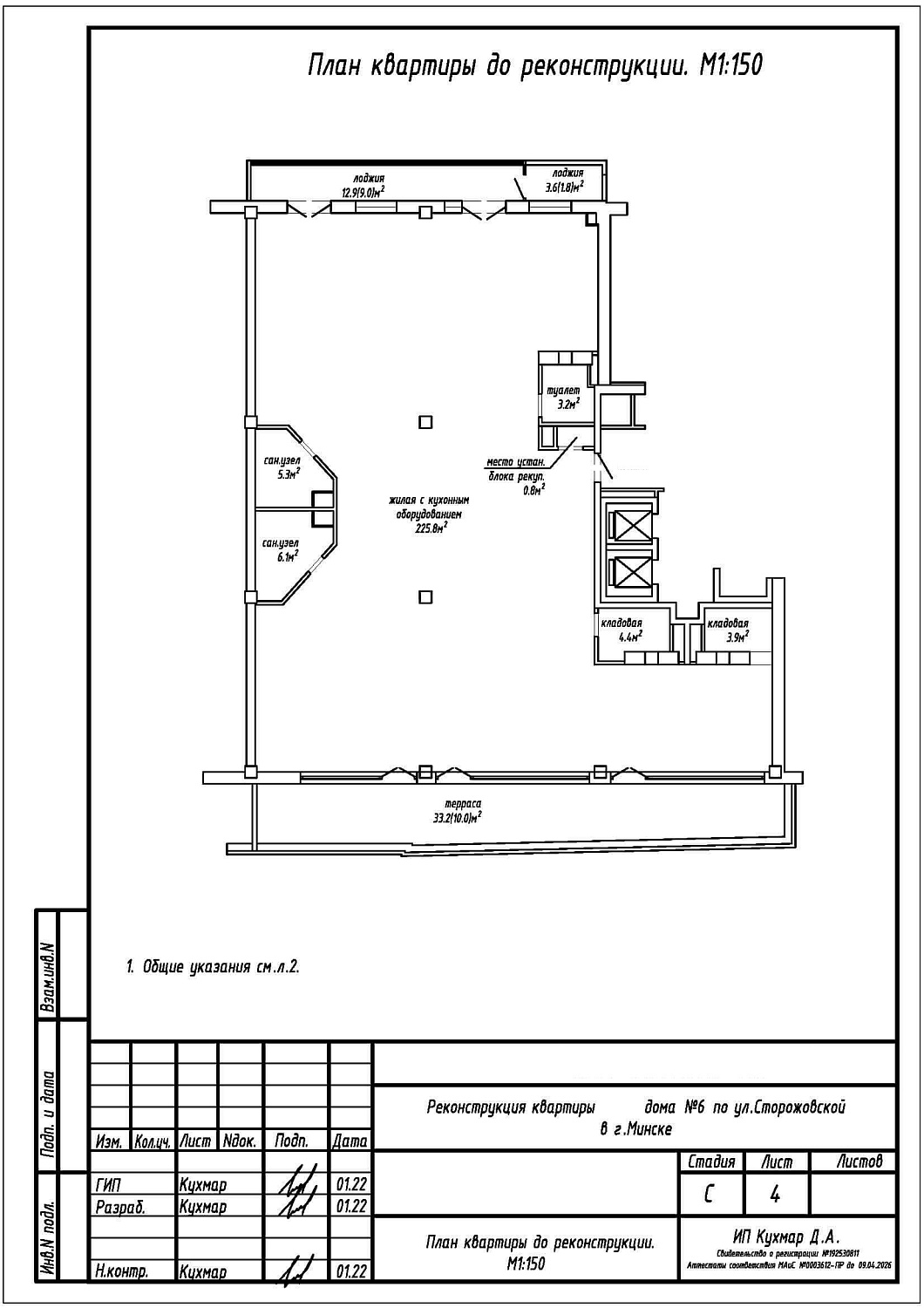
- Устройство остекления террасы с целью устройства лоджии.
Нами были разработаны следующие разделы проектной документации для согласования в исполкоме:
- АС - архитектурно-строительные решения.
