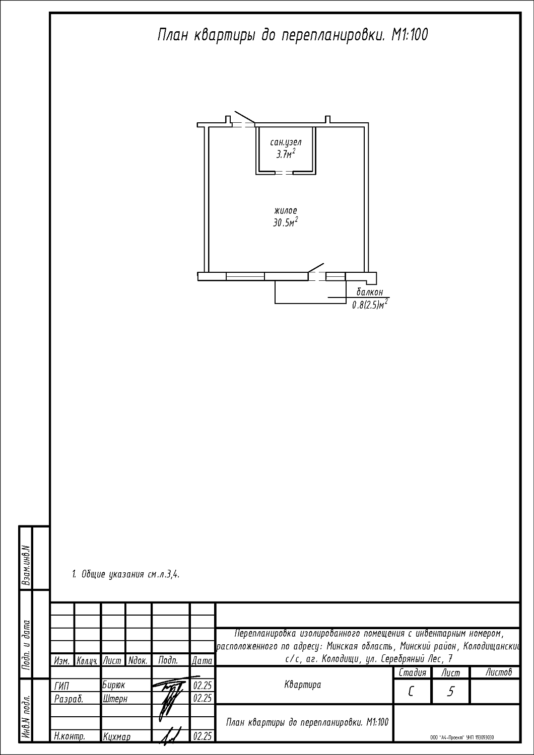
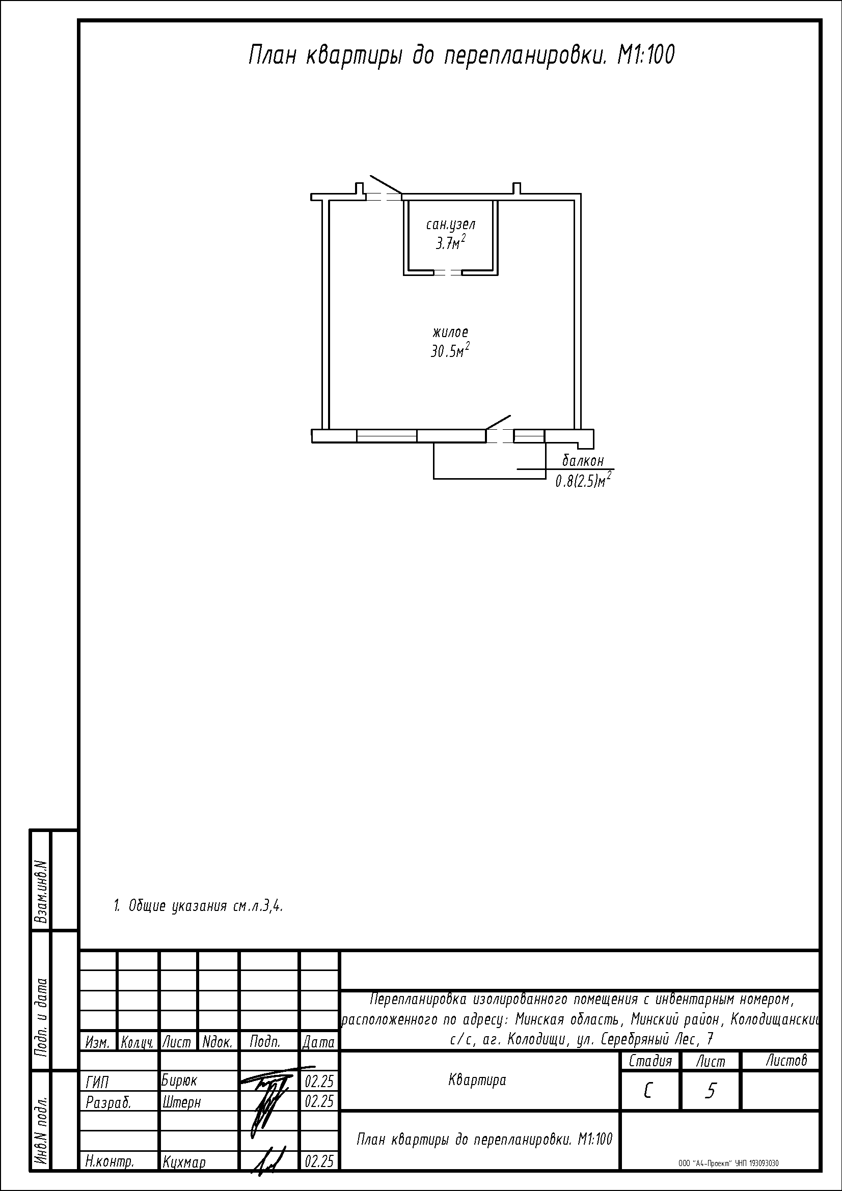
Реконструкция квартиры по ул. Серебряный Лес, 7 в ЖК «Зелёная Гавань»
Пожелания заказчика:
- Изменение площади жилого, санузла за счет демонтажа существующей перегородки между жилым и санузлом с последующим устройством перегородки на площади санузла;
- Закладка дверного проема между жилым и санузлом;
- Демонтаж части перегородки между жилым и санузлом (устройство дверного проема).
Нами были разработаны следующие разделы проектной документации для согласования в исполкоме:
- АС - архитектурно-строительные решения.
