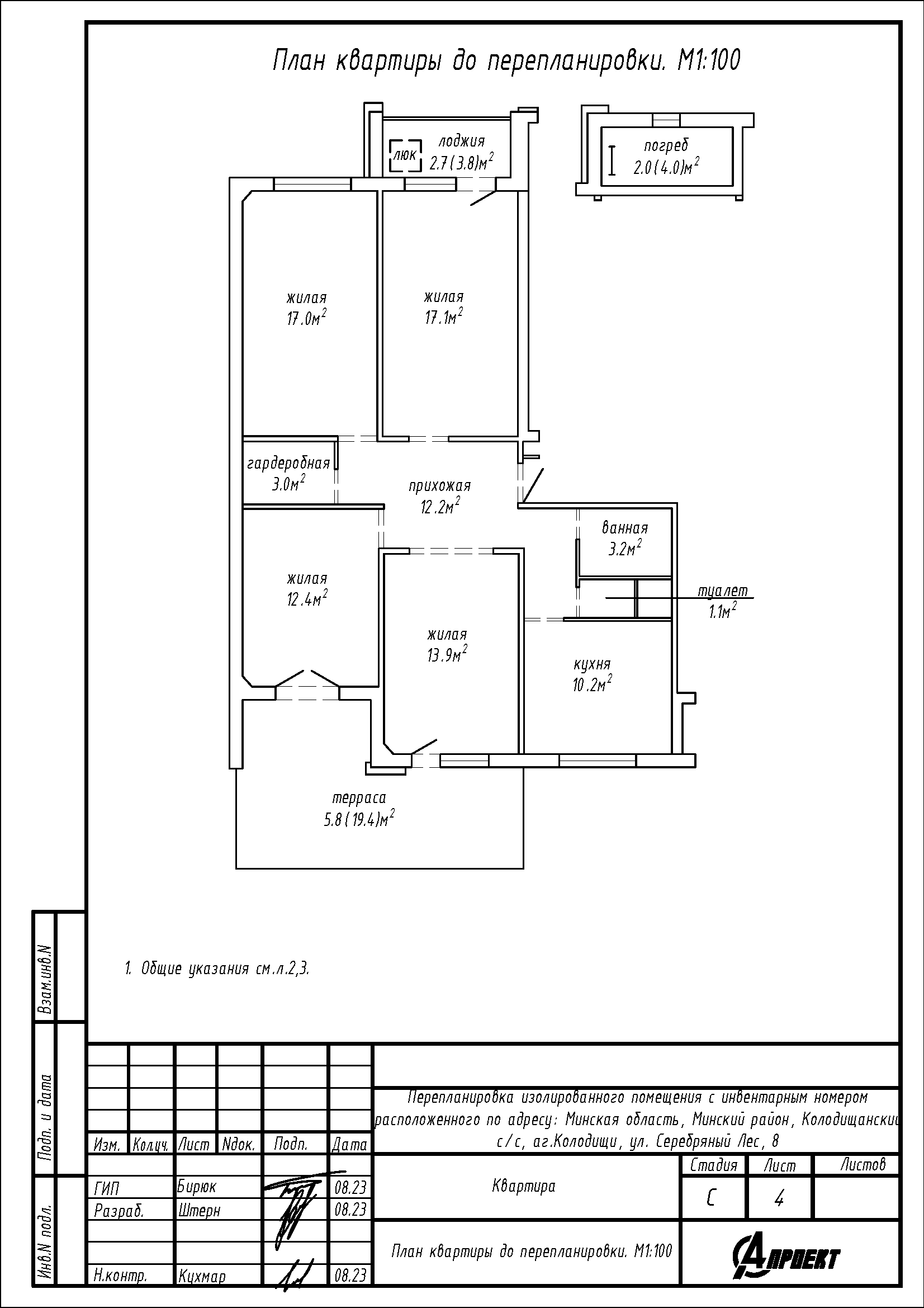
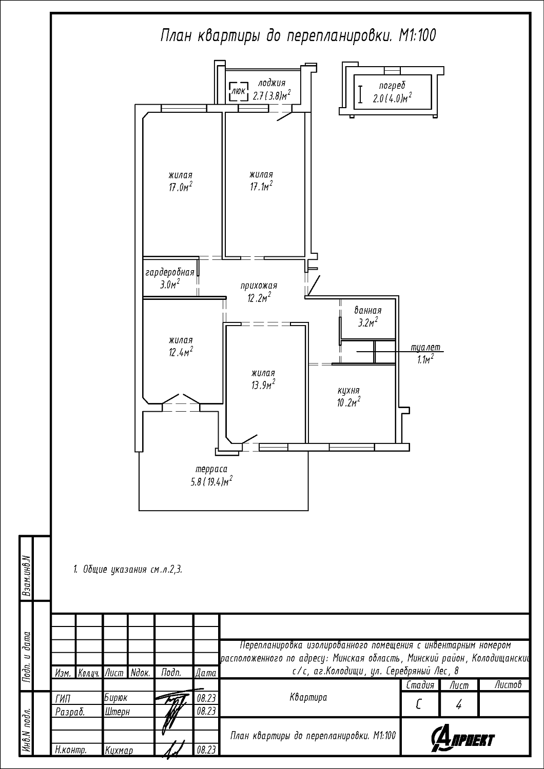
Реконструкция квартиры по ул. Серебряный Лес, 8 в ЖК «Зелёная Гавань»
Пожелания заказчика:
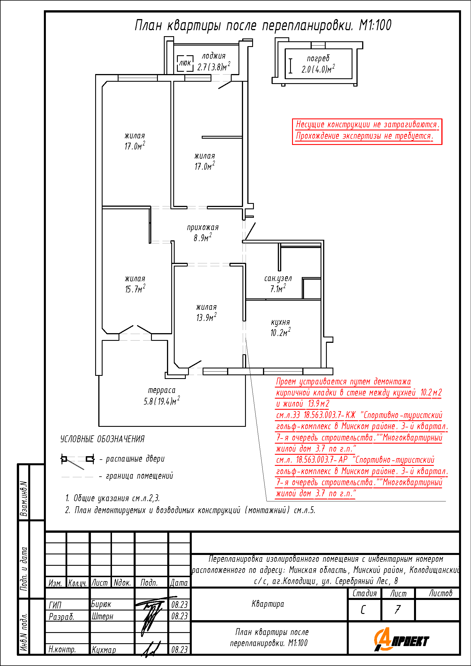
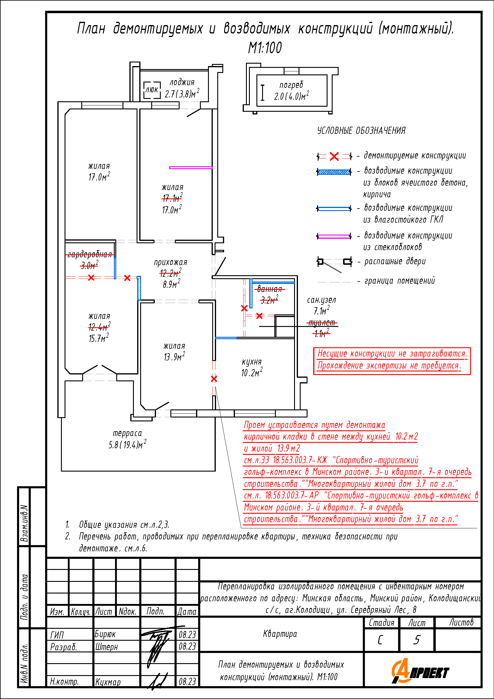
- Устройство проёма между жилой и кухней;
- Объединение ванной и туалета в единый санузел;
- Объединение жилой и гардеробной в одно помещение: жилая 15,7 м2;
- Устройство стеклянной перегородки в жилой 17,1 м2;
- Перенос и замена отопительных приборов.
Нами были разработаны следующие разделы проектной документации для согласования в исполкоме:
- АС - архитектурно-строительные решения;
- ОВ - отопление и вентиляция.
