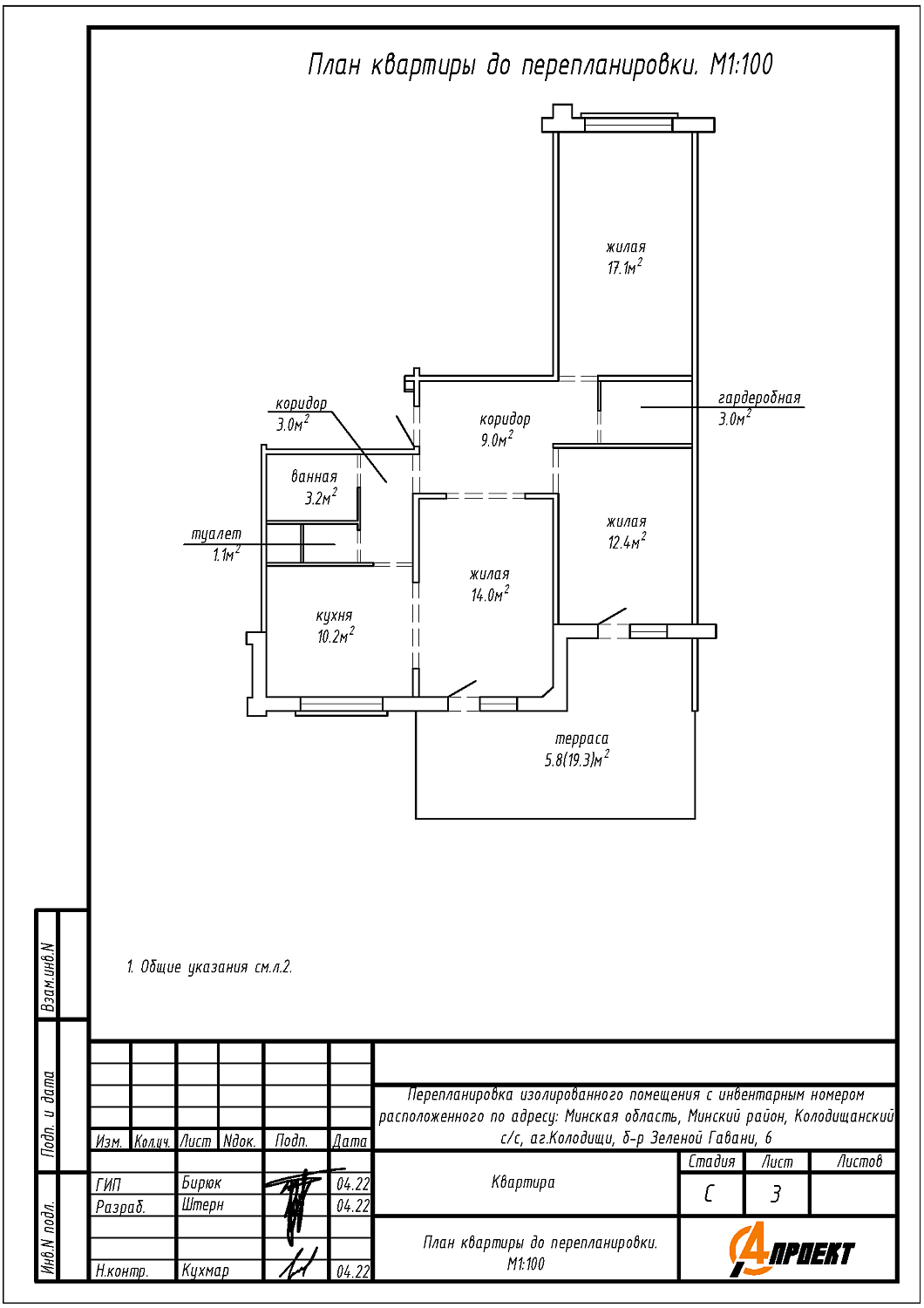
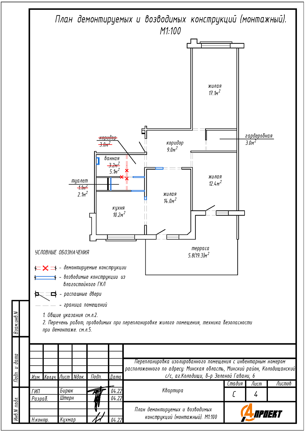
Перепланировка квартиры по бульвару Зелёная гавань, 6 в ЖК «Зелёная Гавань»
Пожелания заказчика:
- Уменьшение дверного проёма между жилой и коридором;
- Увеличение площади ванной за счёт площади коридора;
- Увеличение площади туалета за счет площади коридора;
- Закладка дверного проёма между кухней и коридором.
Нами были разработаны следующие разделы проектной документации для согласования в исполкоме:
- АС - архитектурно-строительные решения.
