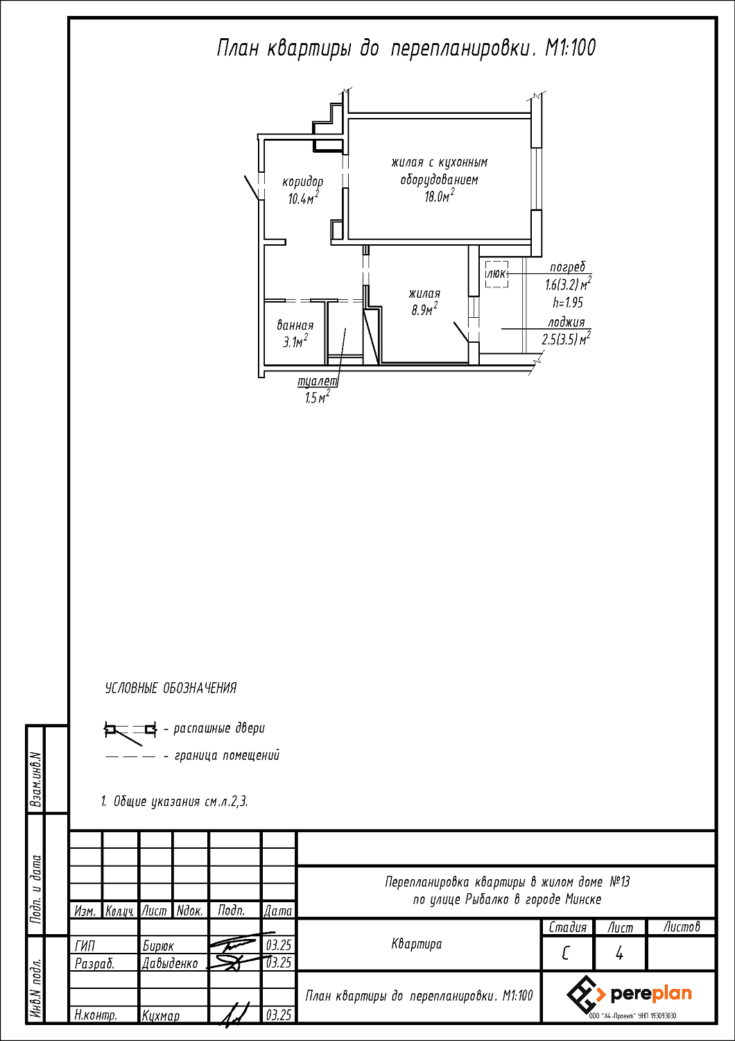
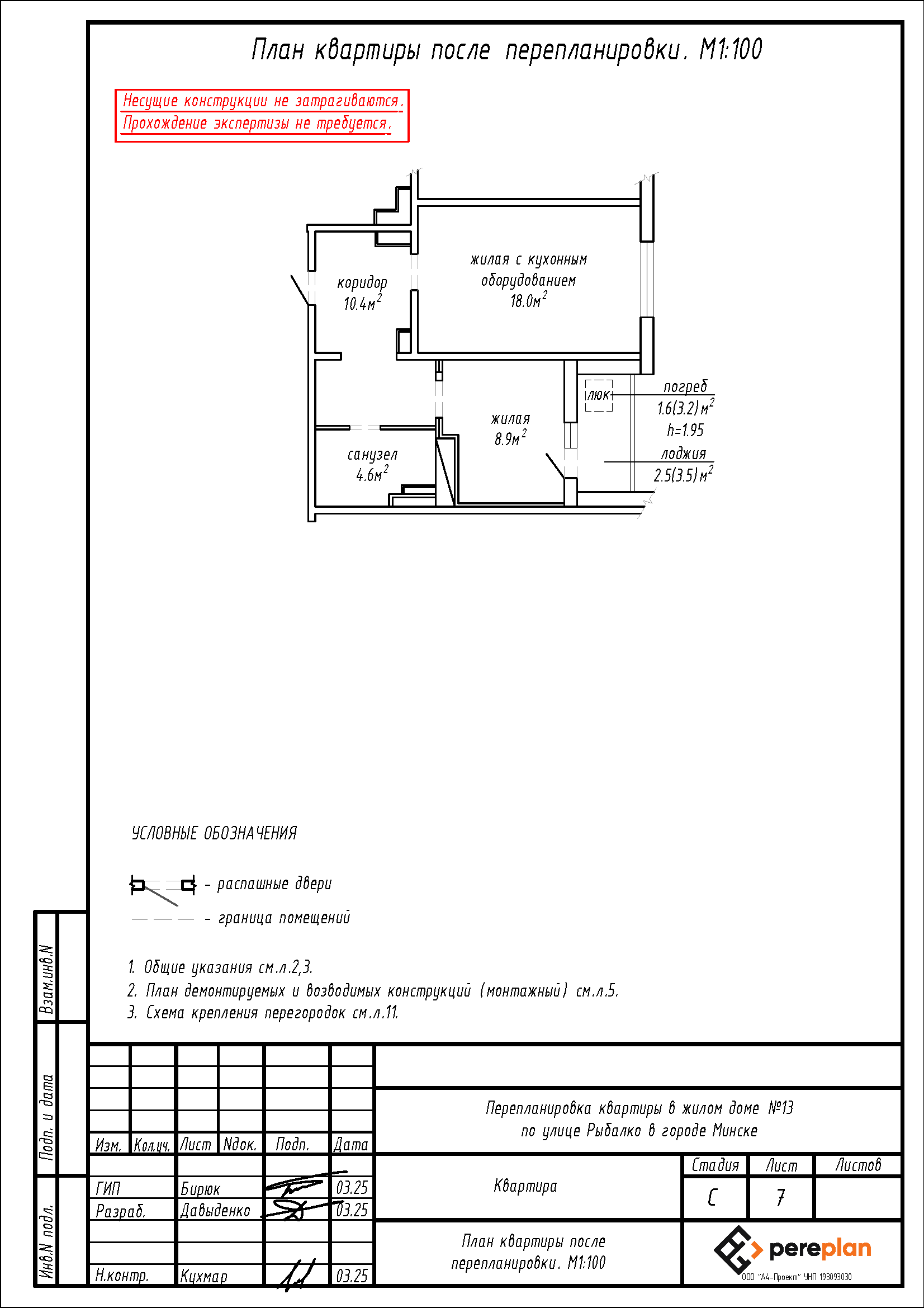
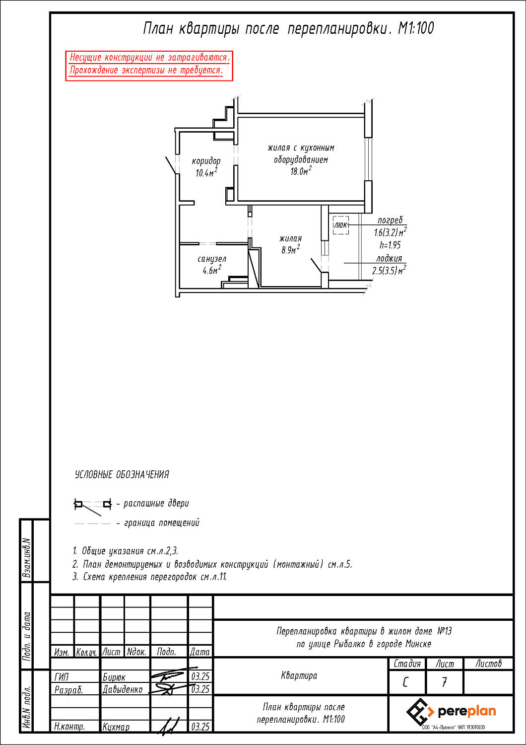
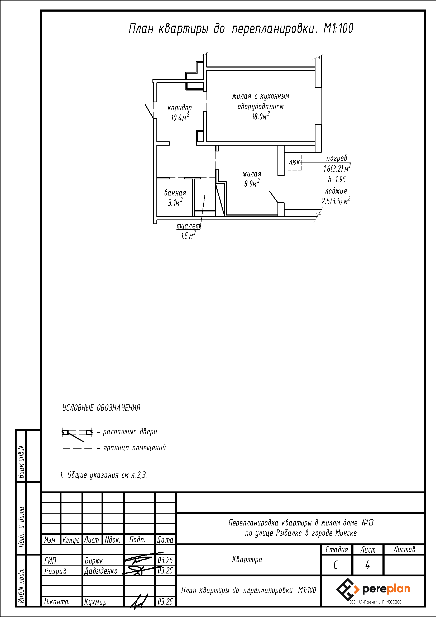
Перепланировка квартиры по ул. Рыбалко, 13 в ЖК «Антоновский квартал»
Пожелания заказчика:
- Устройство санузла на площади ванной и площади туалета;
- Смещение дверного проема между жилой комнатой 8,9 м2 и коридором;
- Уменьшение дверного проема между жилой комнаты с кухонным оборудованием и коридором;
- Устройство зашивки ГКЛ на части площади санузла.
Нами были разработаны следующие разделы проектной документации для согласования в исполкоме:
- АС - архитектурно-строительные решения.
