Перепланировка квартиры по ул. Рыбалко, 11 в ЖК «Антоновский квартал»
Пожелания заказчика:
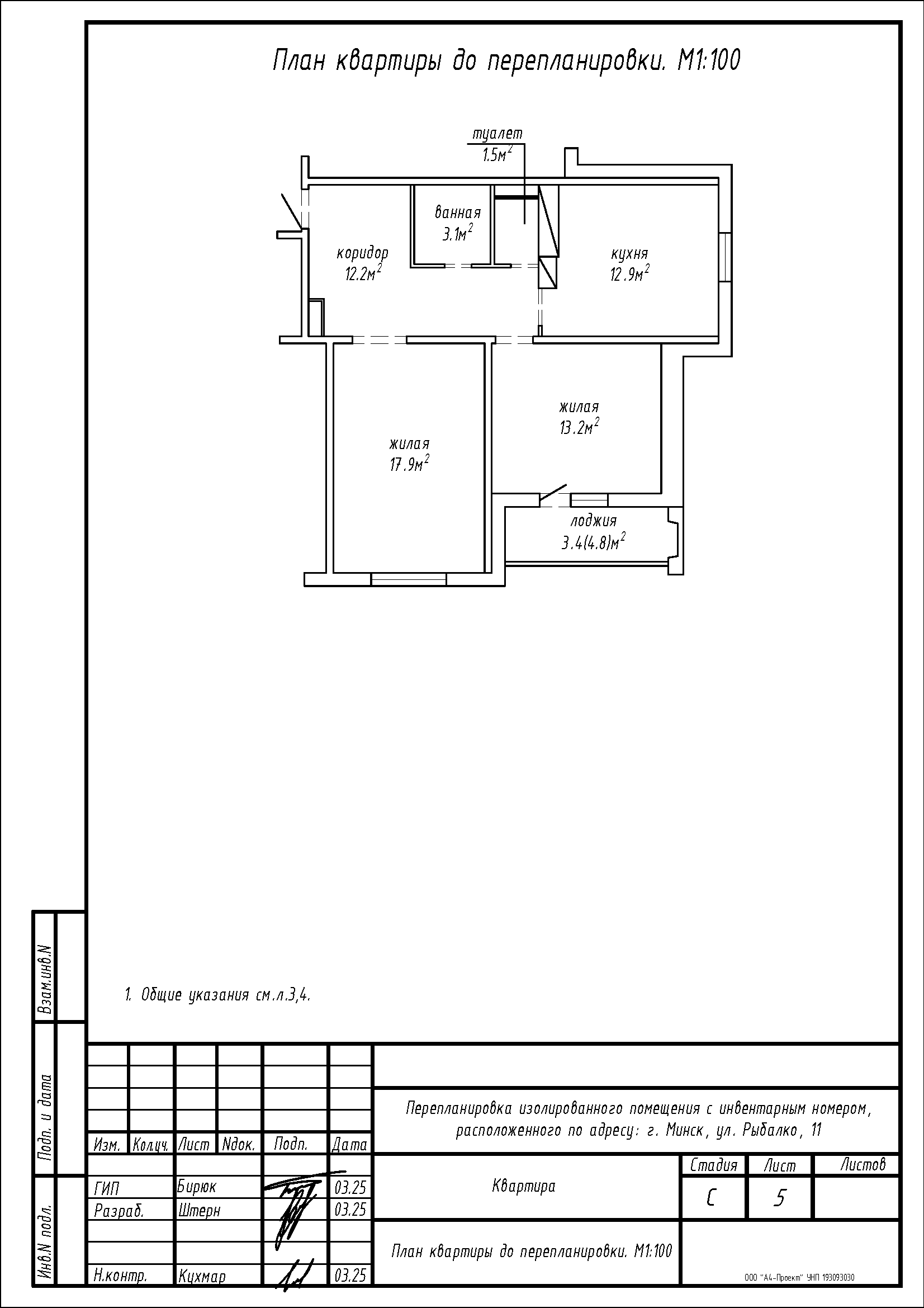
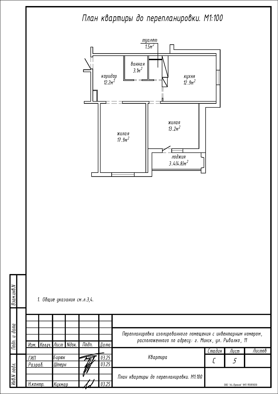
- Демонтаж окна с подоконной частью и дверного блока в жилой комнате 13,2 м2 с установкой остекленного дверного блока выхода на балкон;
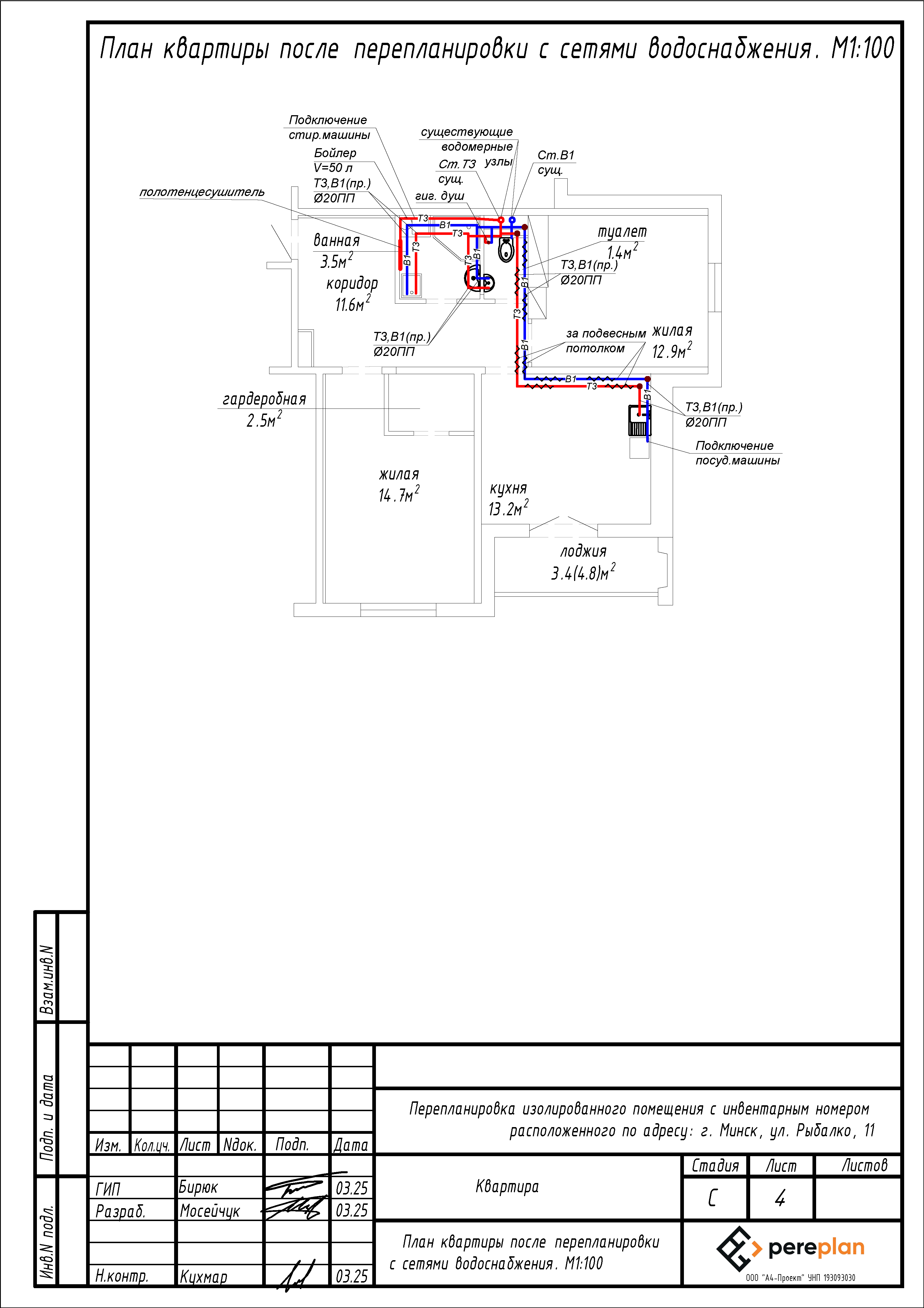
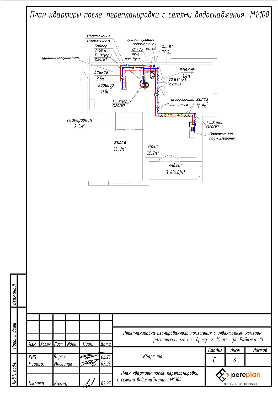
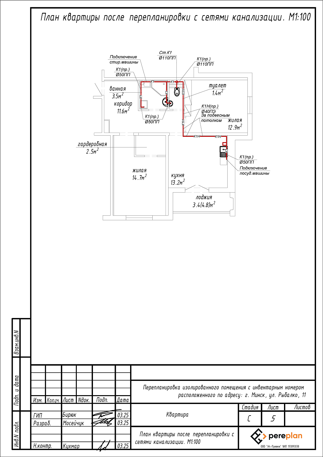
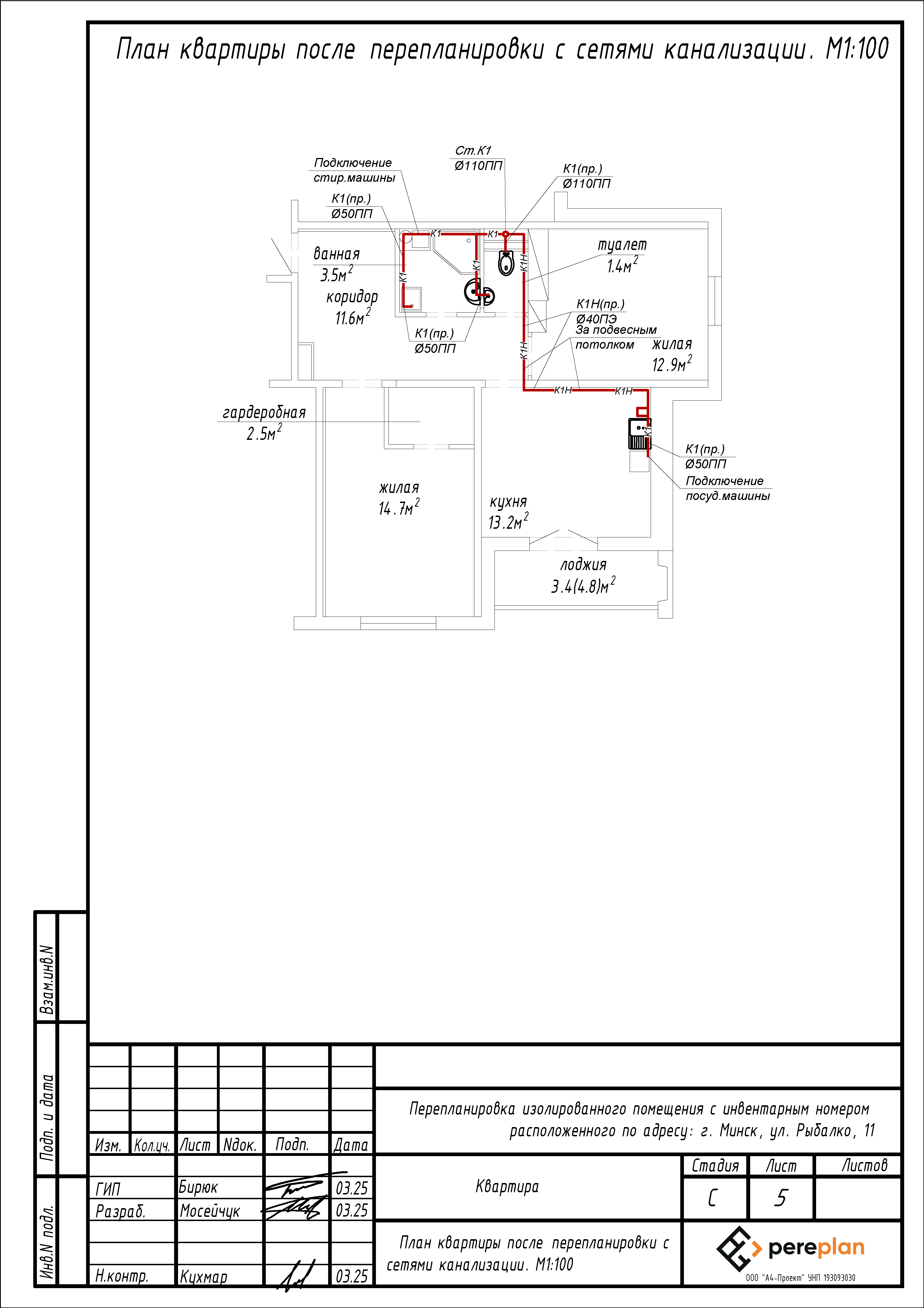
- Устройство ванной на площади ванной и части площади коридора;
- Устройство туалета на площади туалета и части площади коридора;
- Устройство кухни на площади жилой комнаты 13,2 м2, обеспечив повышенную гидро- и звукоизоляцию с устройством вентиляции в соответствии с ТНПА;
- Устройство жилой комнаты на площади кухни;
- Устройство гардеробной на части площади жилой комнаты 17,9 м2;
- Устройство жилой комнаты на части площади жилой комнаты 17,9 м2;
- Устройство коридора на части площади коридора;
- Смещение дверного проема между кухней и коридором;
- Устройство инсталляции;
- Перенос отопительного прибора.
Нами были разработаны следующие разделы проектной документации для согласования в исполкоме:
- АС - архитектурно-строительные решения;
- ОВ - отопление и вентиляция;
- ВК - водоснабжение и канализация.
