Перепланировка квартиры по ул. Розы Люксембург, 193 в г.Минске
Пожелания заказчика:
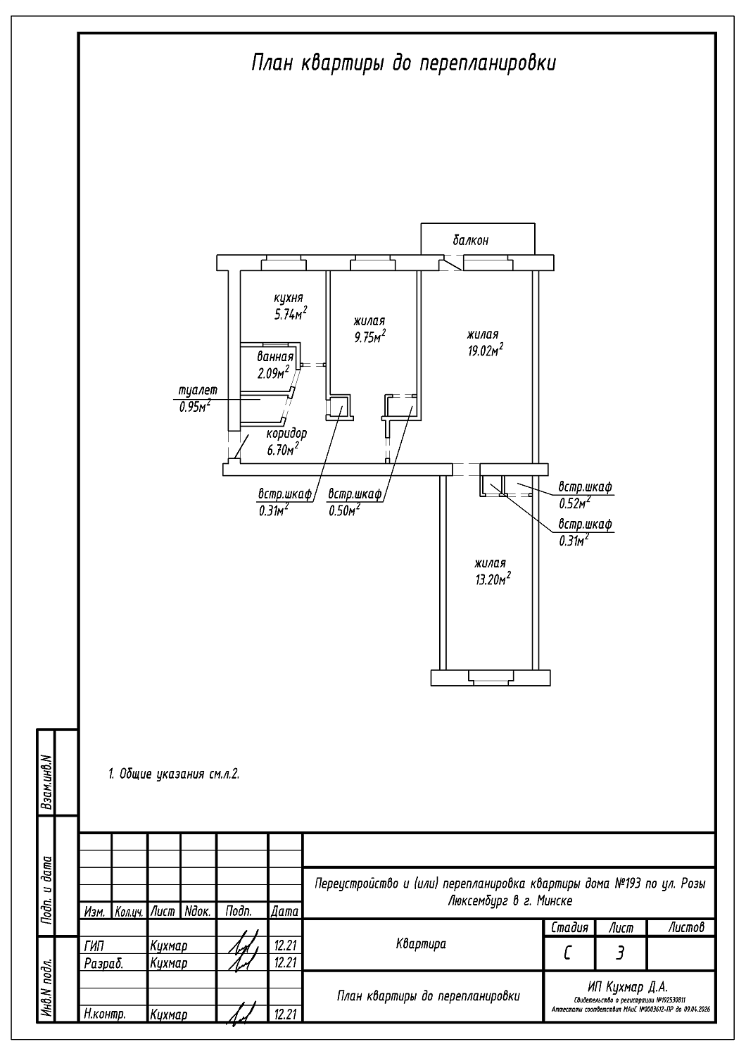
- Закладка оконного проема в перегородке между ванной и кухней;
- Устройство перегородки в кухне с целью устройства кладовой на части площади кухни;
- Демонтаж перегородки между кухней и жилой комнатой с установкой дверного блока;
- Демонтаж встроенных шкафов в квартире;
- Демонтаж перегородки с дверным проемом между жилой комнатой 19.02 м2 и коридором, перегородки между сан. узлами, перегородок с дверными проемами между сан.узлами и коридором, части перегородки между жилыми комнатами;
- Устройство перегородки с дверным проемом в коридоре с целью устройства сан .узла на площади сан. узлов, части площади коридора с устройством гидроизоляции;
- Устройство перегородок с дверными проемами в жилой комнате 19.02 м2 с целью устройства гардеробной и коридора на части площади жилой комнаты 19.02 м2;
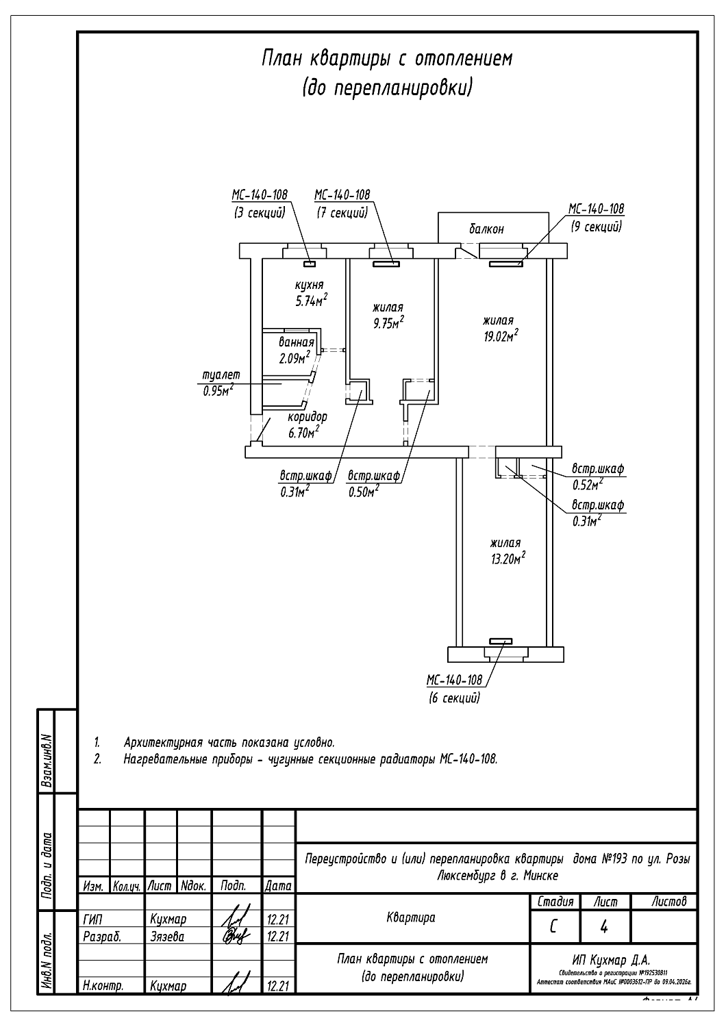
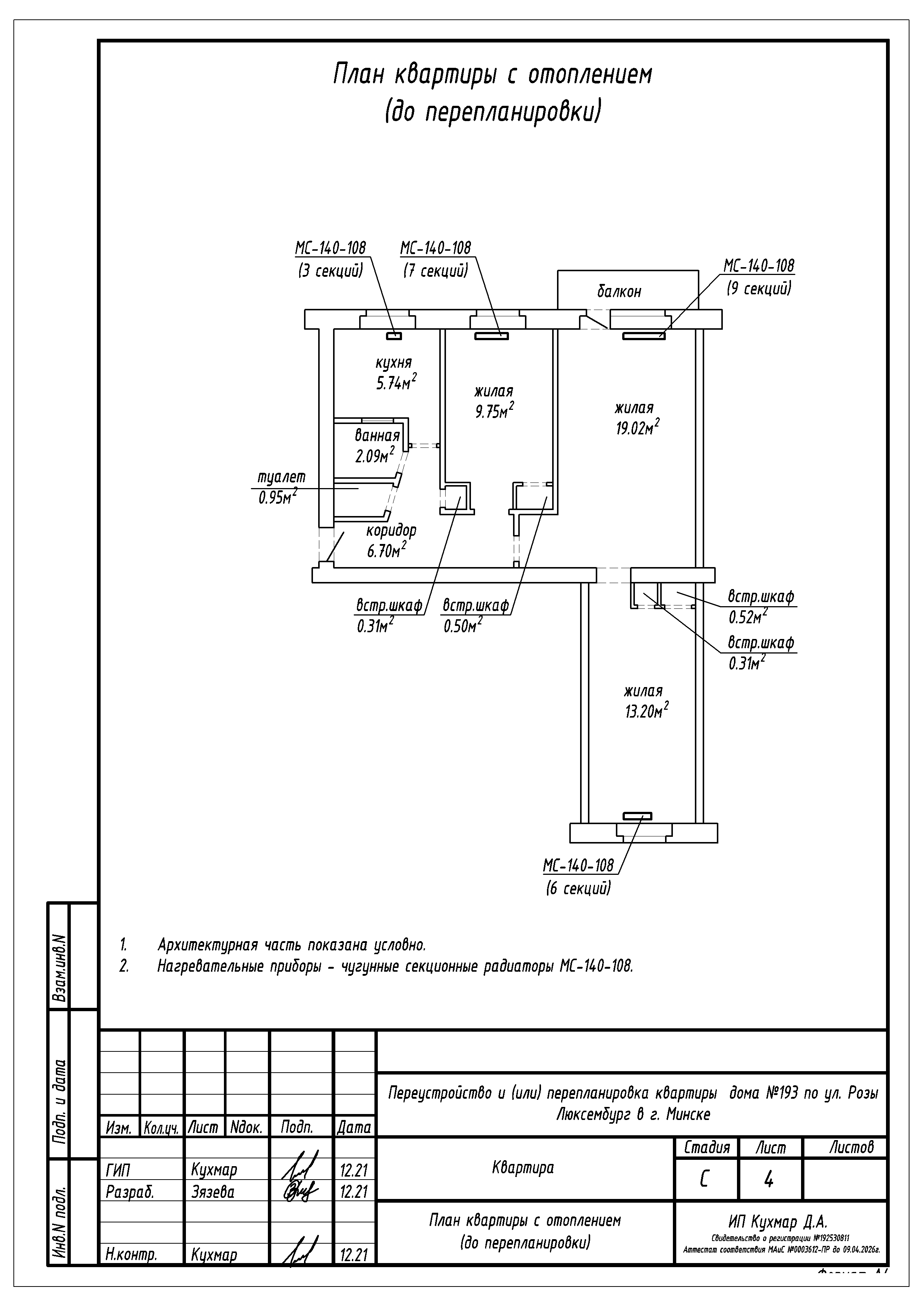
- Перенос и замена отопительных приборов.
Нами были разработаны следующие разделы проектной документации для согласования в исполкоме:
- АС - архитектурно-строительные решения;
- ОВ - отопление и вентиляция.
