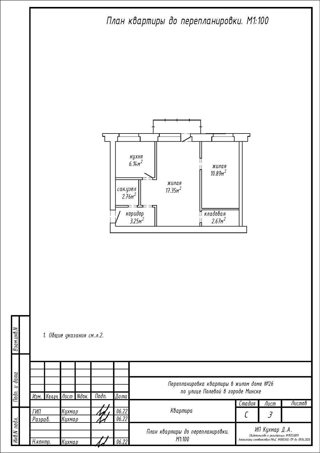
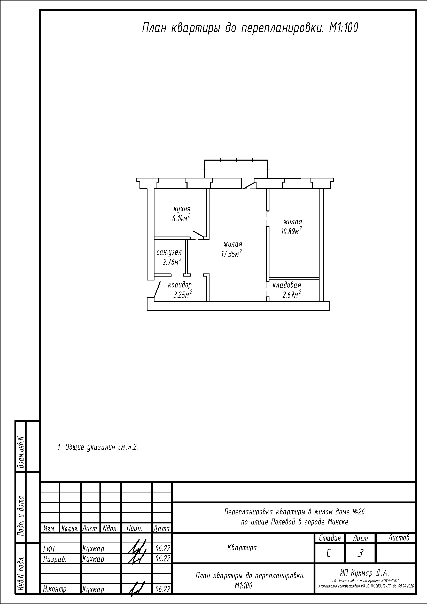
Перепланировка квартиры по ул. Полевая, 26 в г. Минске
Пожелания заказчика:
- Устройство дверного проема из санитарного узла в существующую жилую комнату;
- Устройство дверного проема с дверным блоком из кухни в жилую комнату;
- Устройство кладовой на части площади жилой комнаты;
- Закладка существующего дверного проема из кухни в существующую жилую комнату;
- Демонтаж перегородки между коридором и жилой комнатой.
Нами были разработаны следующие разделы проектной документации для согласования в исполкоме:
- АС - архитектурно-строительные решения.
