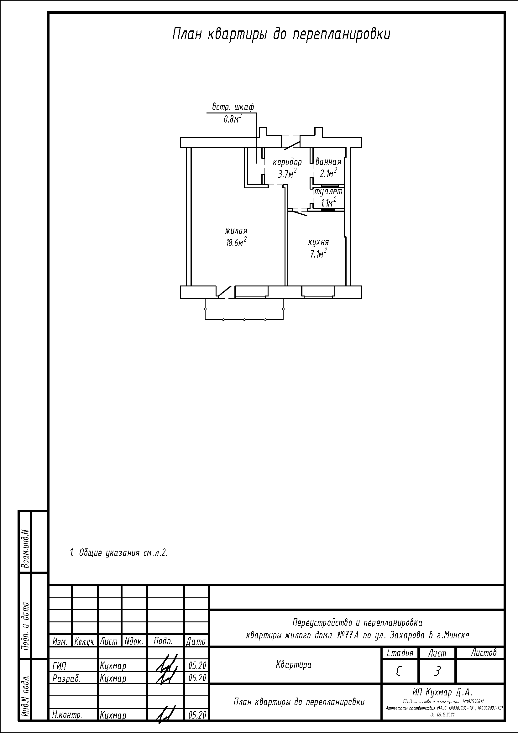
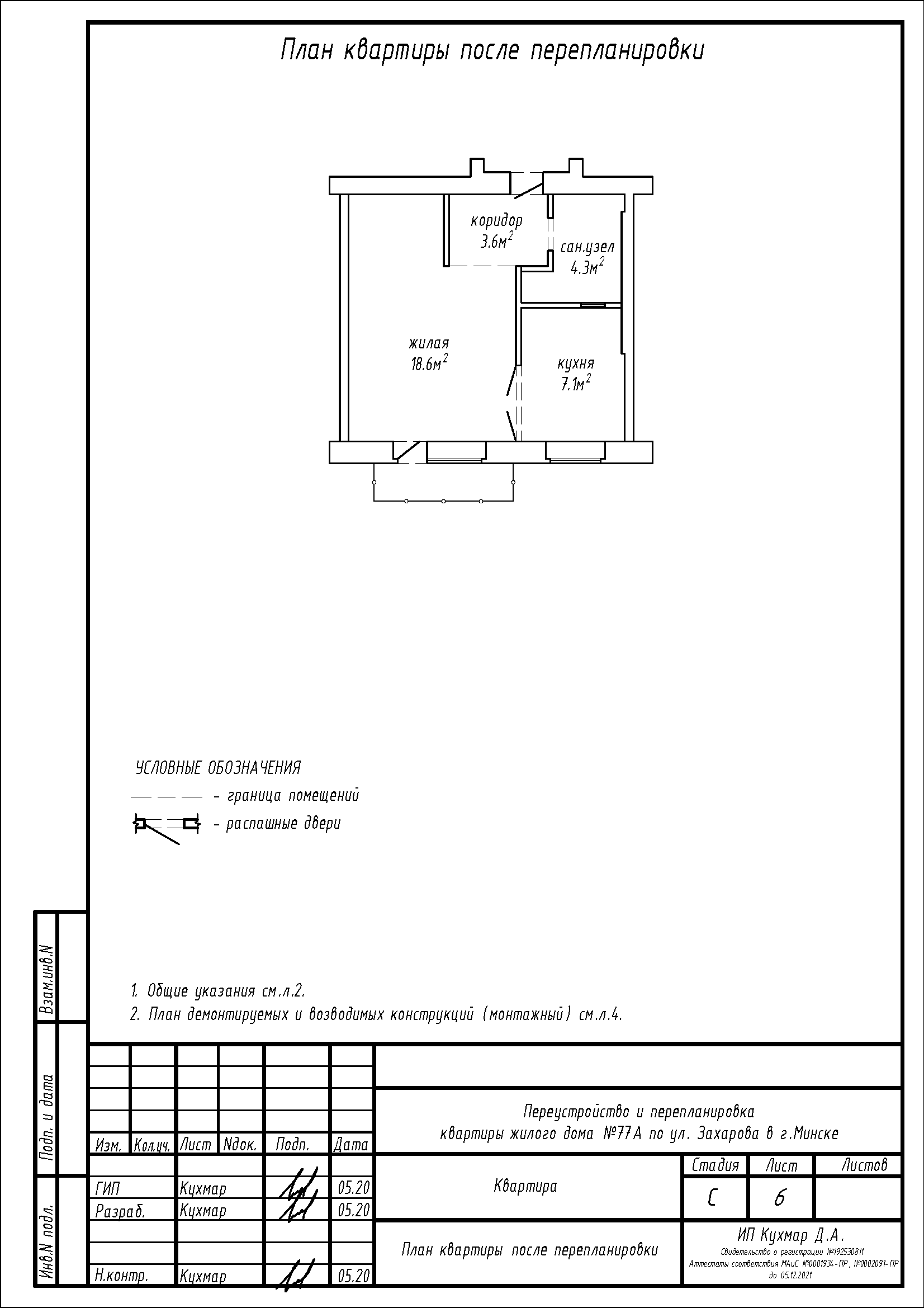
Перепланировка квартиры по ул. Захарова, 77А в г. Минске
Пожелания заказчика:
- Устройство сан.узла за счёт ванной, туалета и части коридора;
- Увеличение площади коридора за счёт площади встроенного шкафа;
- Закладка существующего дверного входа в кухню и устройство нового со стороны жилой комнаты с монтажом дверного блока в образованный проём.
Нами были разработаны следующие разделы проектной документации для согласования в исполкоме:
- АС - архитектурно-строительные решения.
