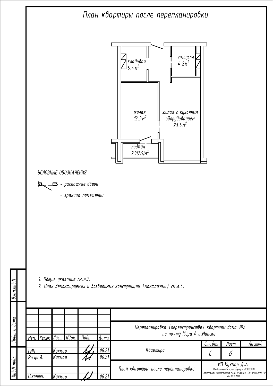
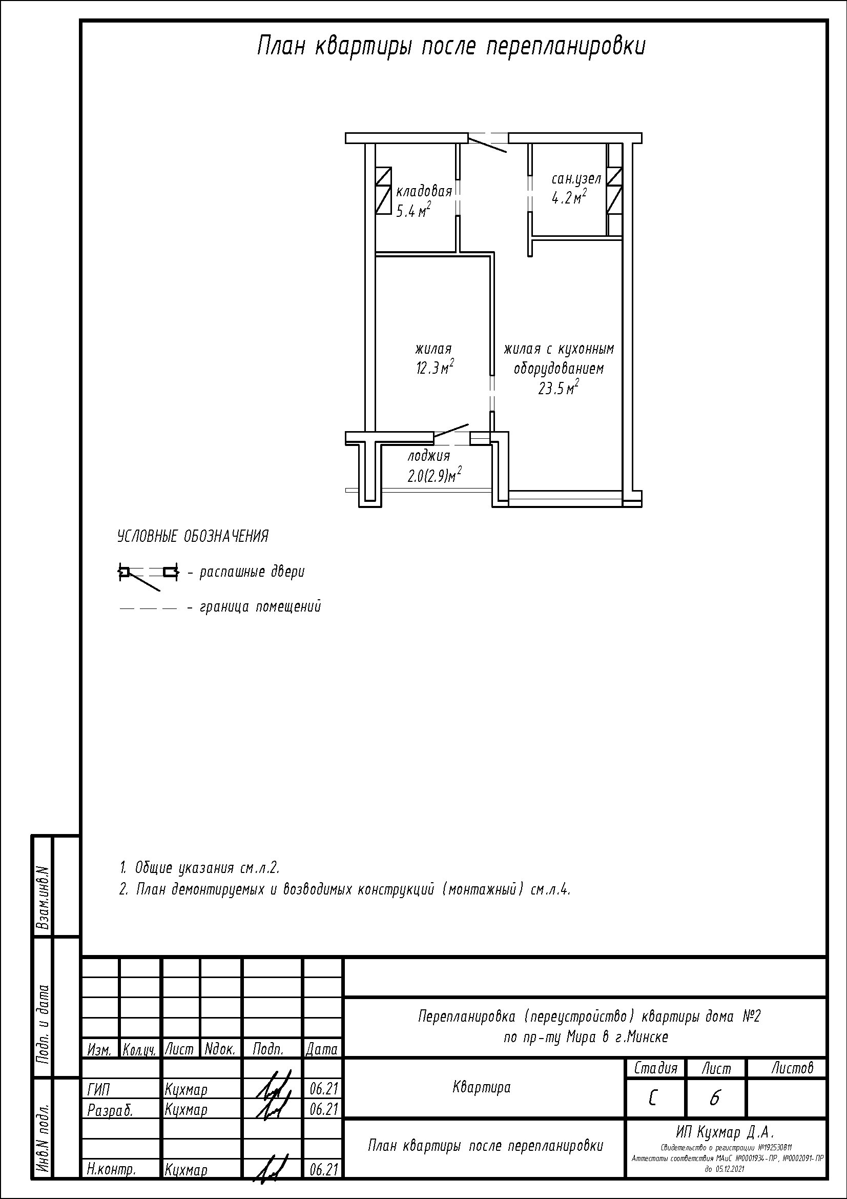
Перепланировка квартиры по пр-ту Мира, 2 в ЖК «Минск Мир»
Пожелания заказчика:- Разделение общего помещения жилой с кухонным оборудованием на жилую с кухонным оборудованием, жилую и кладовую;
- Изменение габаритов санузла.
Нами были разработаны следующие разделы проектной документации для согласования в исполкоме:
- АС - архитектурно-строительные решения.
