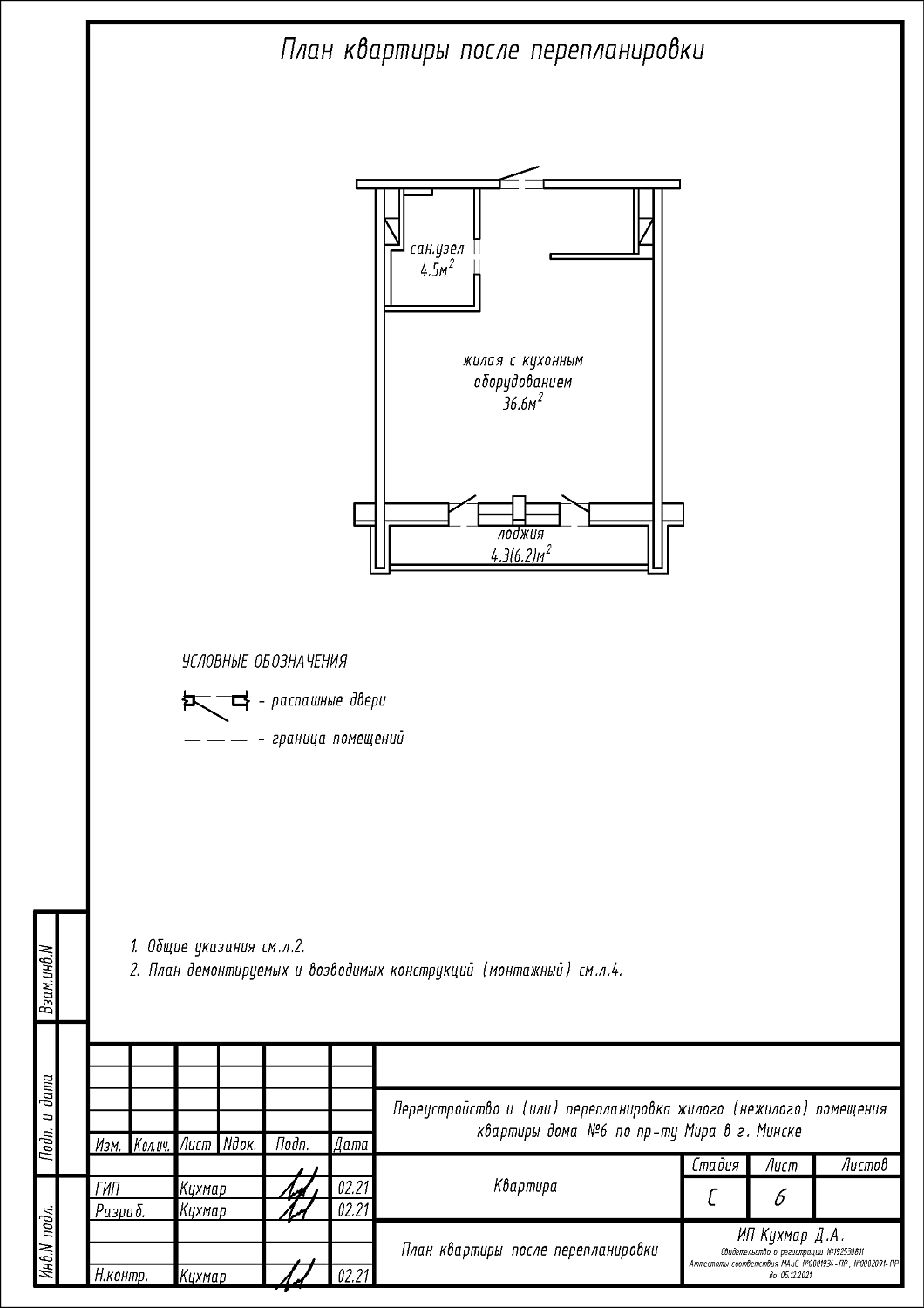
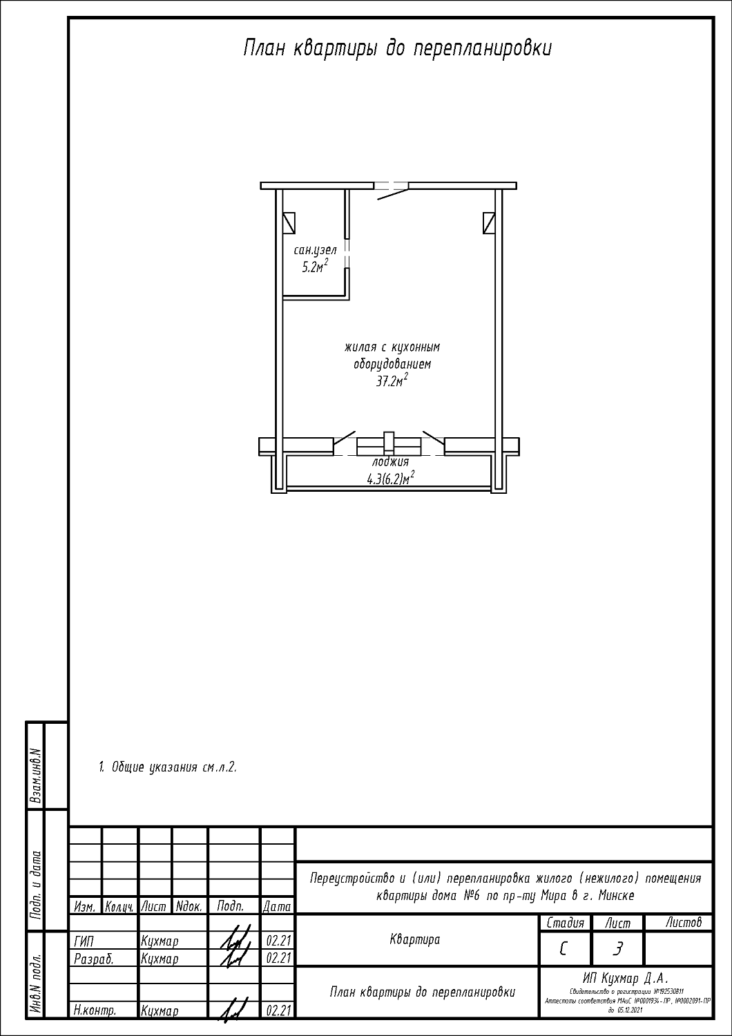
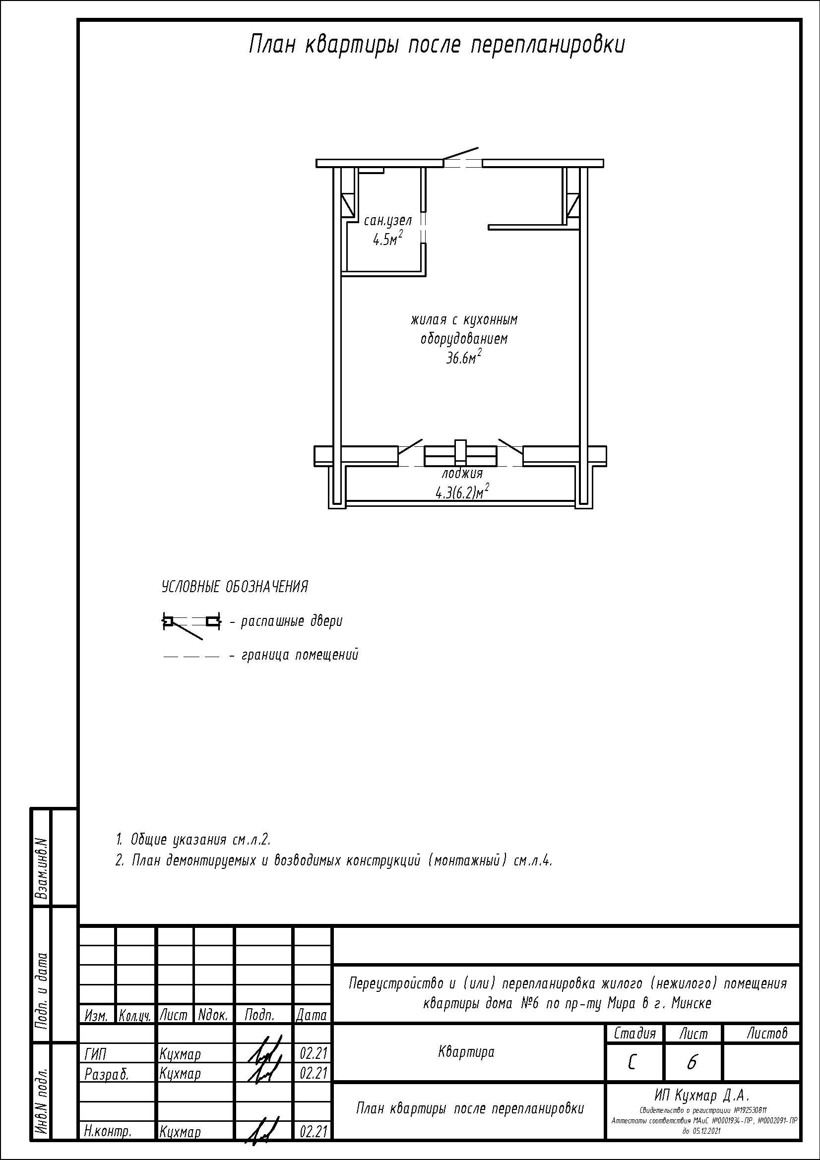
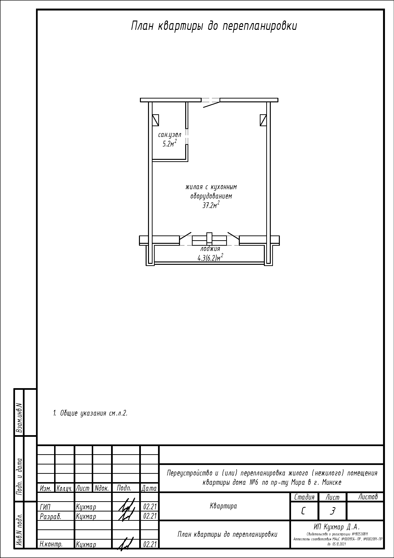
Перепланировка квартиры по пр-ту Мира, 6 в ЖК «Минск Мир»
Пожелания заказчика:
- Увеличение площади санузла за счёт площади жилой с кухонным оборудованием;
Нами были разработаны следующие разделы проектной документации для согласования в исполкоме:
- АС - архитектурно-строительные решения.
