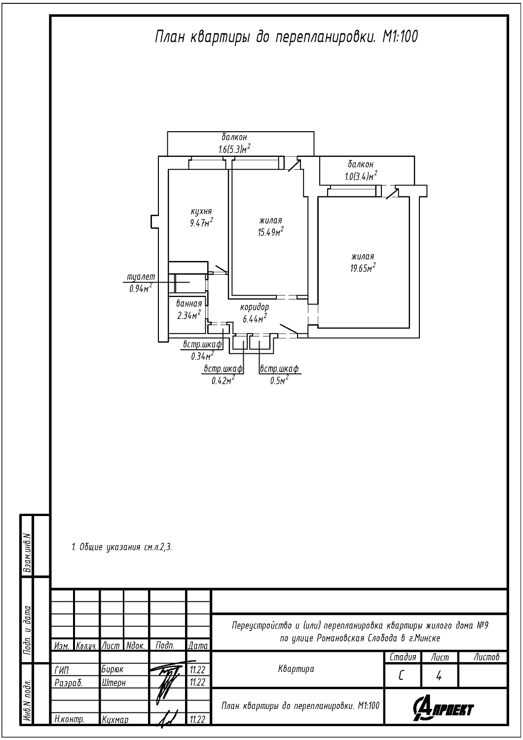
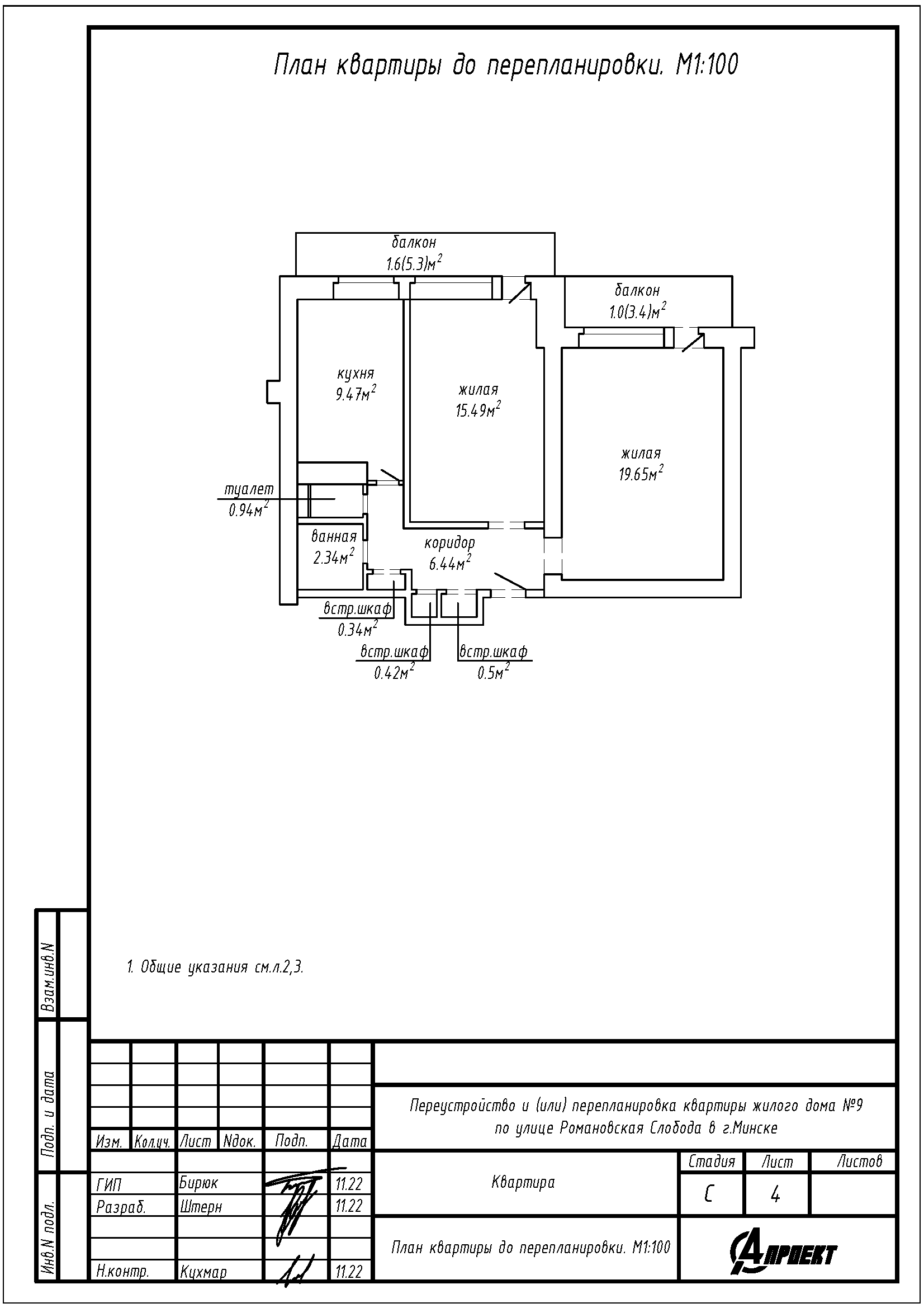
Перепланировка квартиры по ул. Романовская Слобода, 9 в г. Минске
Пожелания заказчика:
- Устройство дверного проёма между кухней и балконом с устройством дверного блока;
- Устройство перегородки с дверным проёмом в кухне с целью устройства кухни на части площади кухни;
- Демонтаж встроенных шкафов в квартире, перегородок с дверными проёмами между санузлами и коридором, части перегородок между санузлами, перегородки с дверным проёмом между кухней и коридором, части перегородок между жилой комнатой и коридором с последующим устройством встроенного шкафа на части площади коридора;
- Закладка дверного проёма в перегородке между жилой комнатой и коридором;
- Устройство перегородки с дверным проёмом в жилой комнате с целью устройства жилой комнаты на части площади жилой комнаты;
- Устройство встроенного шкафа на части площади балкона с последующим разделением балкона на два;
- Устройство остекления балконов.
Нами были разработаны следующие разделы проектной документации для согласования в исполкоме:
- АС - архитектурно-строительные решения.
