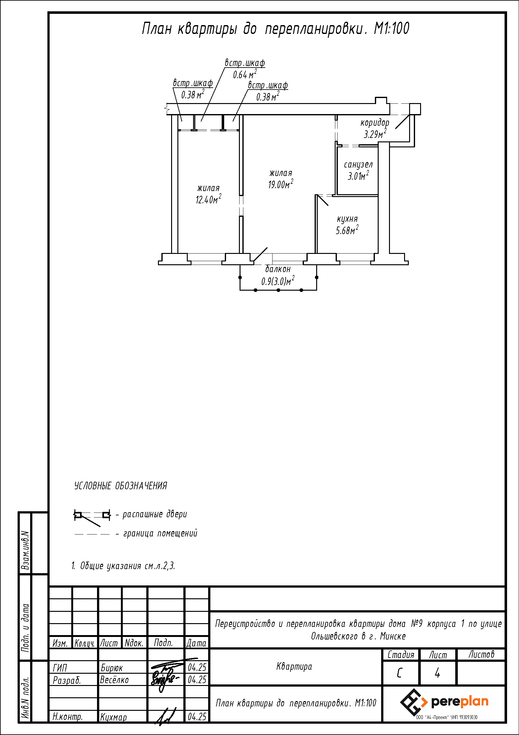
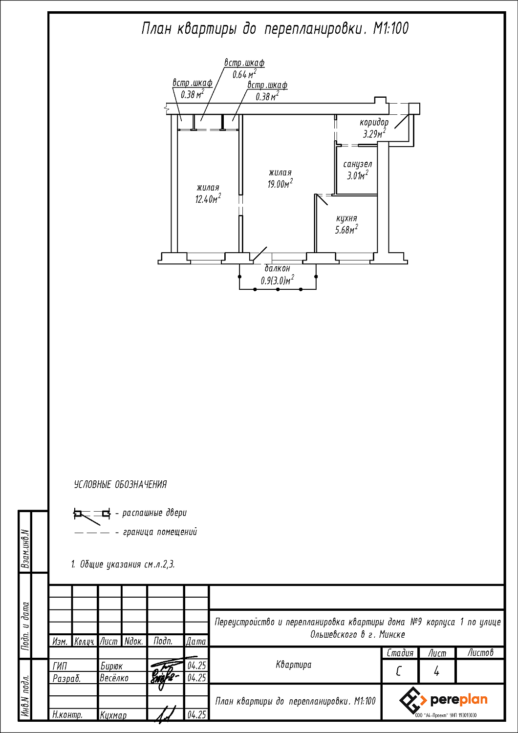
Перепланировка квартиры по ул. Ольшевского, 9/1 в г. Минске
Пожелания заказчика:
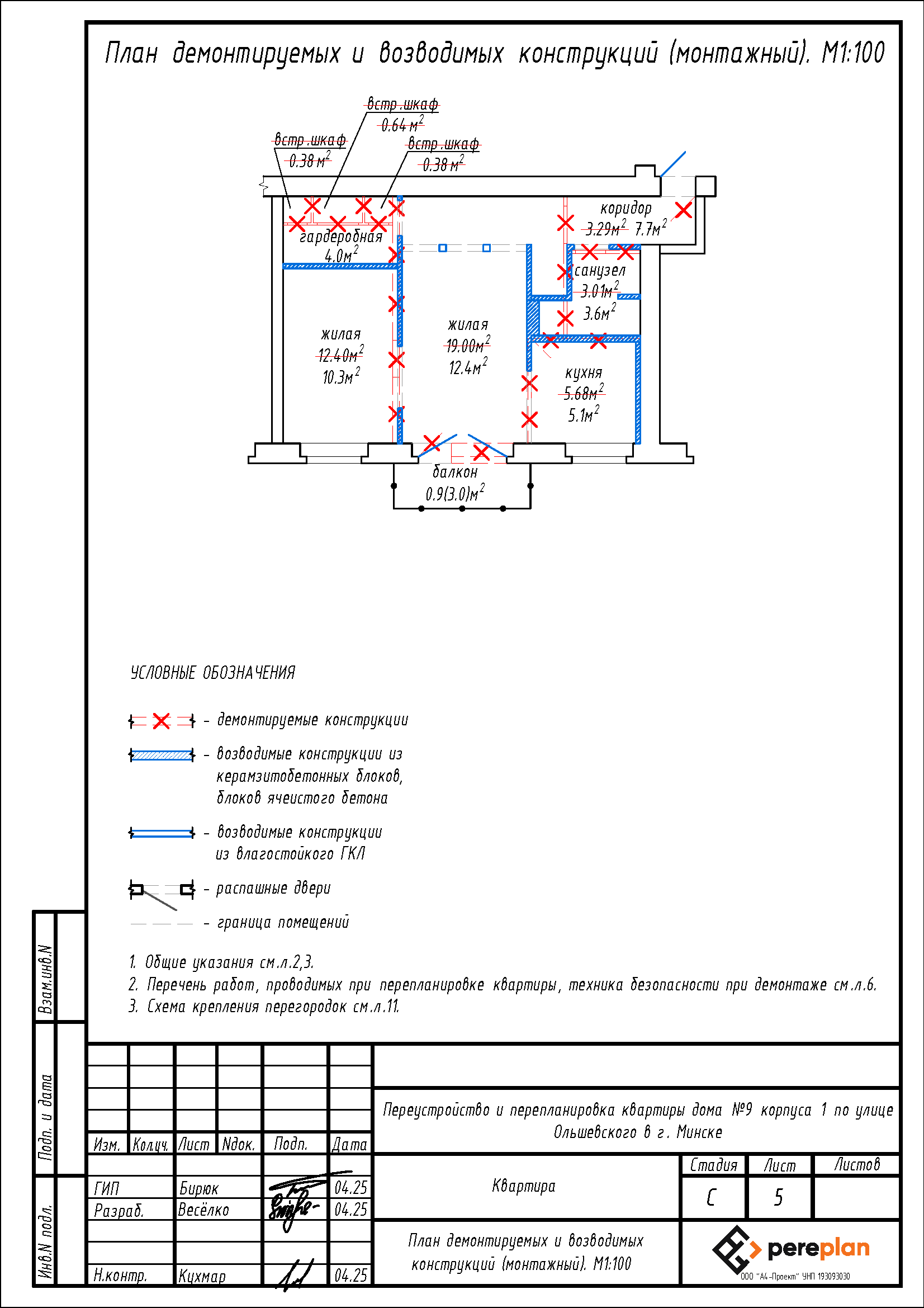
- Демонтаж встроенных шкафов;
- Демонтаж перегородок с дверными проемами между жилой 12.40 м2, жилой 19.00 м2, кухней, санузлом и коридором с последующим устройством новых перегородок на части площади жилой 12.40 м2, жилой 19.00 м2, кухни 5.68 м2, санузла 3.01, коридора с целью увеличения санузла за счет площади жилой с устройством гидроизоляции пола, устройства помещений: гардеробной, двух жилых, кухни, санузла и коридора;
- Демонтаж дверного блока, оконного блока и подоконной части в стене между балконом и жилой с устройством нового дверного блока;
- Замена газовой плиты на электрическую;
- Замена дверного блока входной двери со сменой направления открывания.
Нами были разработаны следующие разделы проектной документации для согласования в исполкоме:
- АС - архитектурно-строительные решения.
