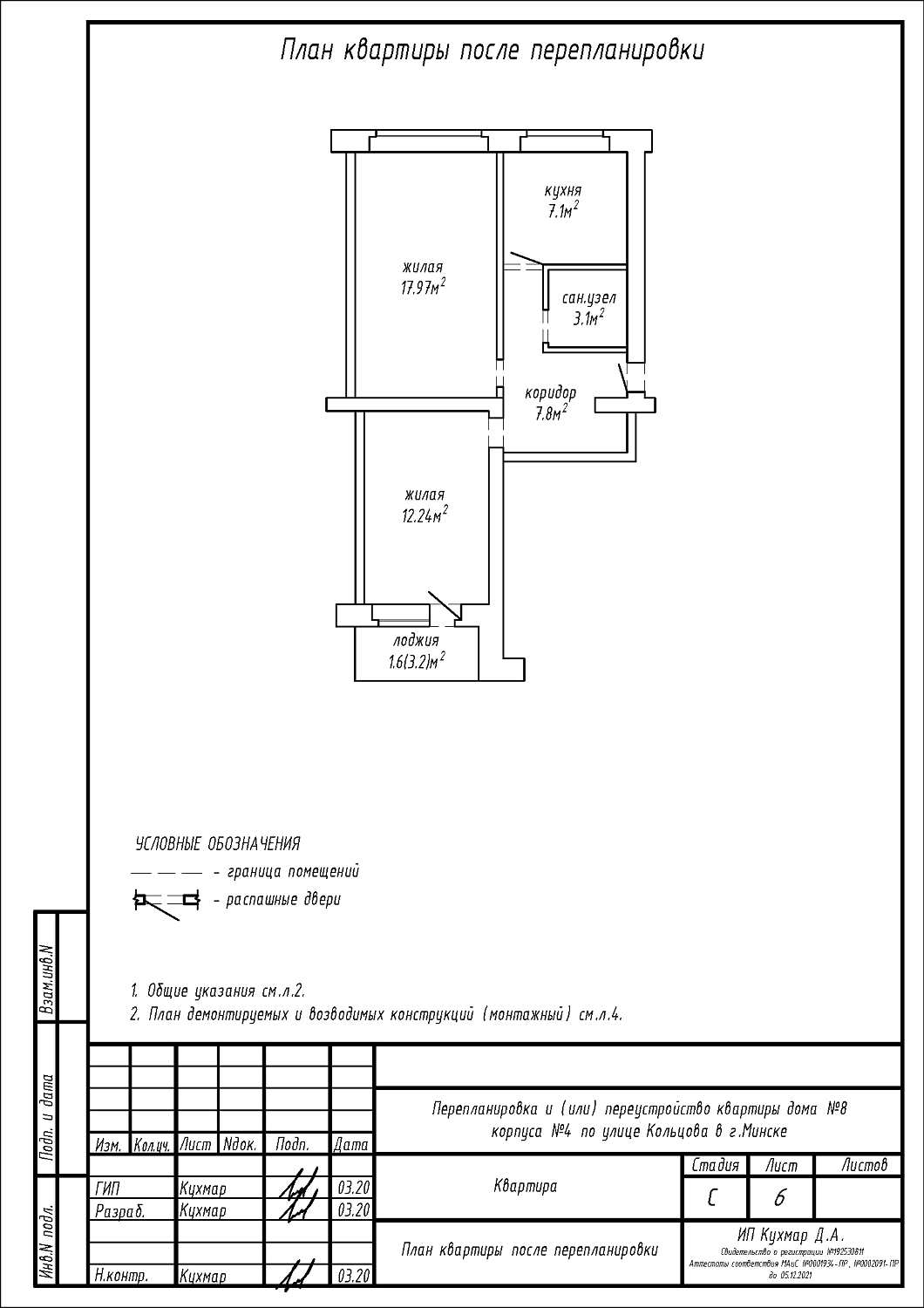
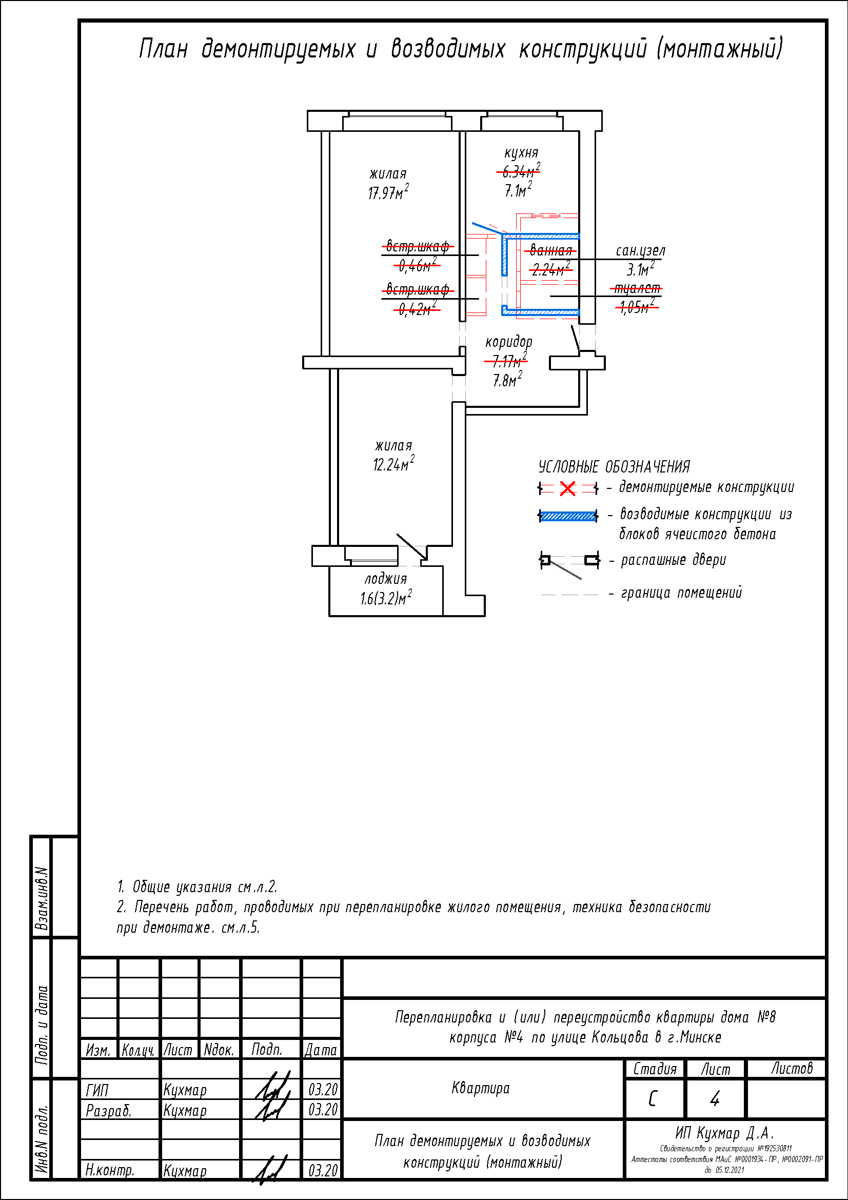
Перепланировка квартиры по ул. Кольцова 8 к.4 в г.Минске
Пожелания заказчика:
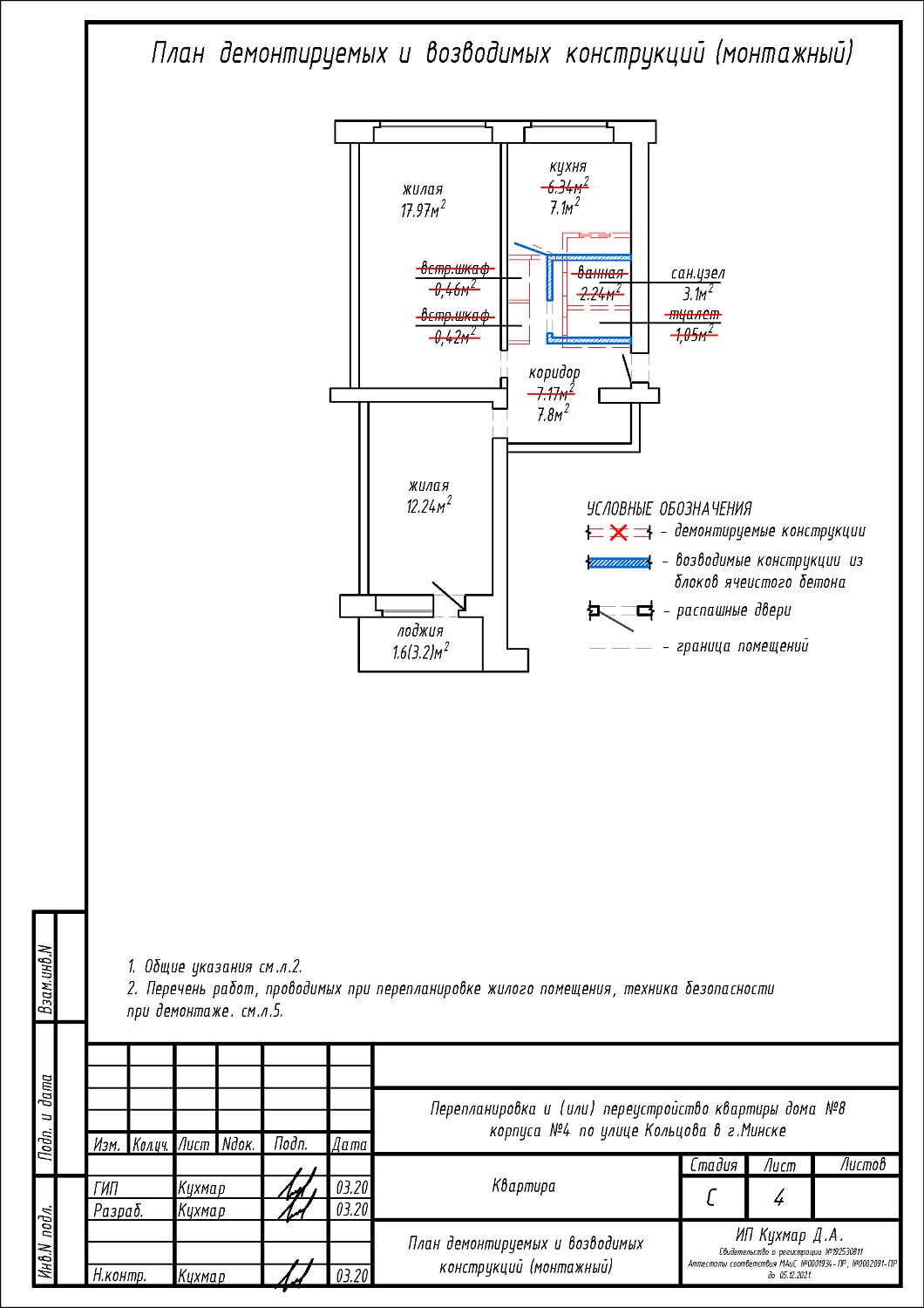
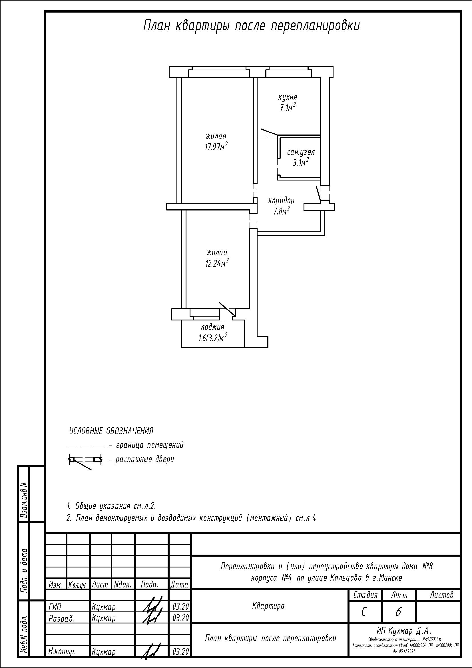
- Демонтаж встроенных шкафов;
- Объединение ванной и туалета в единый санузел; изменение габаритов санузла;
- Изменение габаритов кухни и коридора.
Нами были разработаны следующие разделы проектной документации для согласования в исполкоме:
- АС- архитектурно-строительные решения.
