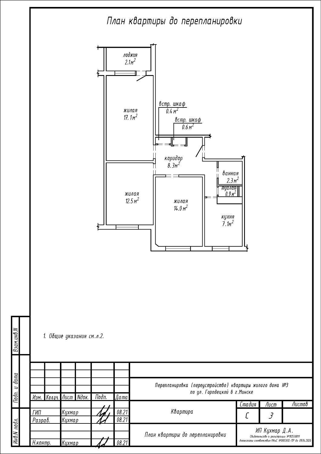
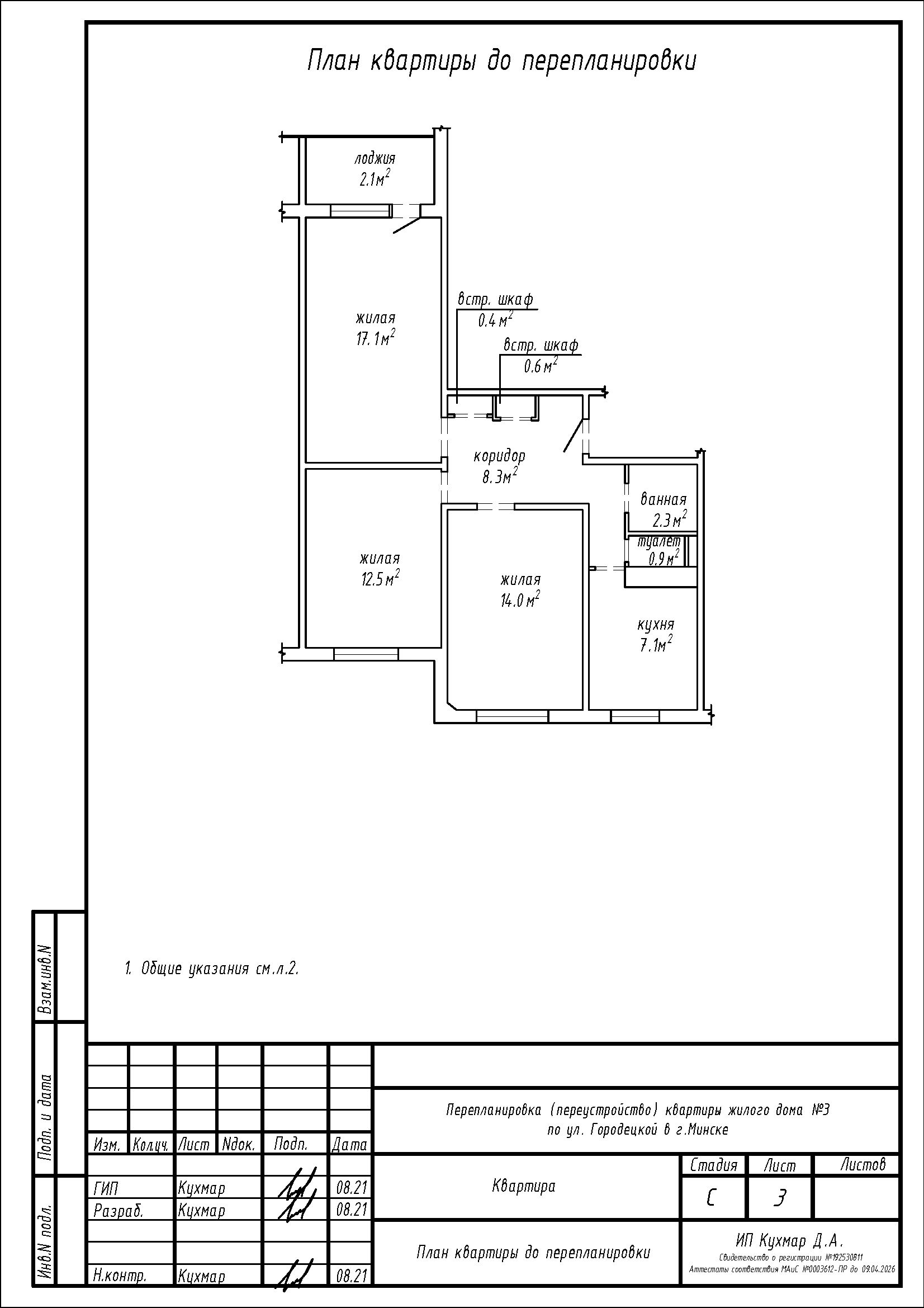
Перепланировка квартиры по ул. Городецкая, 13 в г.Минске
Пожелания заказчика:
- Объединение ванной и туалета в единый санузел;
- Демонтаж встроенных шкафов;
- Устройство дверного проёма между жилой и кухней;
- Закладка дверного проёма между кухней и коридором, с целью увеличения санузла за счёт части площади коридора;
- Смена направления открывания входной двери.
Нами были разработаны следующие разделы проектной документации для согласования в исполкоме:
- АС - архитектурно-строительные решения.
