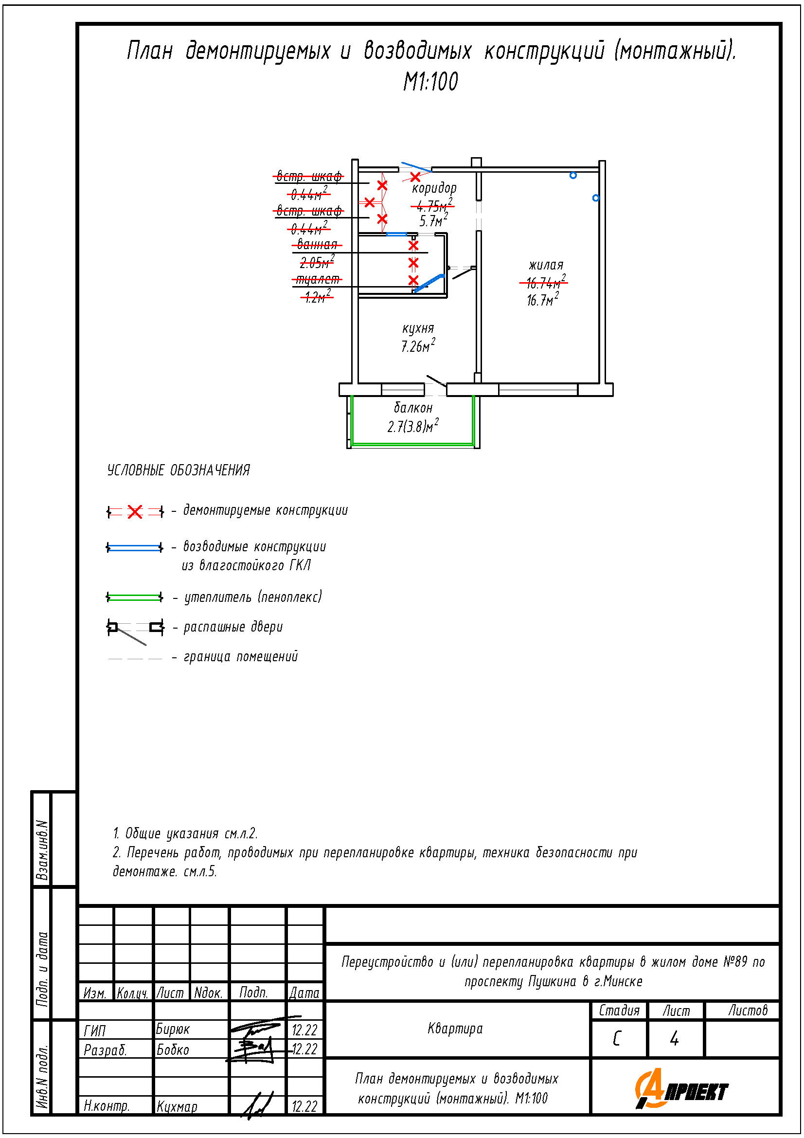
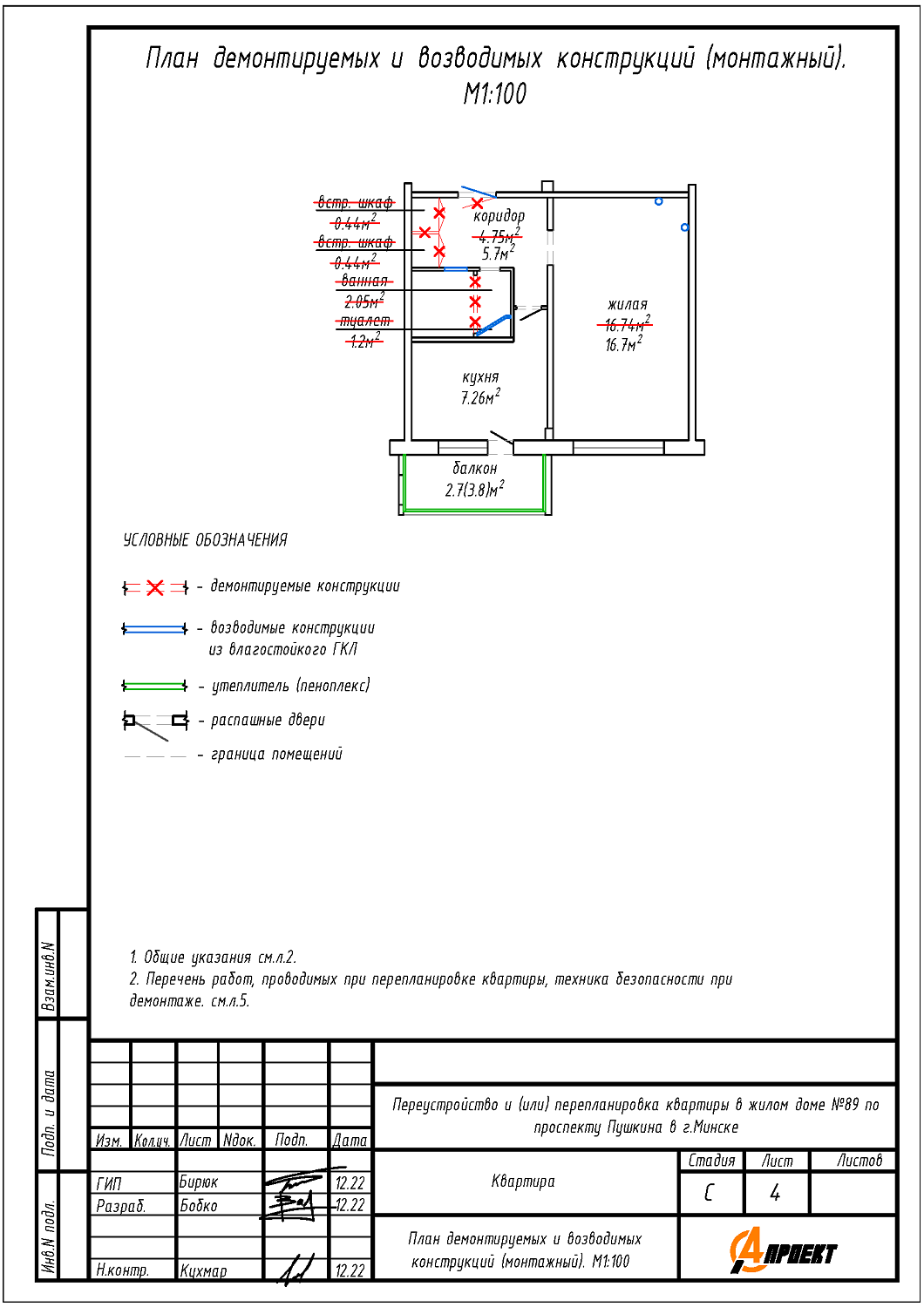
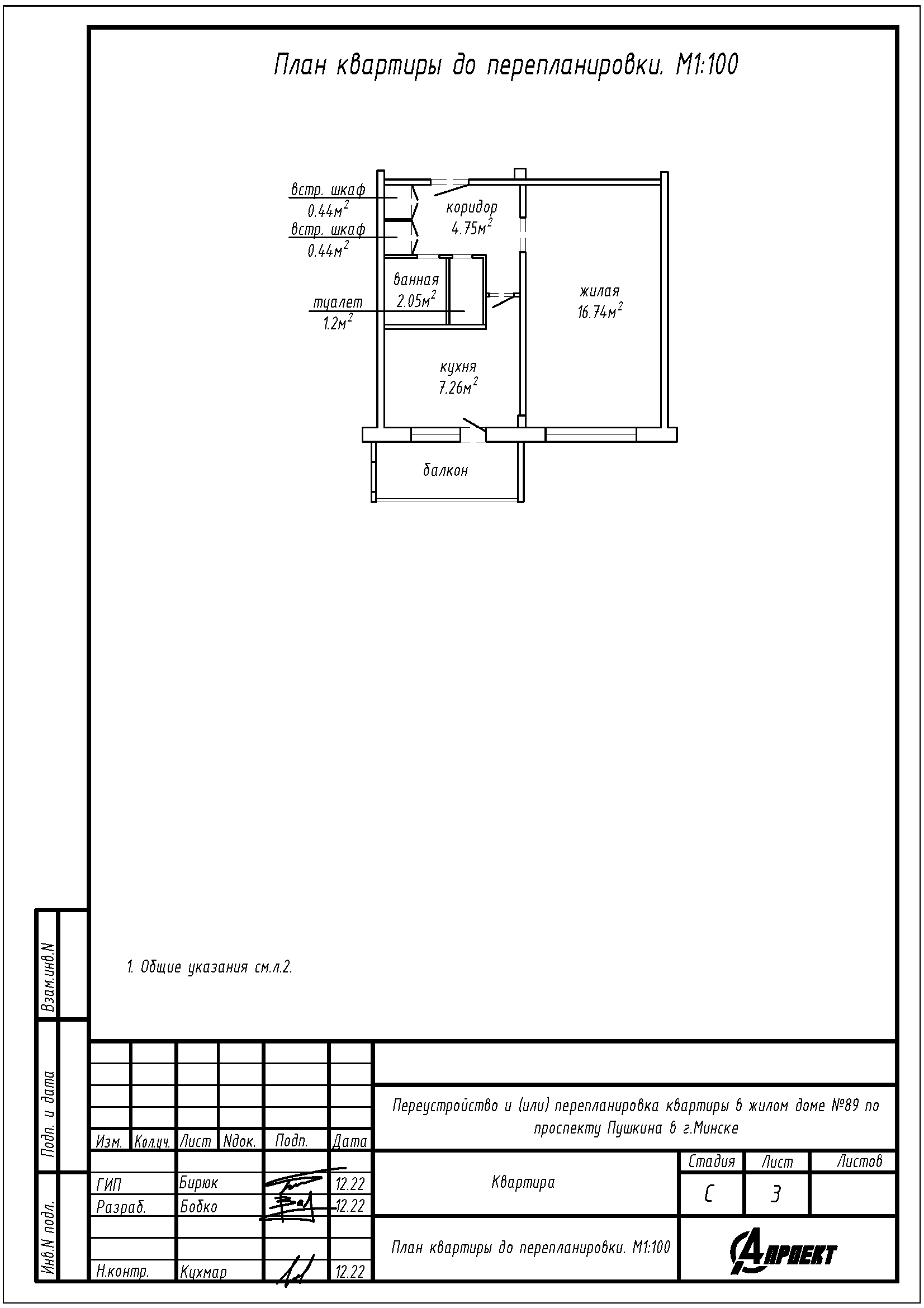
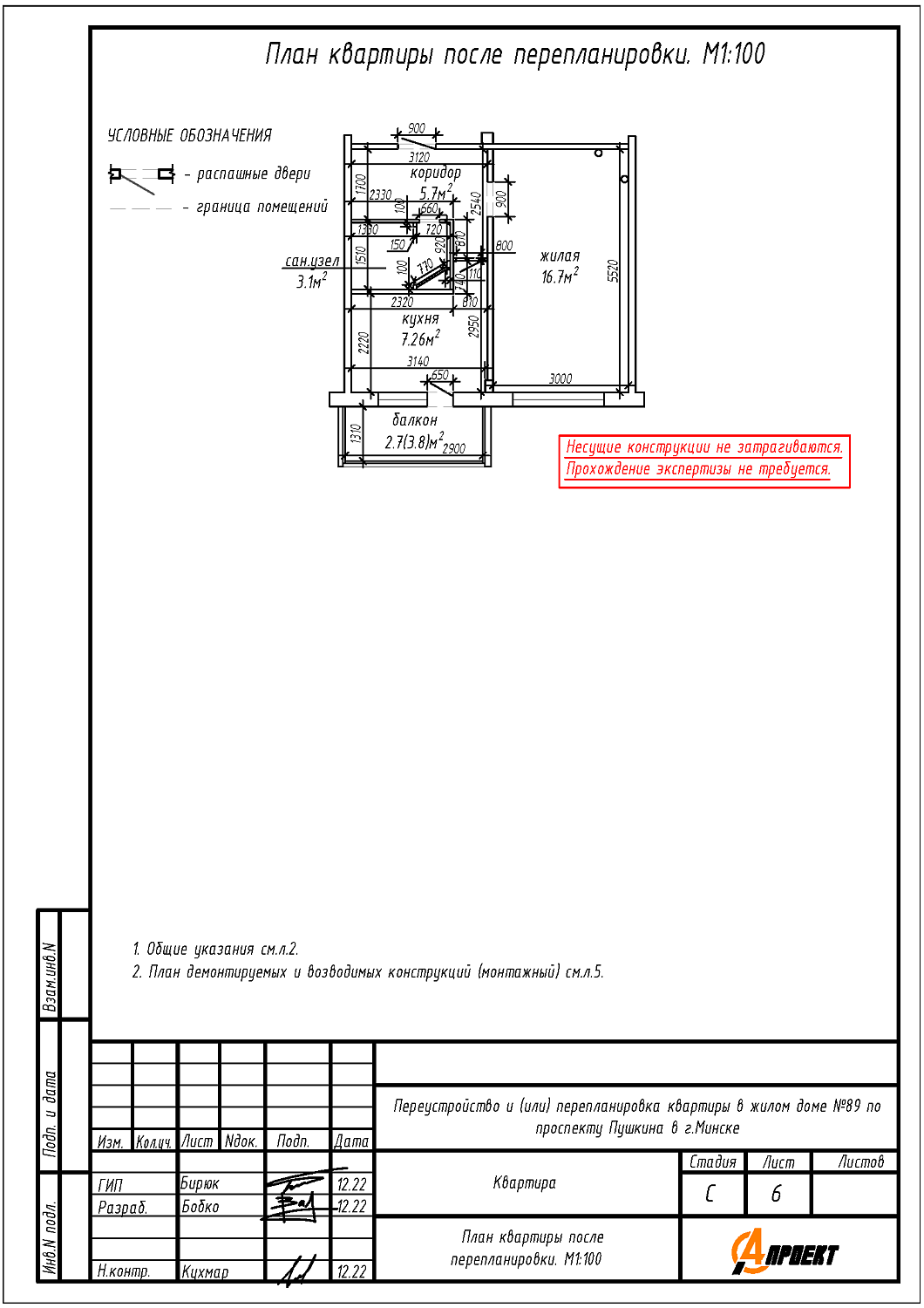
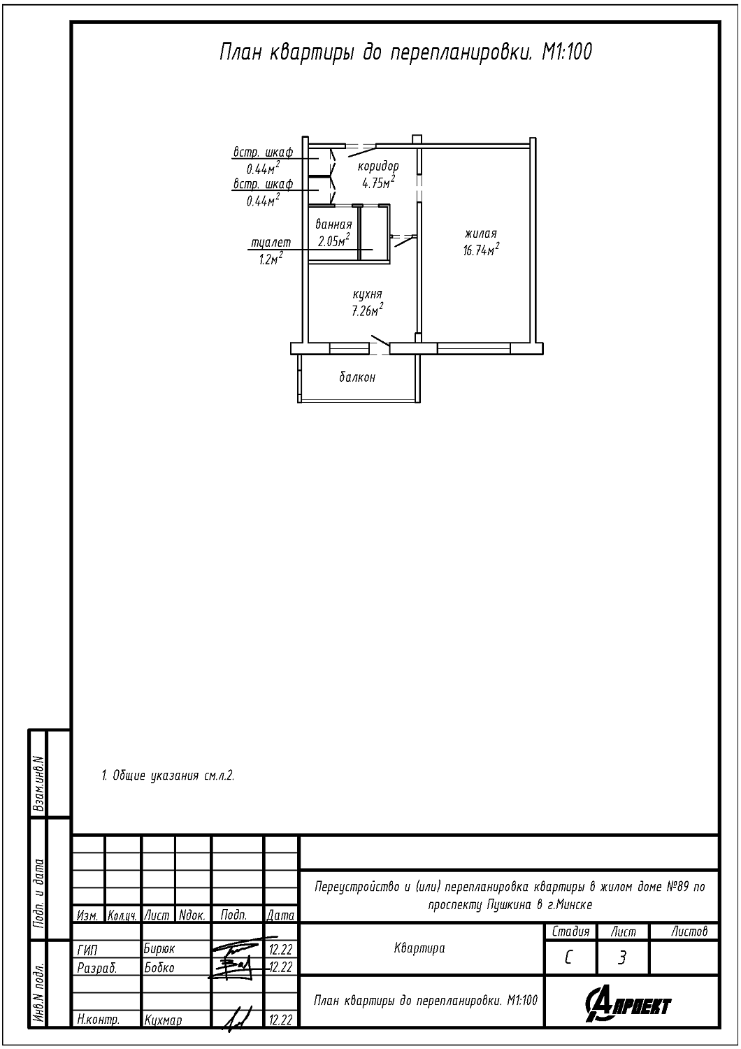
Перепланировка квартиры по пр-ту Пушкина, 89 в г.Минске
Пожелания заказчика:
- Объединение ванной и туалета в единый санузел;
- Демонтаж встроенных шкафов;
- Устройство конструкций из ГКЛ на части площади жилой;
- Устройство утепления на площади балкона;
- Замена дверного блока входной двери со сменой направления открывания.
Нами были разработаны следующие разделы проектной документации для согласования в исполкоме:
- АС - архитектурно-строительные решения.
