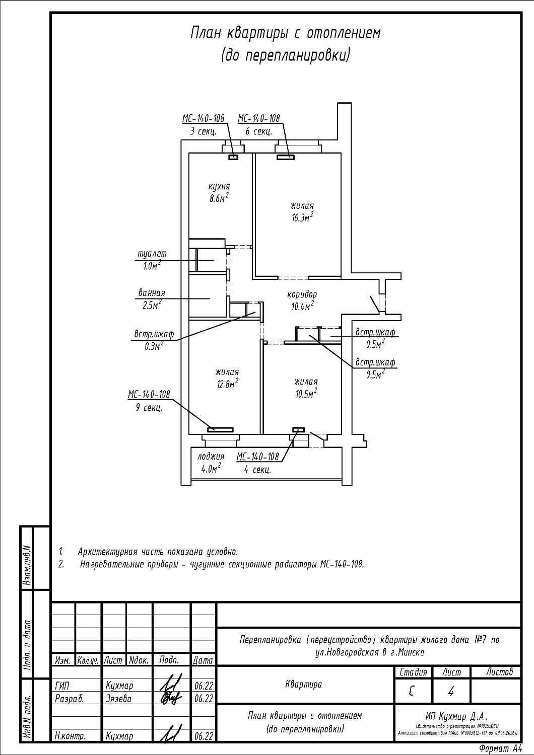
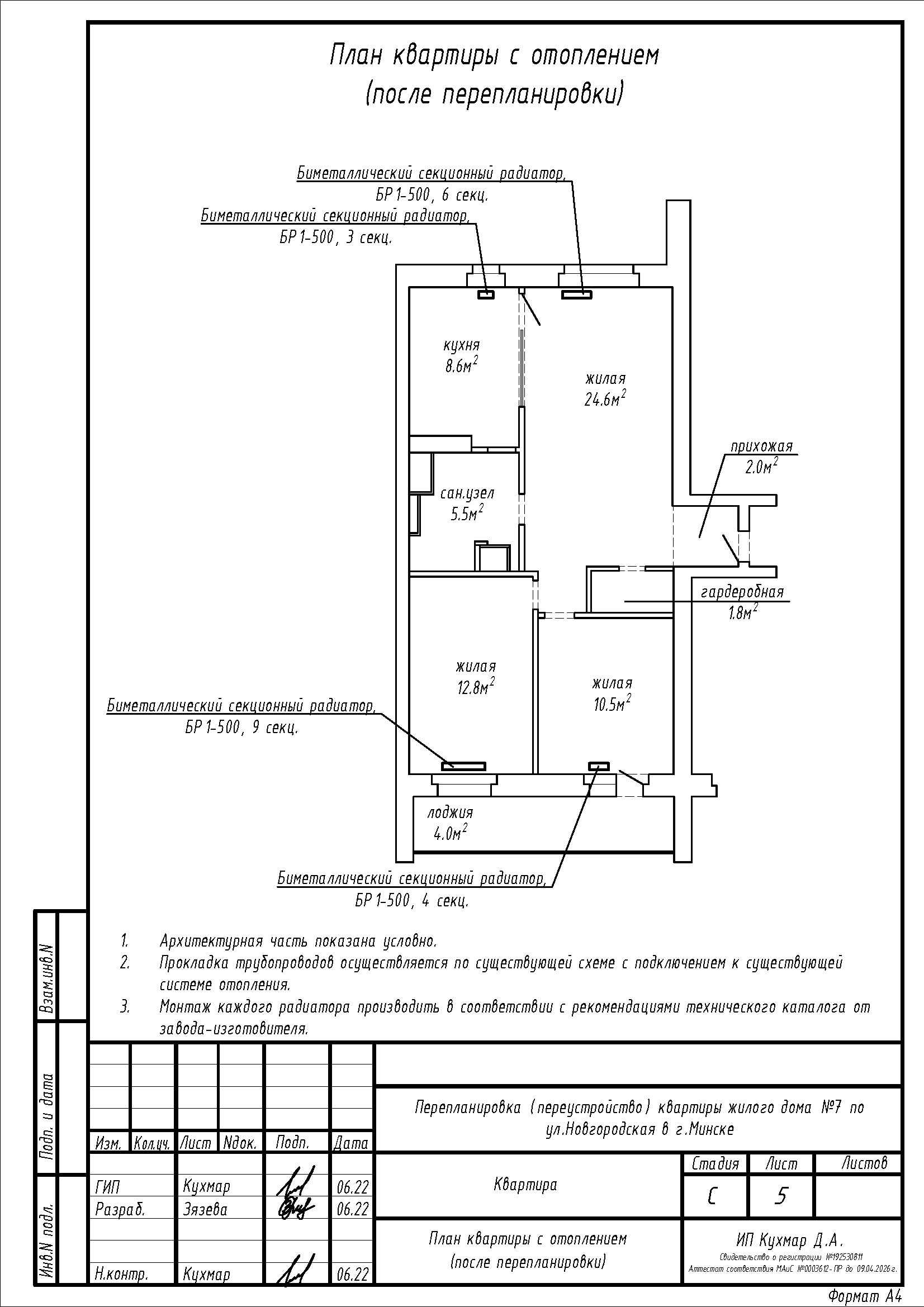
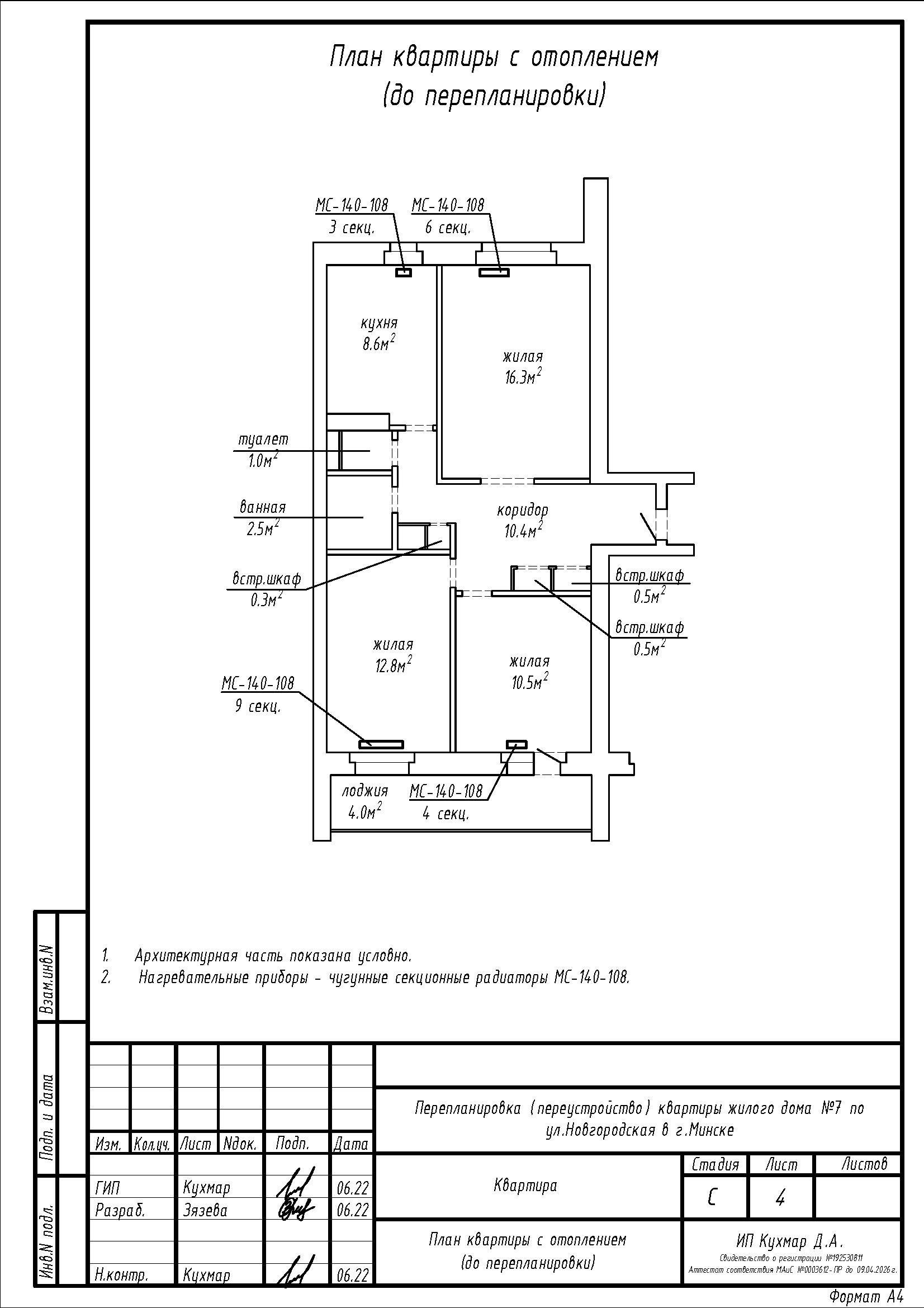
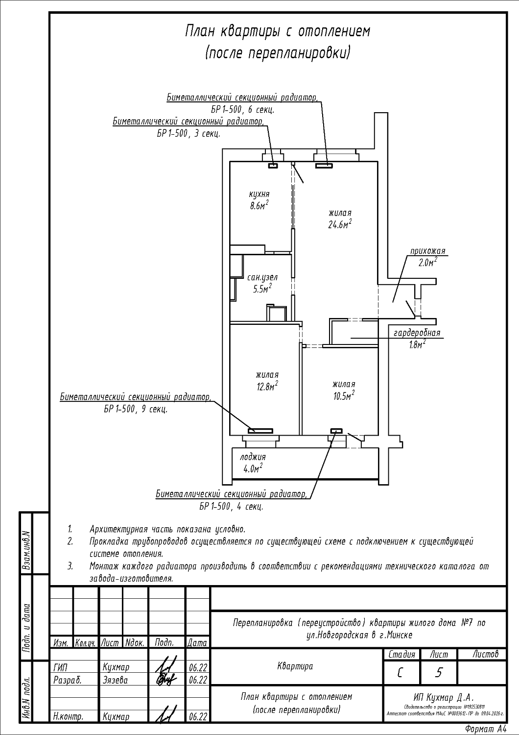
Перепланировка квартиры по ул. Новгородская, 7 в г. Минске
Пожелания заказчика:
- Объединение ванной и туалета в единый санузел;
- Увеличение площади санузла за счёт площади коридора, но не более чем на 25 %;
- Демонтаж встроенных шкафов;
- Устройство гардеробной и прихожей на площади коридора;
- Демонтаж перегородок между жилой и коридором;
- Устройство дверного проёма между кухней и жилой;
- Замена приборов отопления.
Нами были разработаны следующие разделы проектной документации для согласования в исполкоме:
- АС - архитектурно-строительные решения;
- ОВ - отопление и вентиляция.
