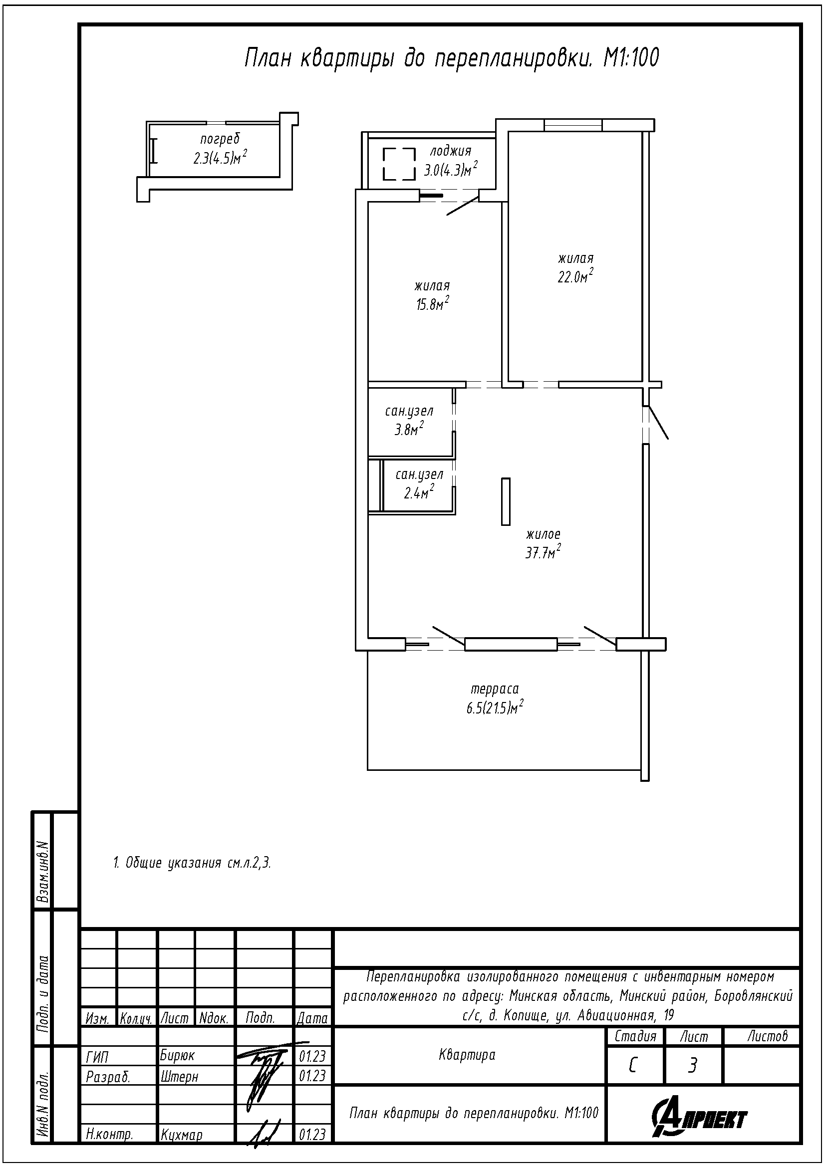
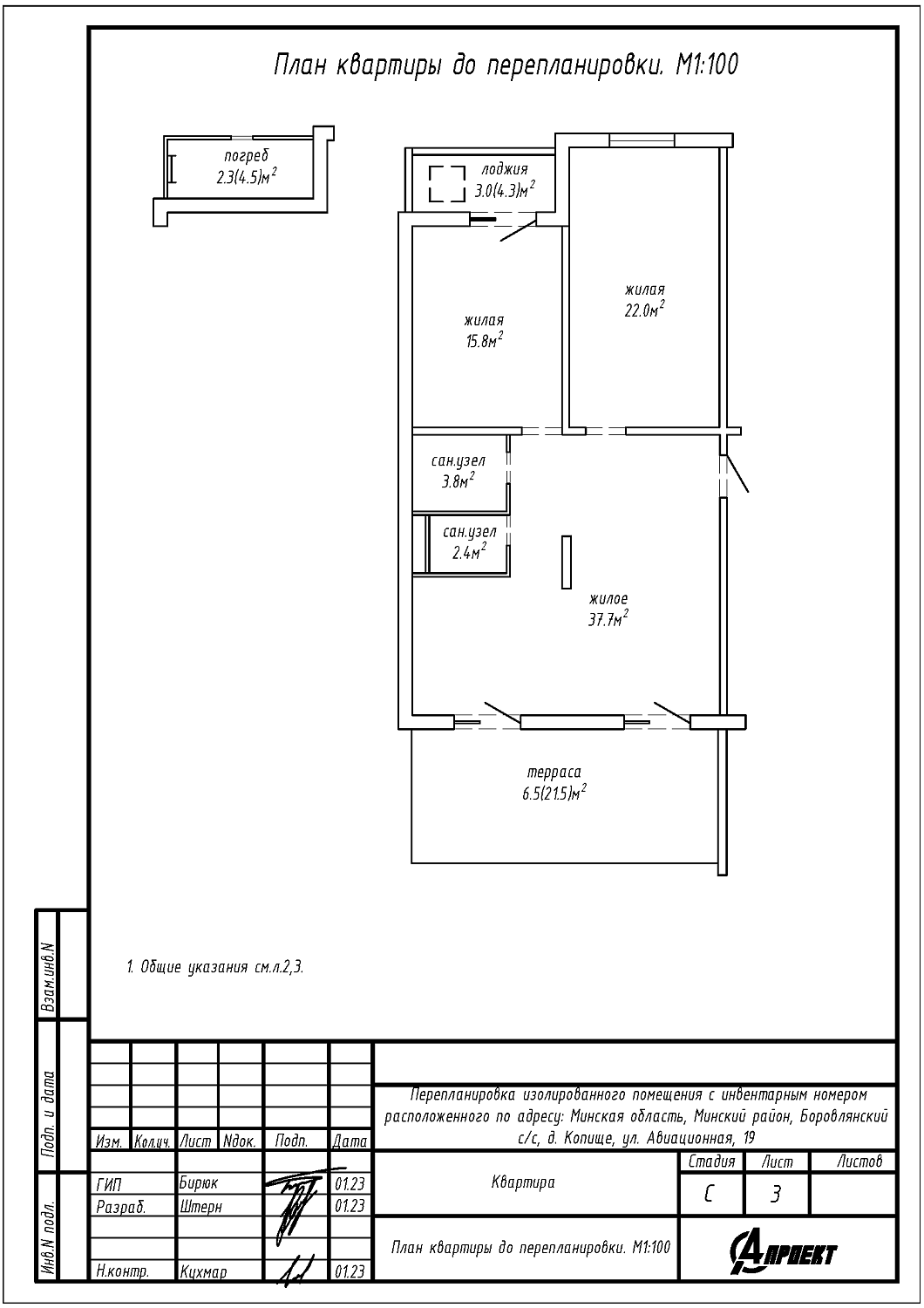
Перепланировка квартиры по ул. Авиационная, 19 в ЖК «Новая Боровая»
Пожелания заказчика:
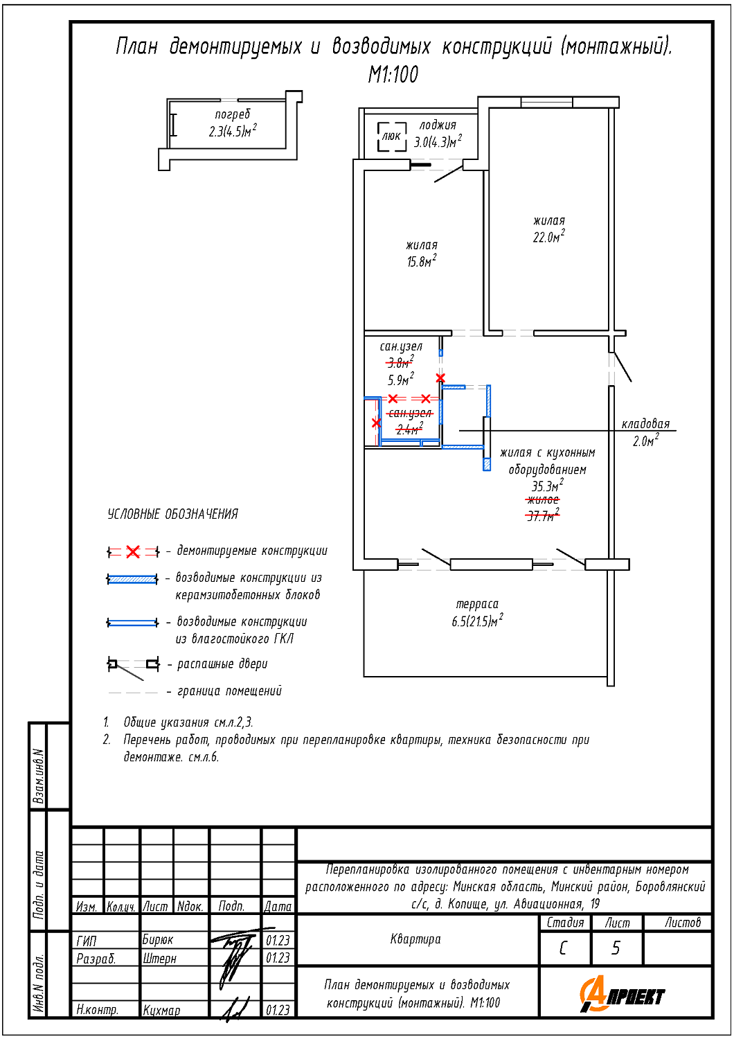
- Устройство на площади общего жилого помещения жилой с кухонным оборудованием и кладовой;
- Объединение существующих санузлов в единый санузел;
- Смещение дверного проёма между санузлом и жилой.
Нами были разработаны следующие разделы проектной документации для согласования в исполкоме:
- АС - архитектурно-строительные решения.
