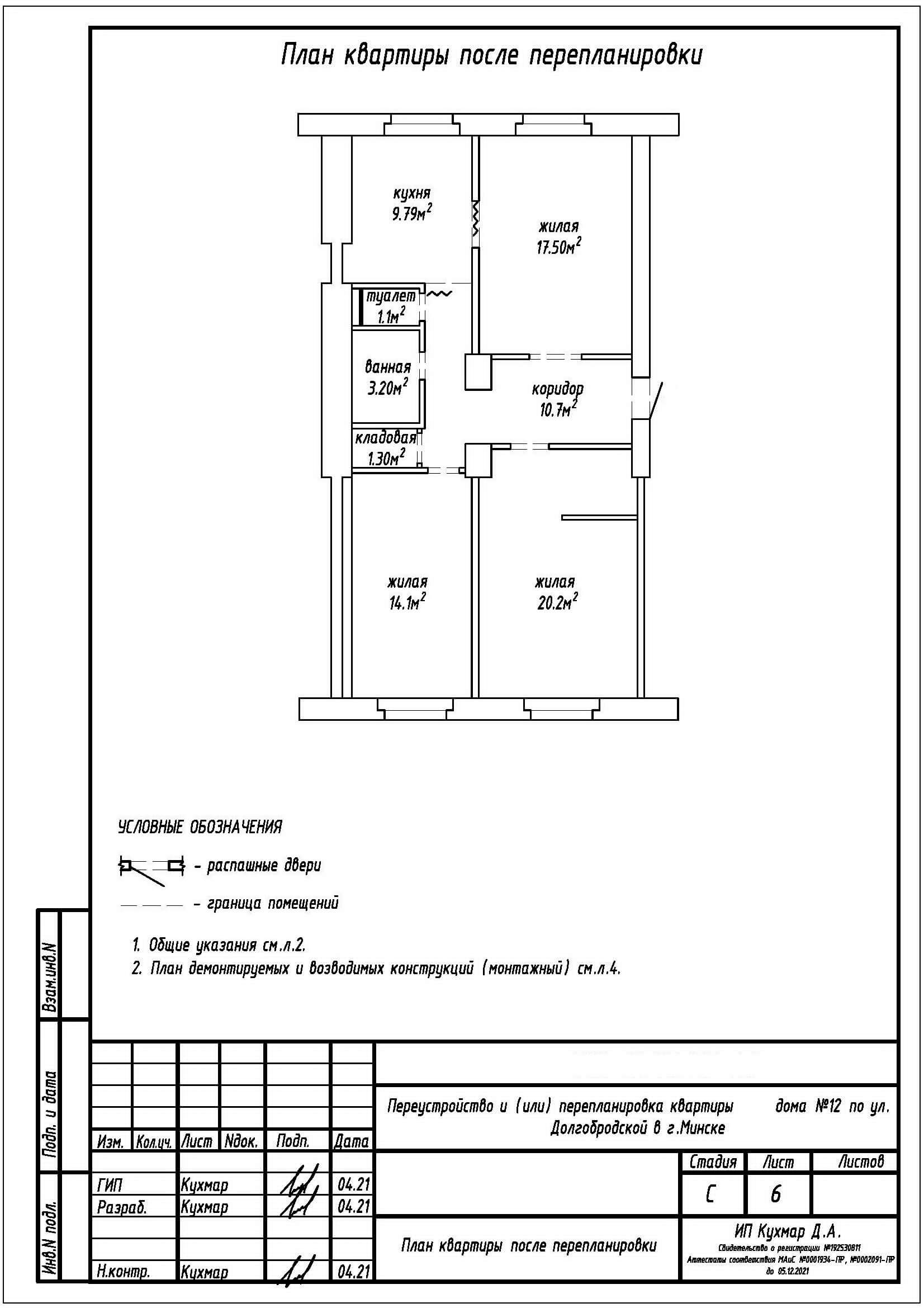
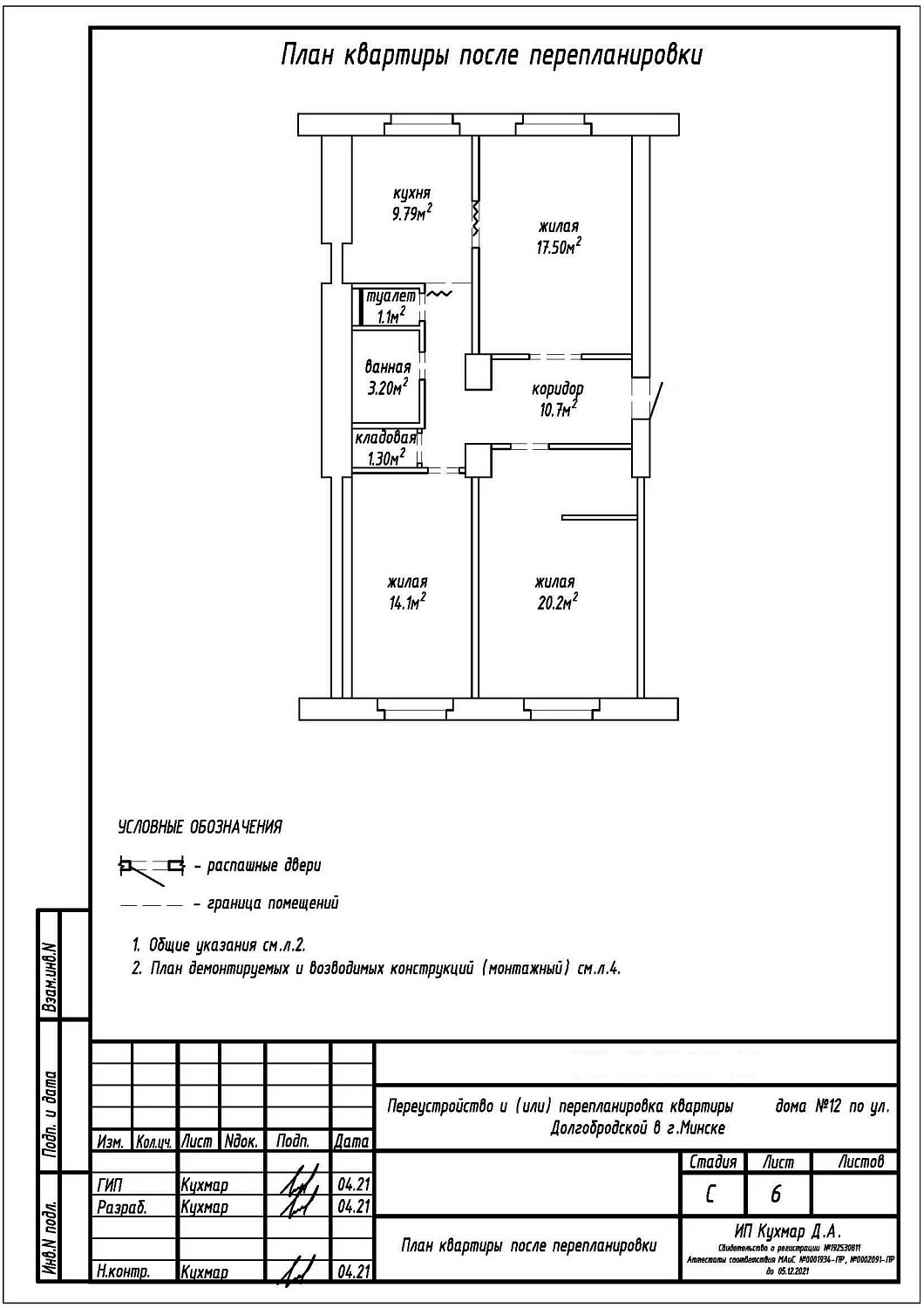
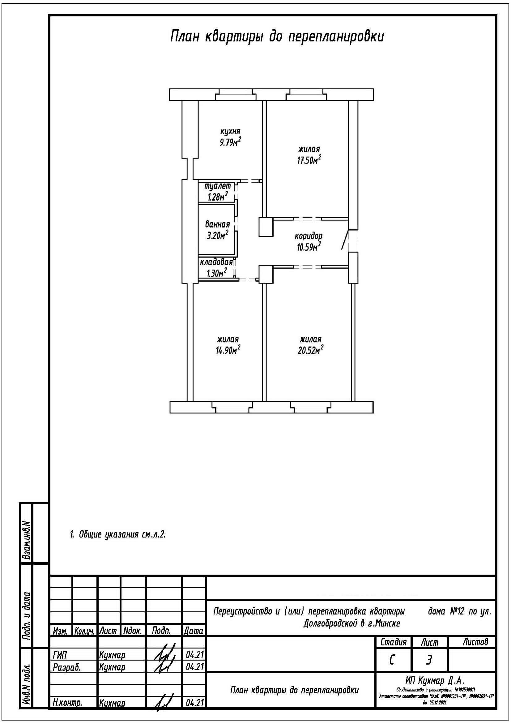
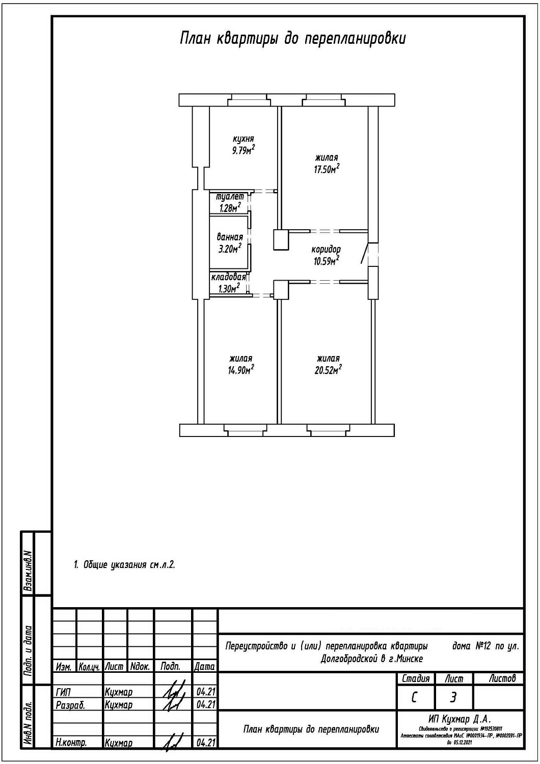
Перепланировка квартиры по ул. Долгобродской, 12 в г. Минск
Пожелания заказчика:
- Устройство проема между кухней и жилой;
- Устройство зашивок из ГКЛ в туалете и жилой;
- Сдвиг дверного проема между жилой и коридором;
- Устройство дополнительной перегородки в жилой.
Нами были разработаны следующие разделы проектной документации для согласования в исполкоме:
- АС - архитектурно-строительные решения.


