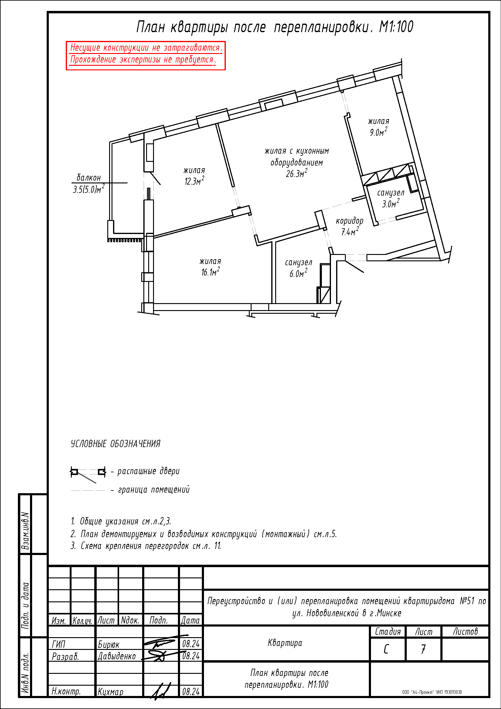
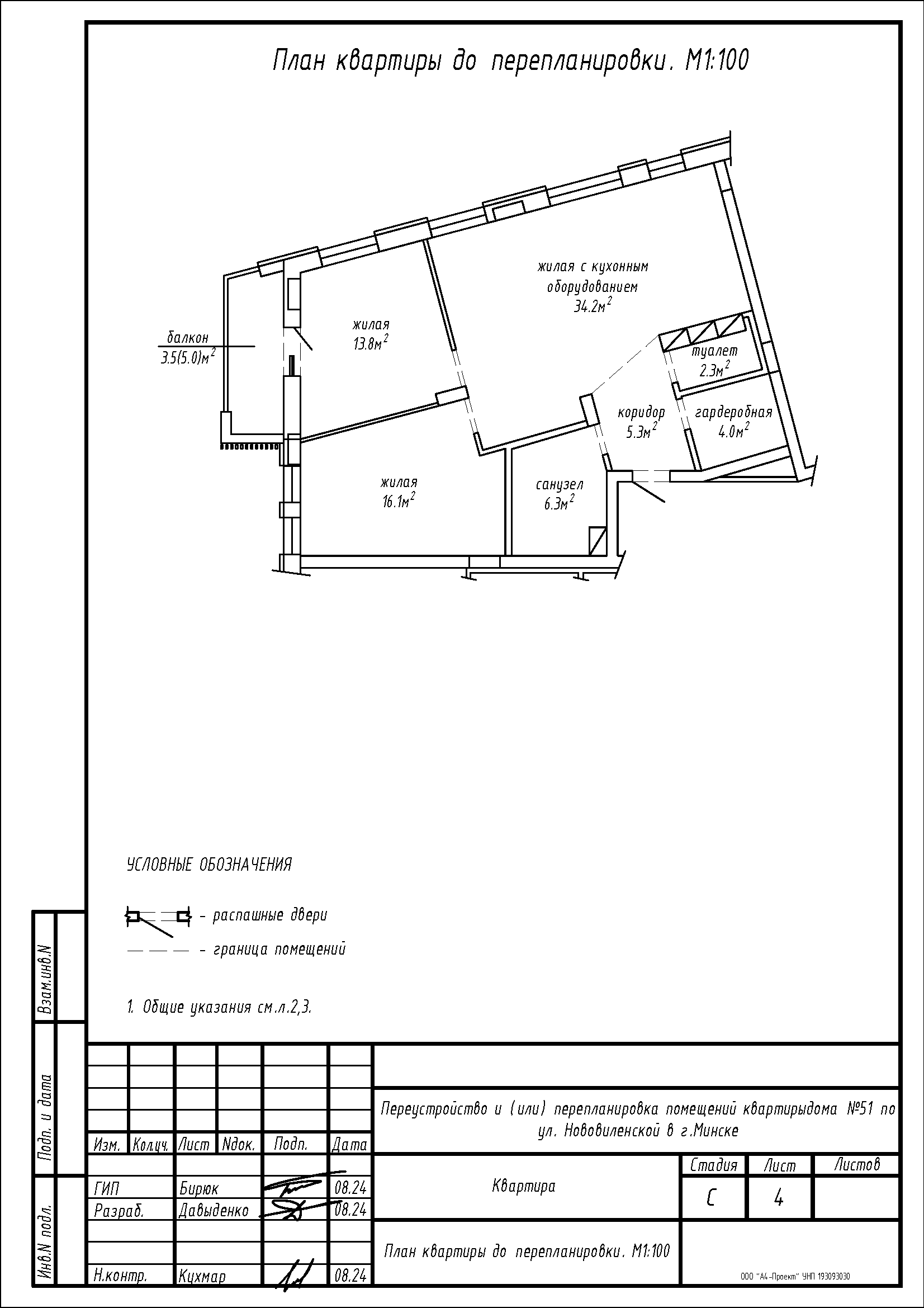
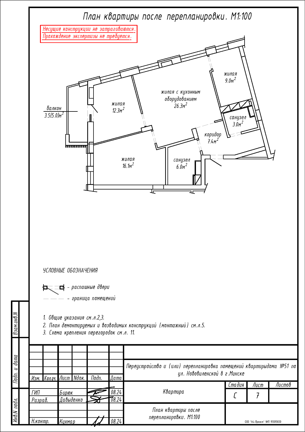
Перепланировка квартиры по ул. Нововиленская, 51 в ЖК «Левада»
Пожелания заказчика:
- Демонтаж части перегородки между санузлом и коридором с последующим устройством новой части перегородки;
- Демонтаж перегородок между гардеробом, коридором и туалетом с последующим устройством новых перегородок, образованием помещений: коридора и санузла;
- Демонтаж перегородки между жилой комнатой с кухонным оборудованием и жилой комнатой с последующим устройством новых перегородок, образованием помещений: двух жилых комнат и жилой комнаты с кухонным оборудованием;
- Демонтаж части перегородки между коридором и жилой с комнатой площадью 16.1 кв.м с последующим устройством новой части перегородки;
- Устройство зашивок ГКЛ на части площади туалета и санузла.
Нами были разработаны следующие разделы проектной документации для согласования в исполкоме:
- АС - архитектурно-строительные решения.
