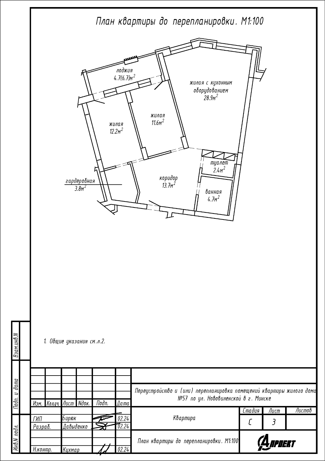
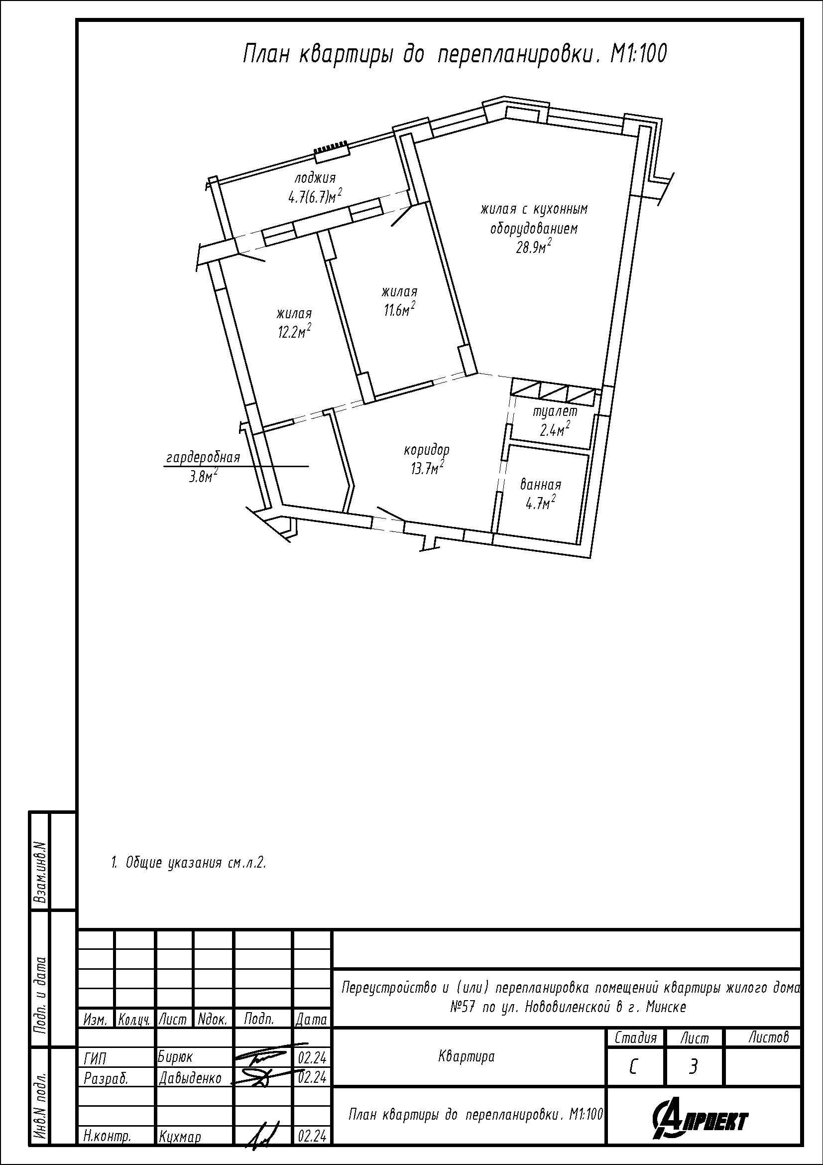
Перепланировка квартиры по ул. Нововиленская, 57 в ЖК «Левада»
Пожелания заказчика:
- Демонтаж части перегородок между коридором, гардеробом, жилой комнатой площадью 12.2 кв.м, жилой комнатой площадью 11.6 кв.м, жилой комнатой с кухонным оборудованием, туалетом и ванной, с последующим устройством новых перегородок, образованием помещений: двух жилых комнат, жилой комнаты с кухонным оборудованием, гардероба, коридора и санузла.
Нами были разработаны следующие разделы проектной документации для согласования в исполкоме:
- АС - архитектурно-строительные решения.
