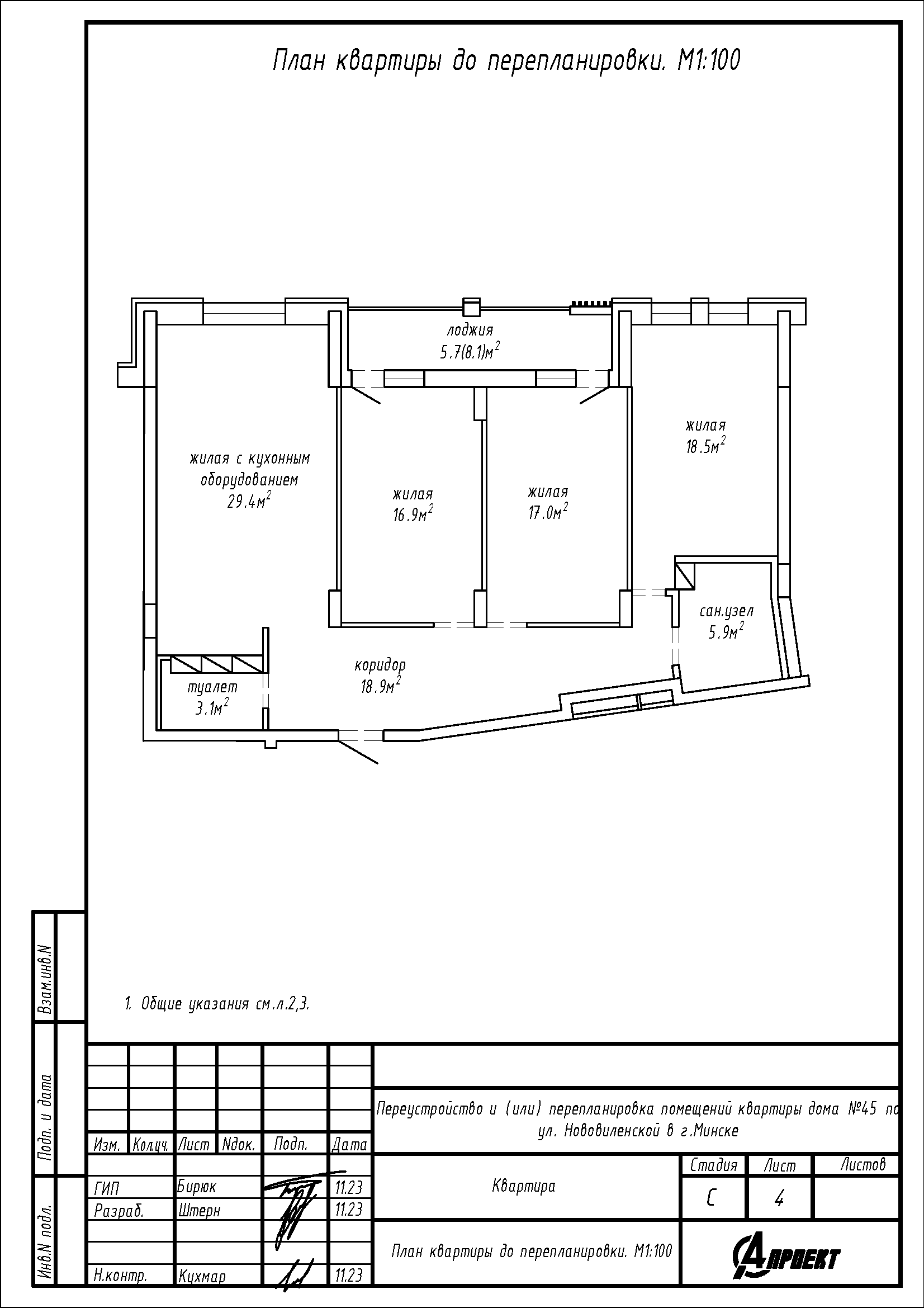
Перепланировка квартиры по ул. Нововиленская, 49 в ЖК «Левада»
Пожелания заказчика:
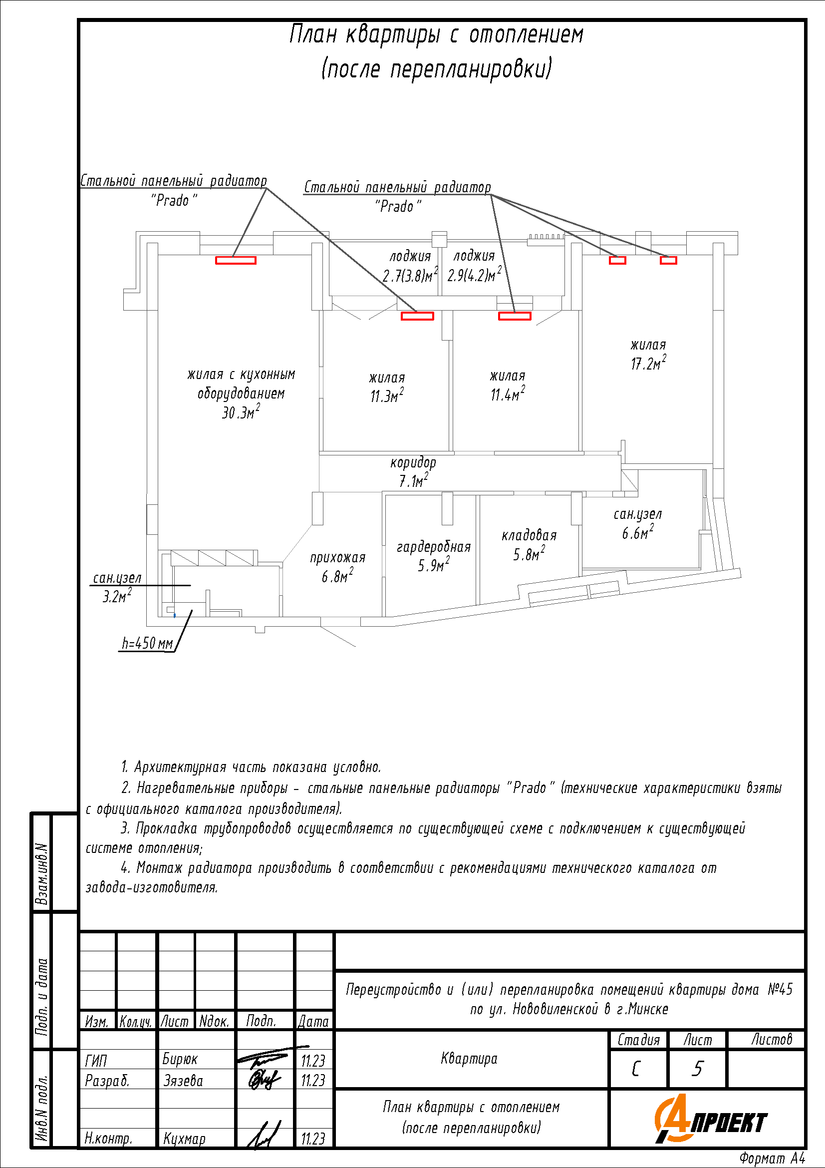
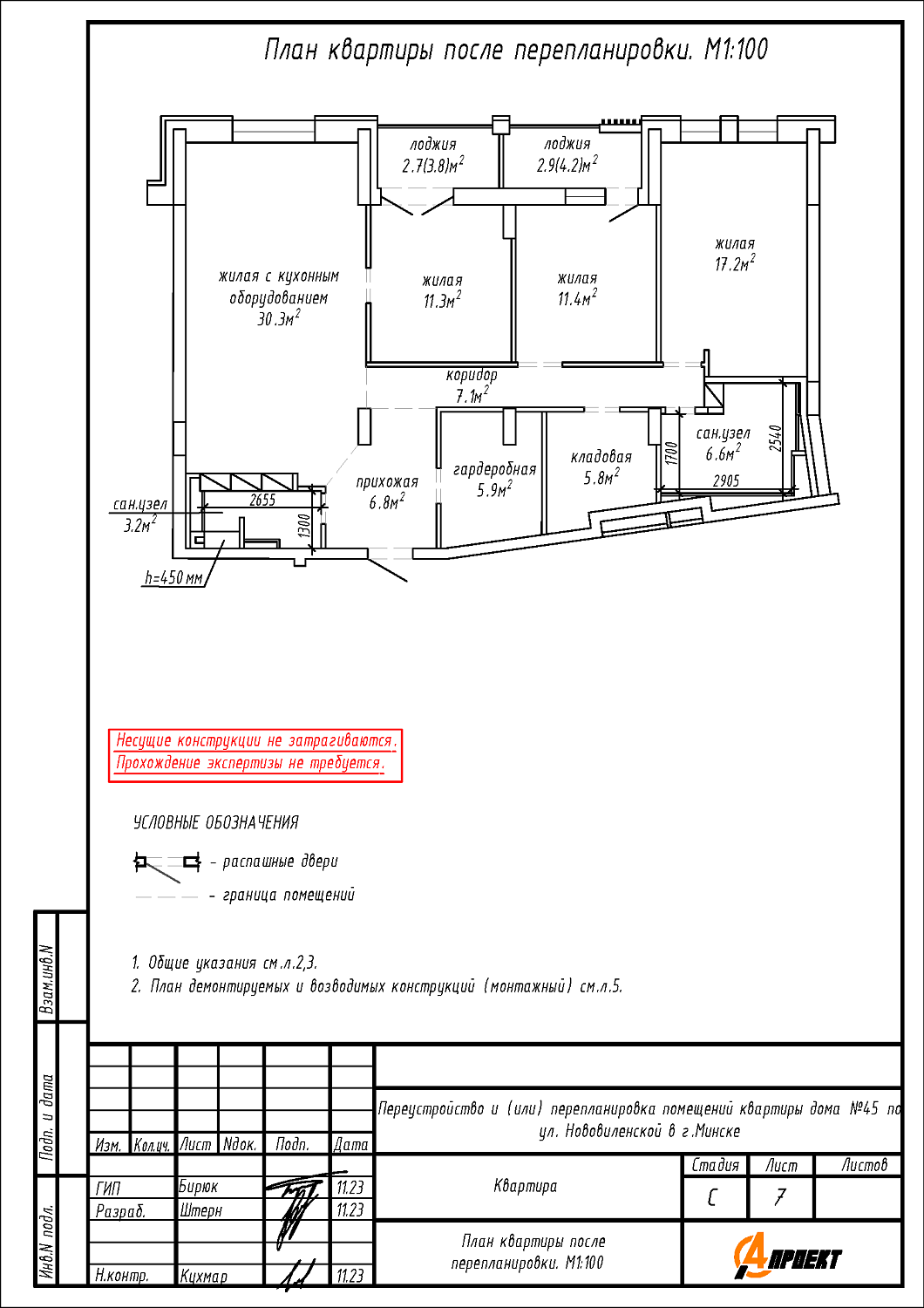
- Демонтаж части перегородок между коридором, туалетом, жилой комнатой с кухонным оборудованием, жилой комнатой площадью 16.9м2, жилой комнатой площадью 17.0м2, жилой комнатой площадью 18.5м2 и санузлом, с последующим устройством новых перегородок, образованием помещений: трех жилых комнат, жилой комнаты с кухонным оборудованием, гардероба, кладовой, двух коридоров и двух санузлов с увеличенной площадью;
- Устройство перегородки на площади лоджии;
- Демонтаж дверного блока, оконного блока с подоконной частью между лоджией и жилой комнатой площадью 16,9м2 с последующим устройством нового оконного и дверного блоков;
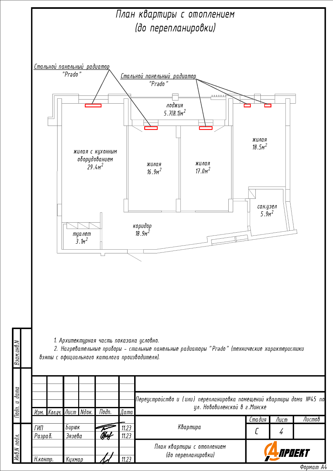
- Переподключение отопительных приборов, перенос отопительного прибора.
Нами были разработаны следующие разделы проектной документации для согласования в исполкоме:
- АС - архитектурно-строительные решения;
- ОВ - отопление и вентиляция.
