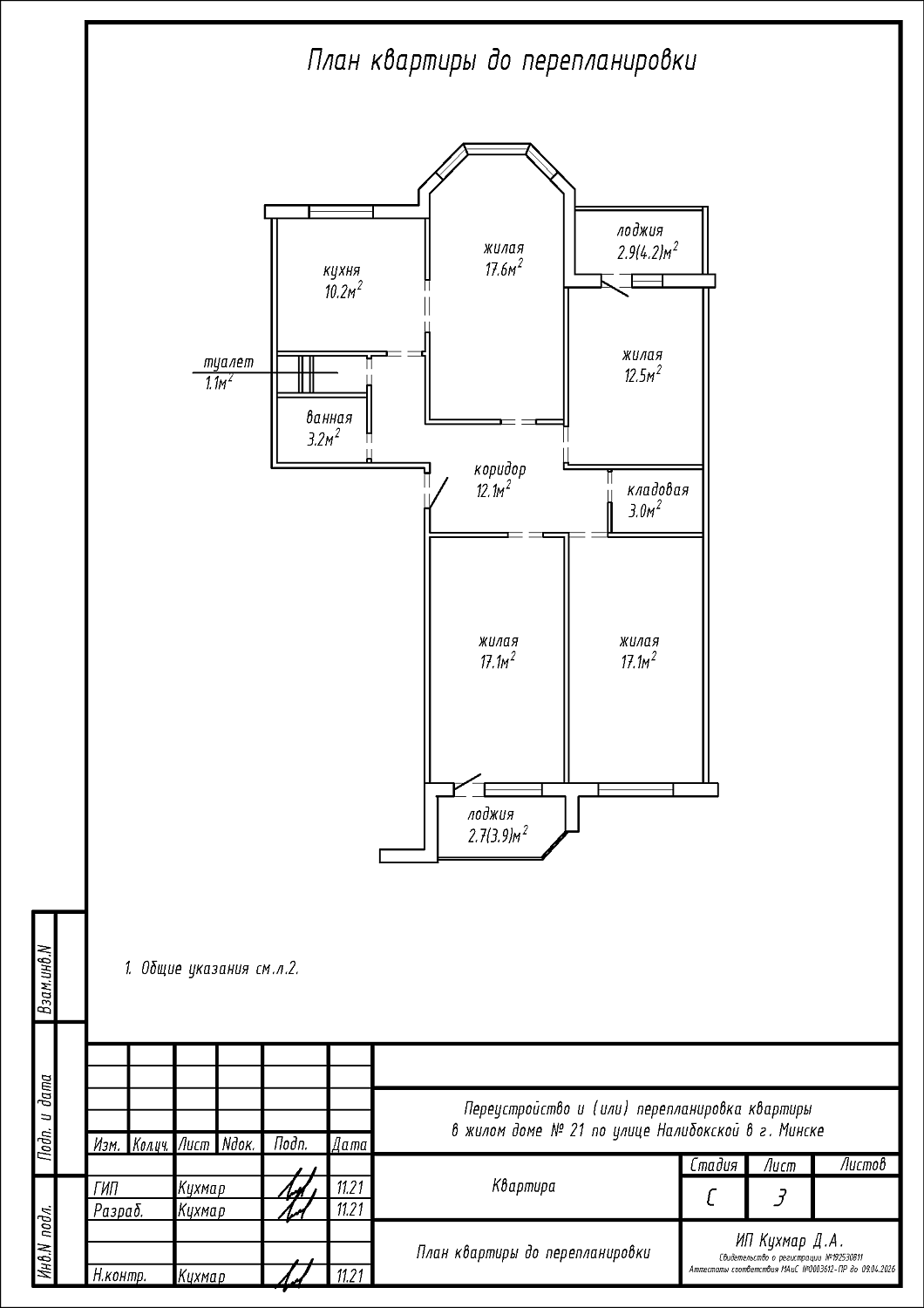
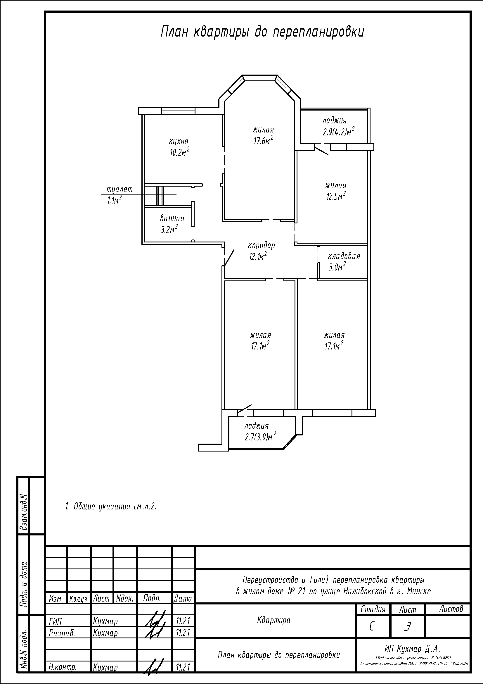
Перепланировка квартиры по ул. Налибокская, 21 в г. Минске
Пожелания заказчика:
- Смена направления открывания входной двери;
- Закладка дверного проёма между кухней и коридором, с целью устройства совмещенного сан.узла;
- Объединение ванной и туалета в единый сан.узел.
Нами были разработаны следующие разделы проектной документации для согласования в исполкоме:
- АС - архитектурно-строительные решения.
