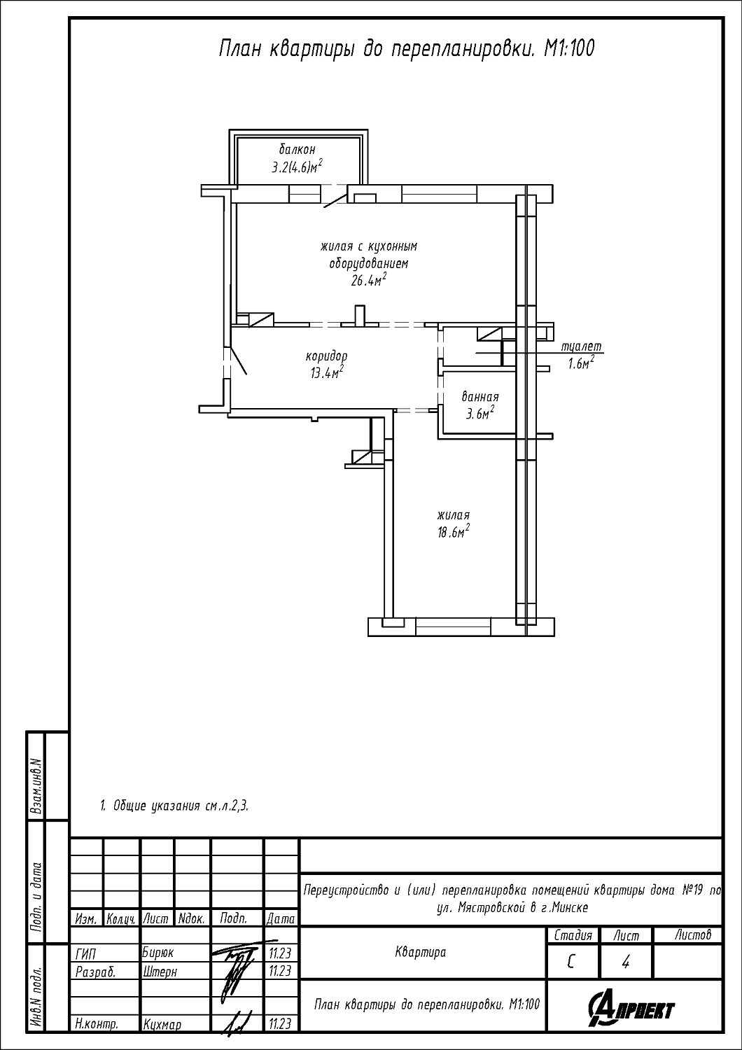
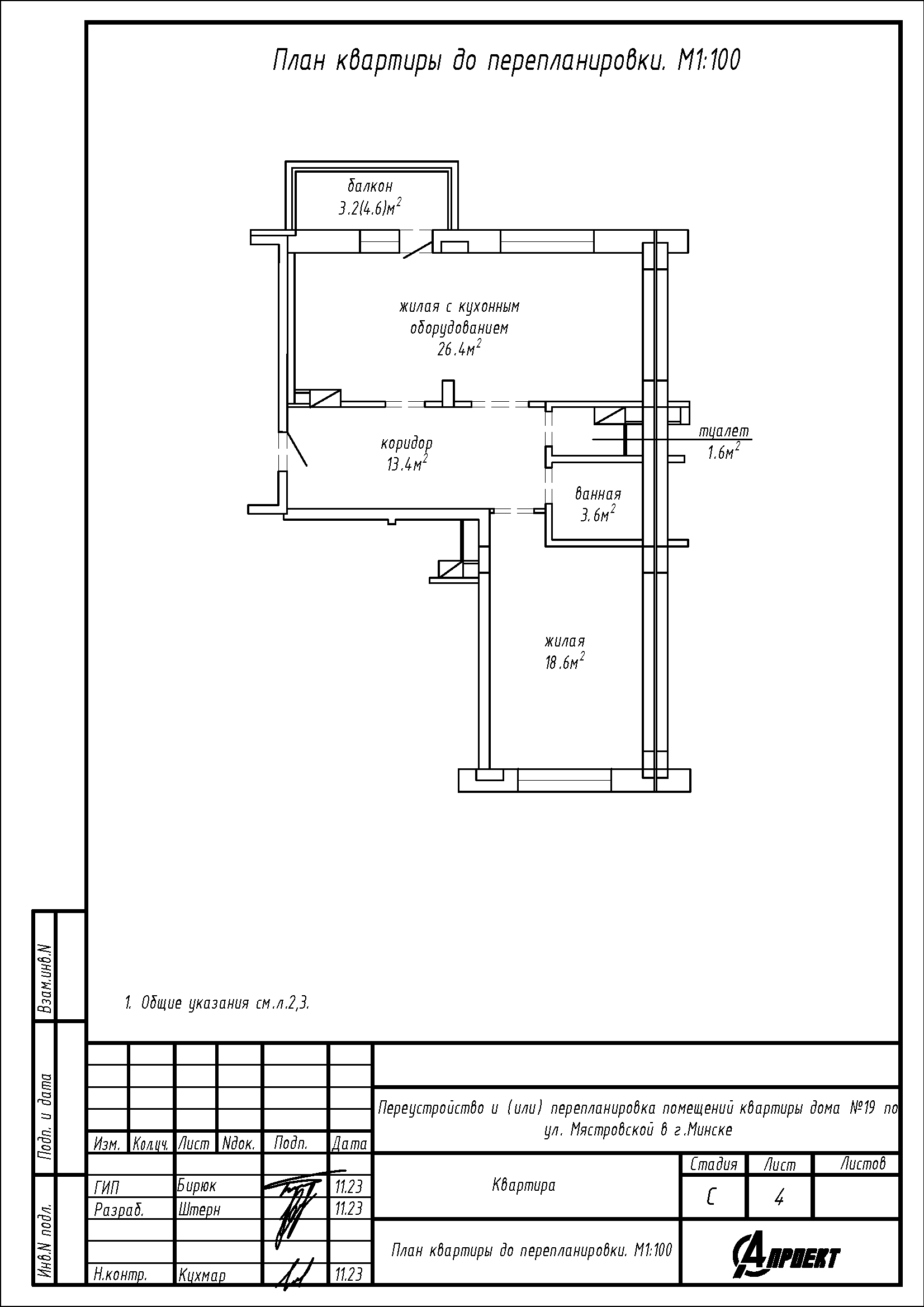
Перепланировка квартиры по ул. Мястровская, 19 в ЖК «Променад»
Пожелания заказчика:
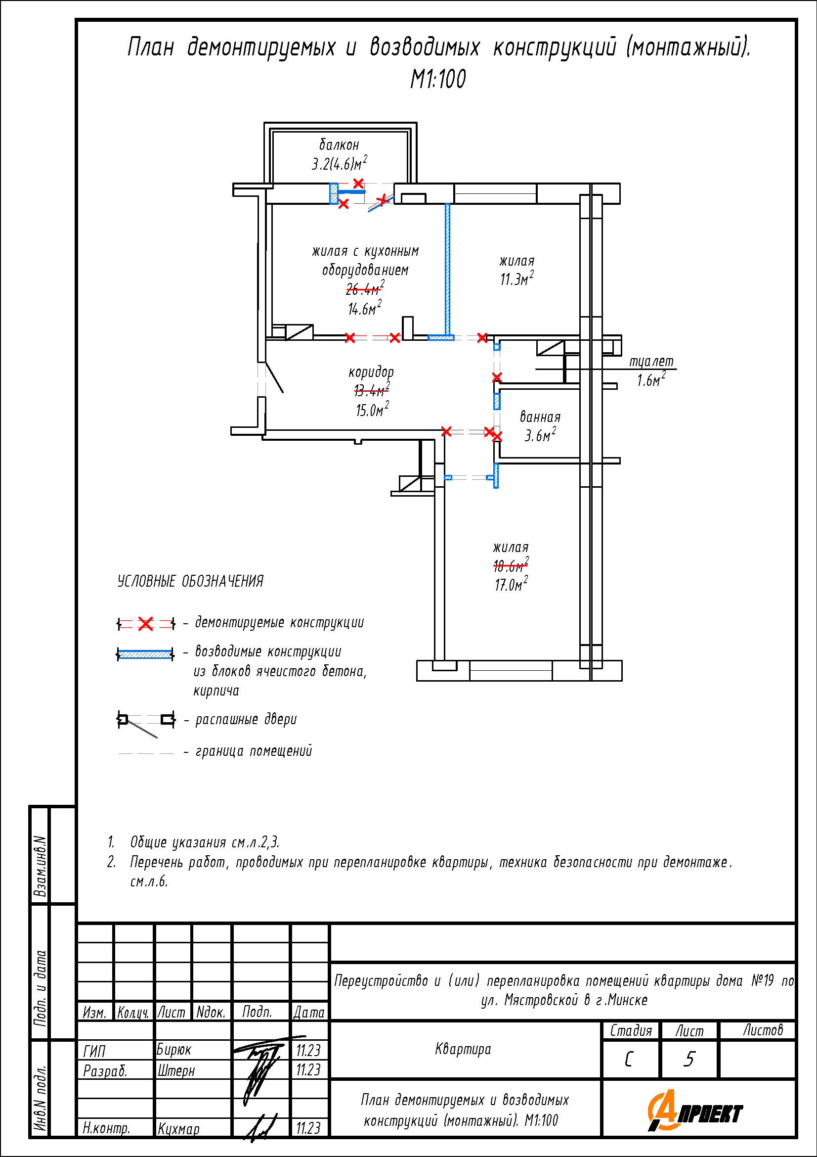
- Разделение общей жилой с кухонным оборудованием на жилую с кухонным оборудованием и жилую;
- Демонтаж части перегородки между туалетом и коридором с последующим устройством части перегородки;
- Демонтаж части перегородки между ванной и коридором с последующим устройством части перегородки;
- Демонтаж дверного блока, оконного блока с подоконной частью и части простенка между жилой комнатой с кухонным оборудованием и балконом с последующим устройством нового оконного и дверного блоков без создания отапливаемого помещения;
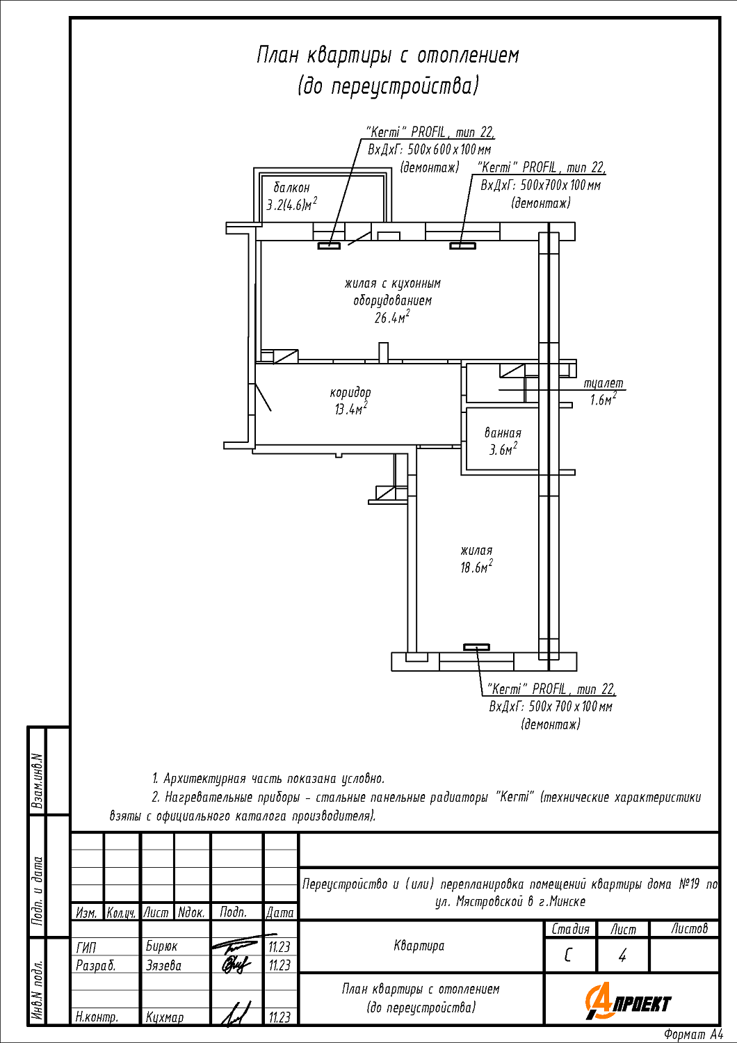
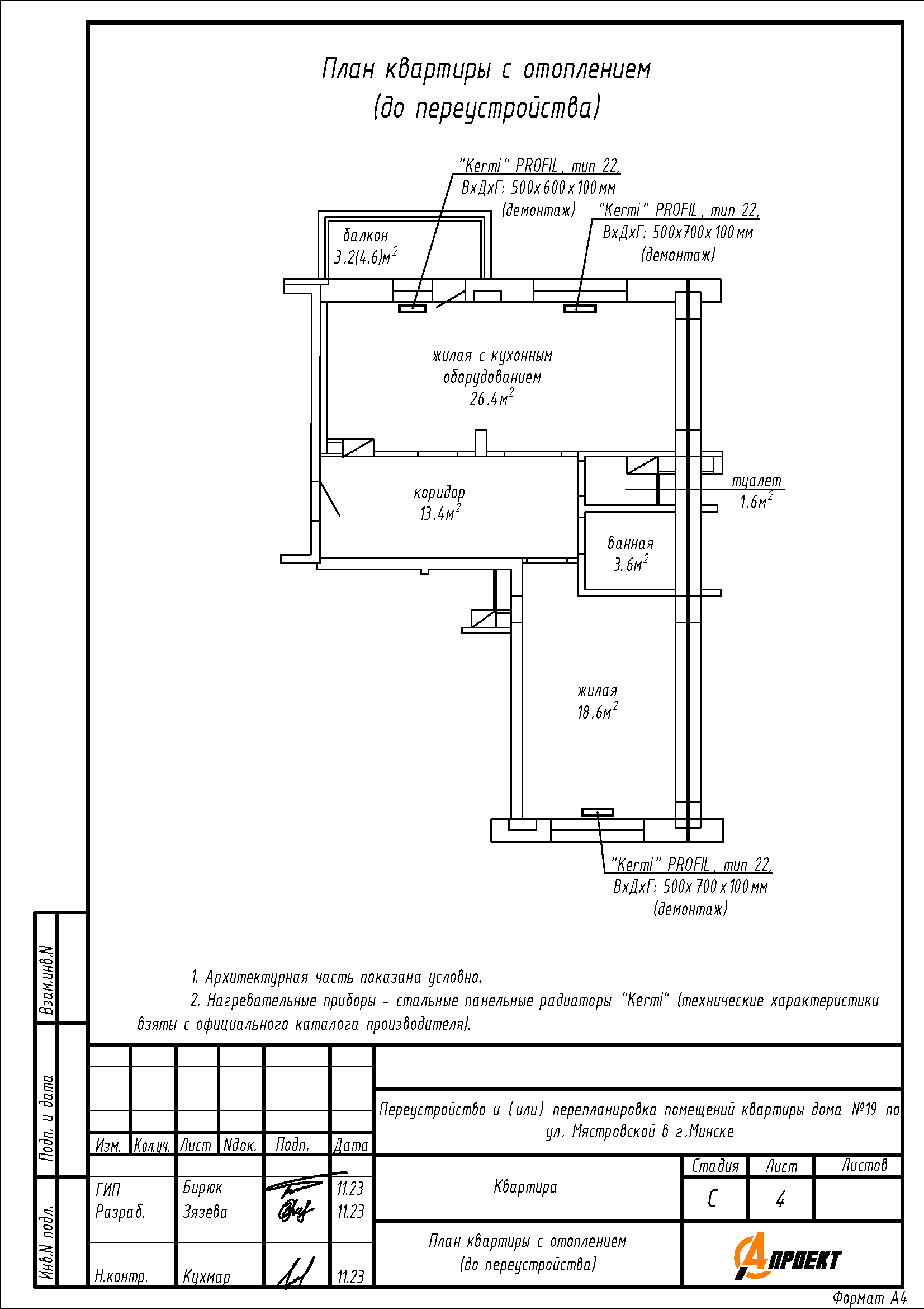
- Перенос отопительного прибора.
Нами были разработаны следующие разделы проектной документации для согласования в исполкоме:
- АС - архитектурно-строительные решения;
- ОВ - отопление и вентиляция.
