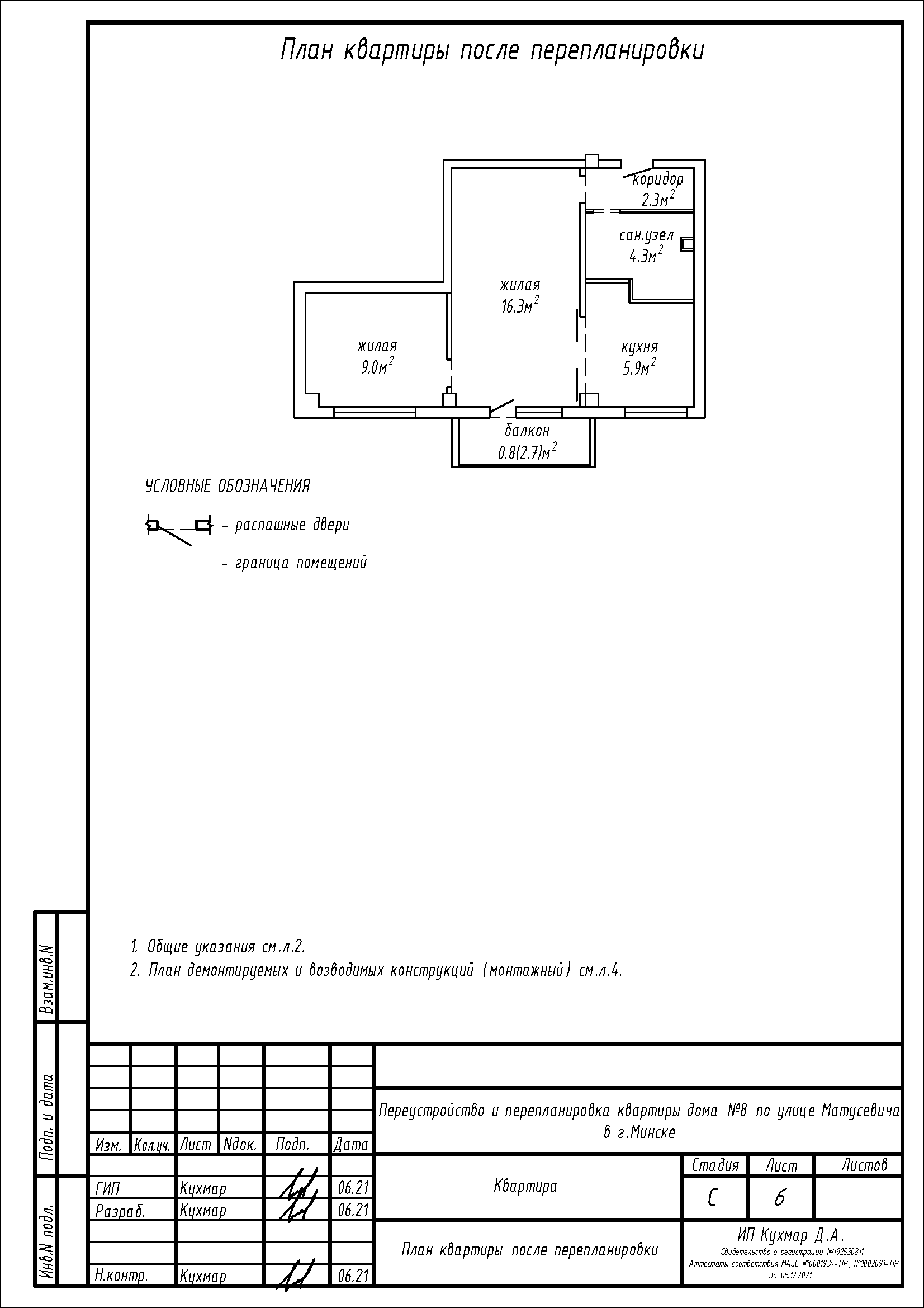
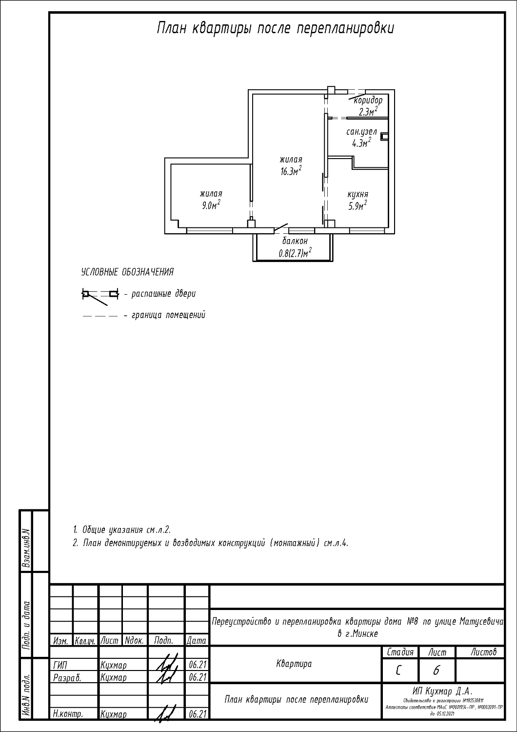
Перепланировка квартиры по ул. Матусевича, 8 в г. Минске
Пожелания заказчика:
- Объединение ванной и туалета в единый санузел;
- Закладка дверного проёма между кухней и коридором, с целью увеличения совмещённого санузла;
- Демонтаж встроенного шкафа.
Нами были разработаны следующие разделы проектной документации для согласования в исполкоме:
- АС - архитектурно-строительные решения.
