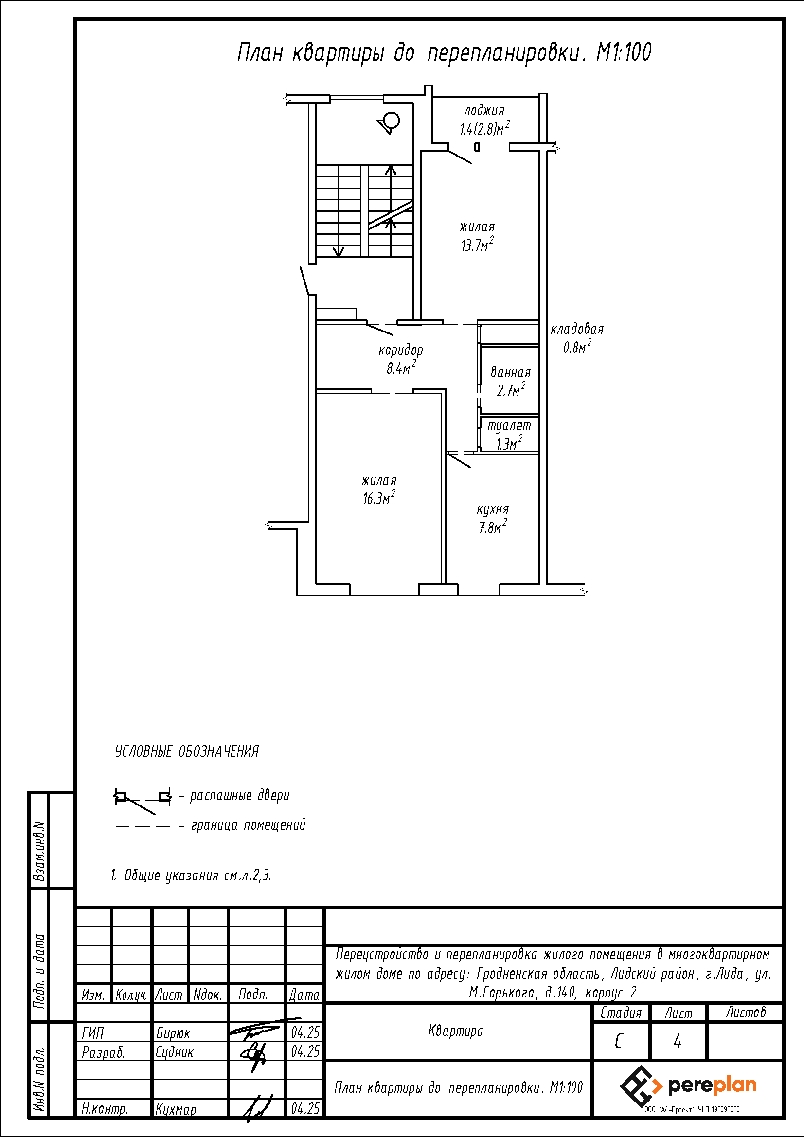
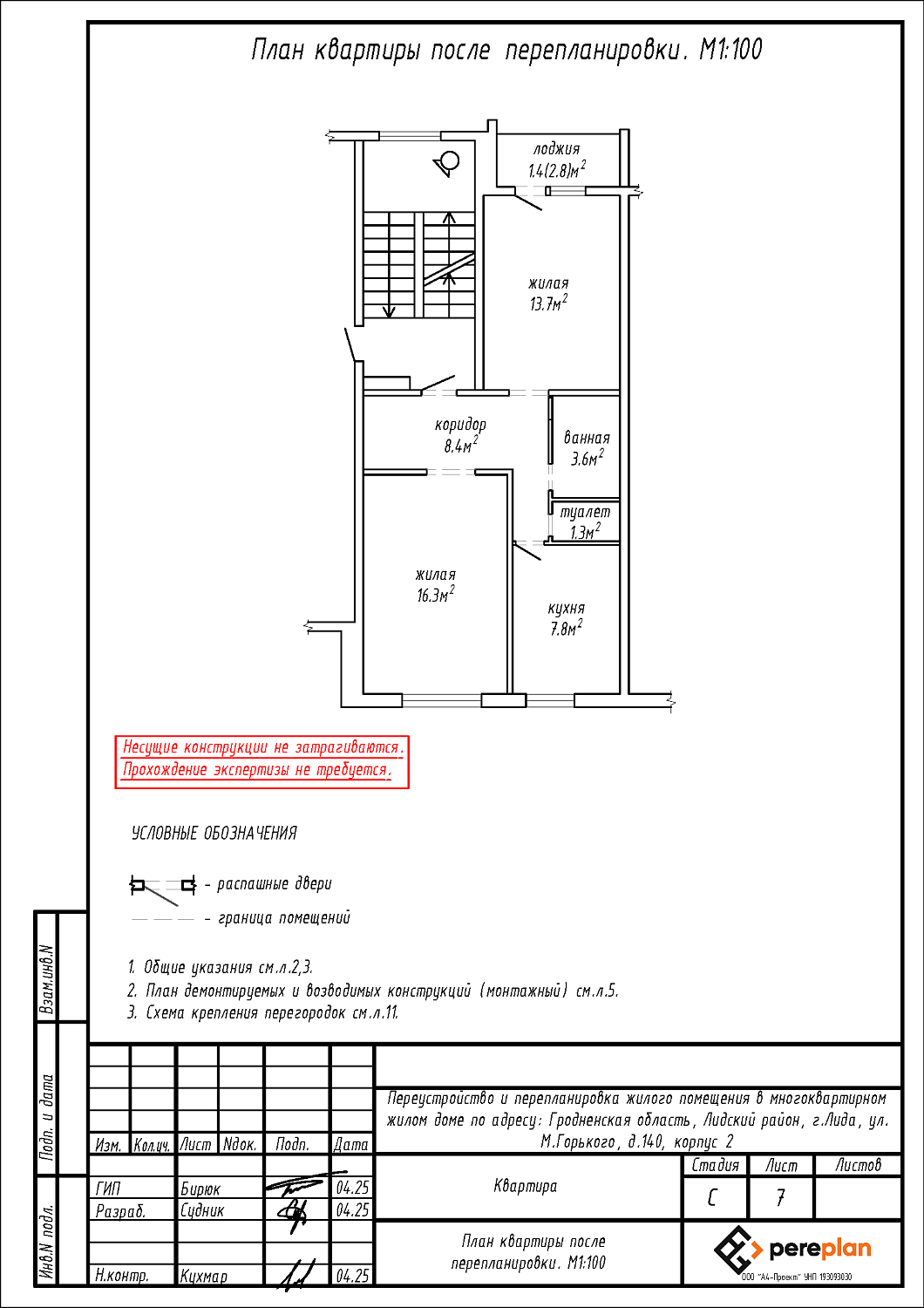
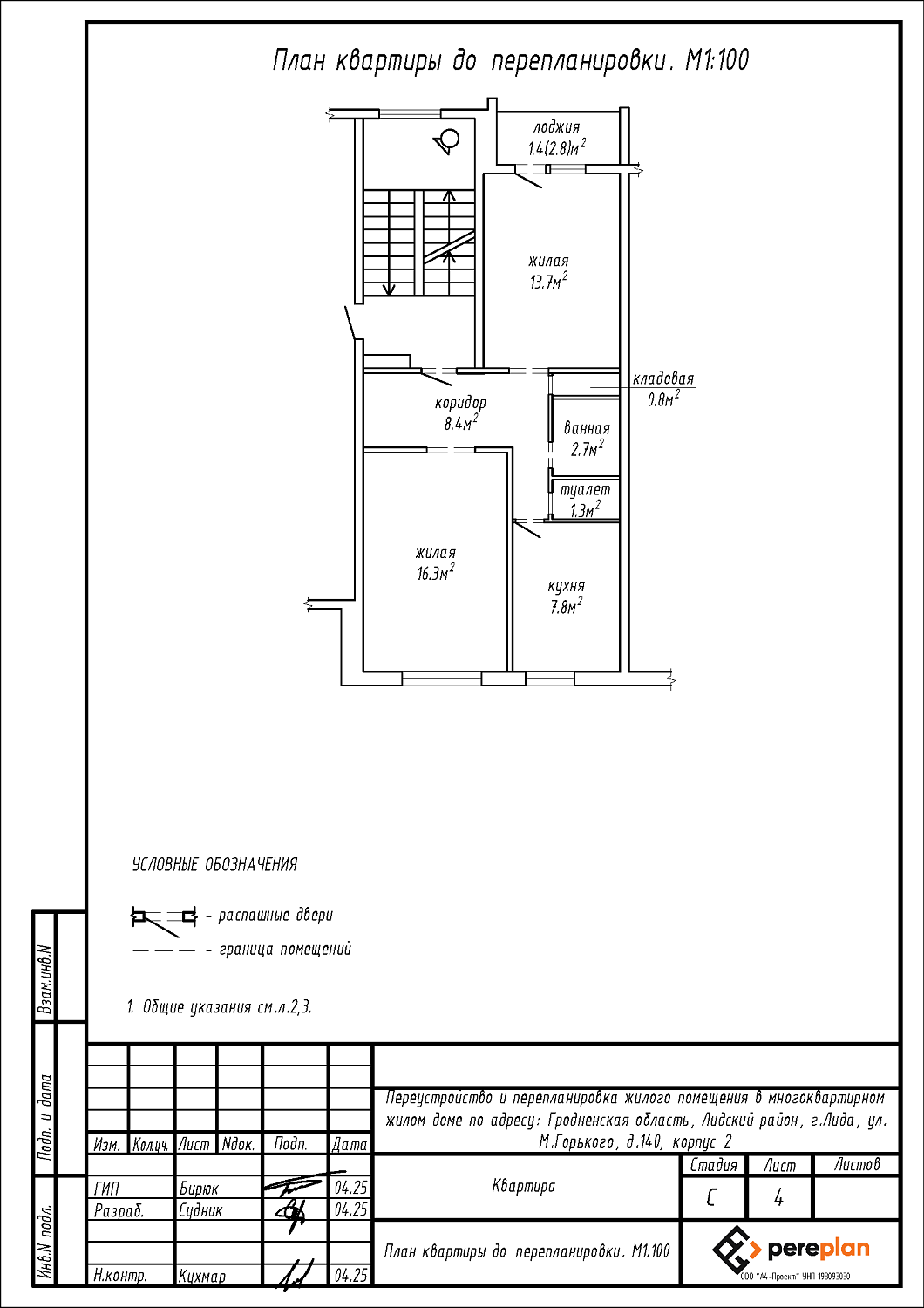
Перепланировка квартиры по ул. Максима Горького, 140/2 в г. Лида
Пожелания заказчика:
- Устройство перегородки вместо дверного проёма между кладовой и коридором;
- Увеличение площади ванной комнаты за счёт кладовой, путем разборки перегородки между ними;
- Замена дверного блока входной двери со сменой направления открывания.
Нами были разработаны следующие разделы проектной документации для согласования в исполкоме:
- АС - архитектурно-строительные решения.
