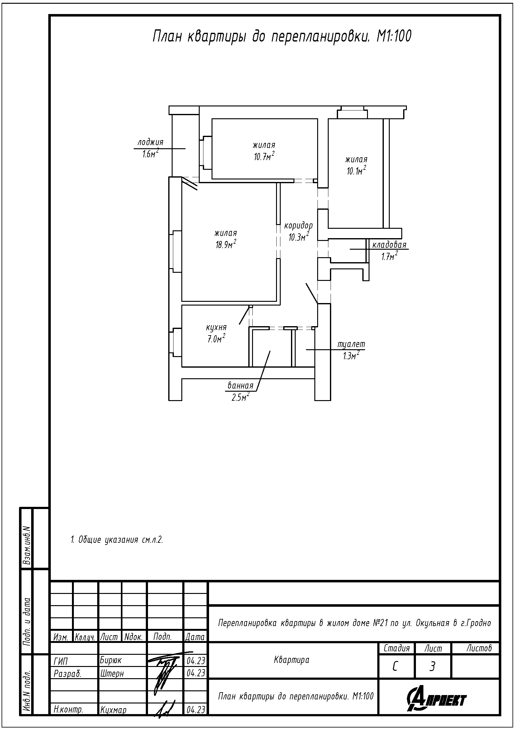
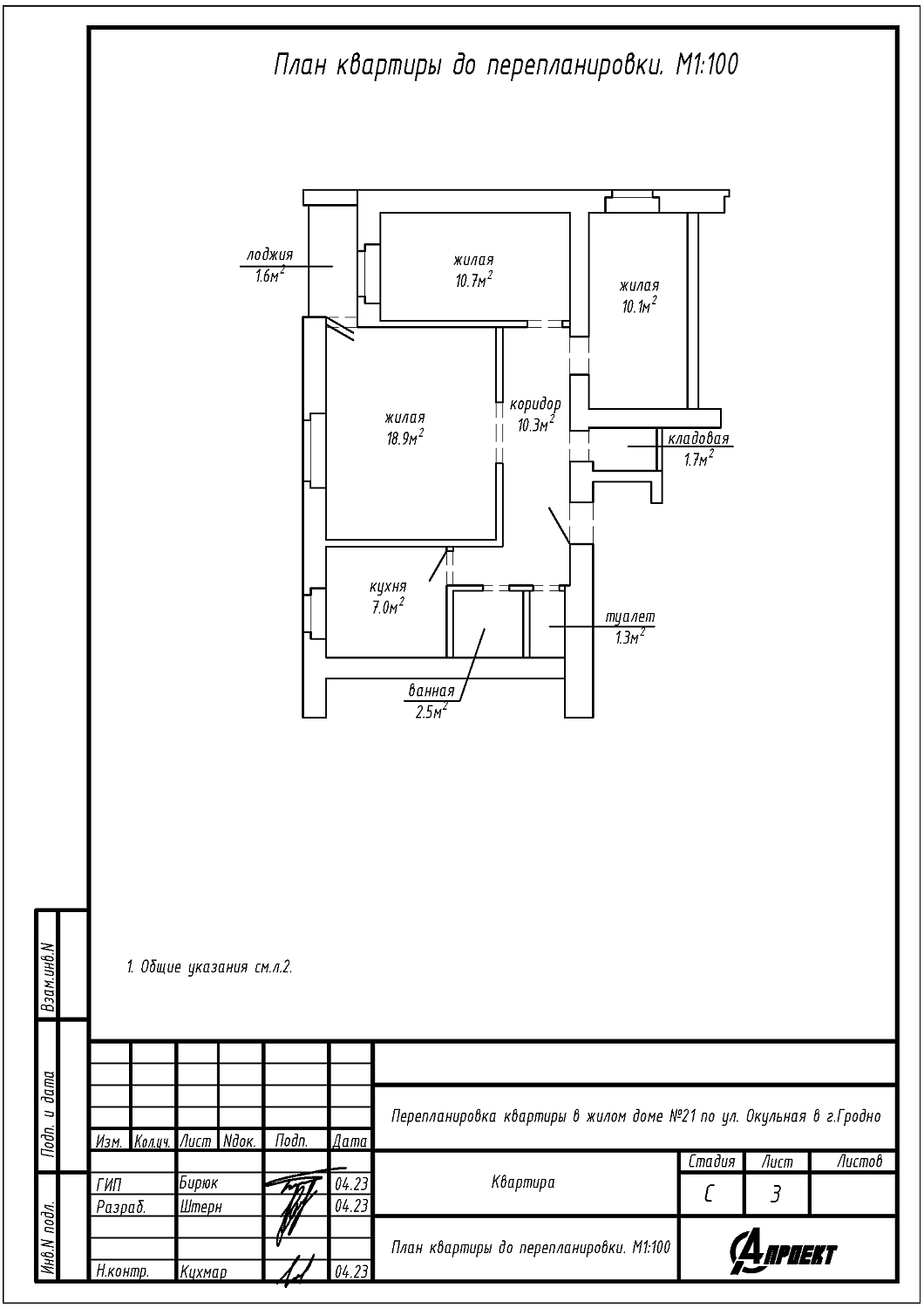
Перепланировка квартиры по ул. Окульная, 21 в г. Гродно
Пожелания заказчика:
- Объединение ванной и туалета в единый санузел;
- Увеличение площади санузла за счёт площади коридора;
- Закладка дверного проёма между кухней и коридором;
- Смена направления открывания входной двери;
- Устройство проёма между кухней и жилой.
Нами были разработаны следующие разделы проектной документации для согласования в исполкоме:
- АС - архитектурно-строительные решения.
