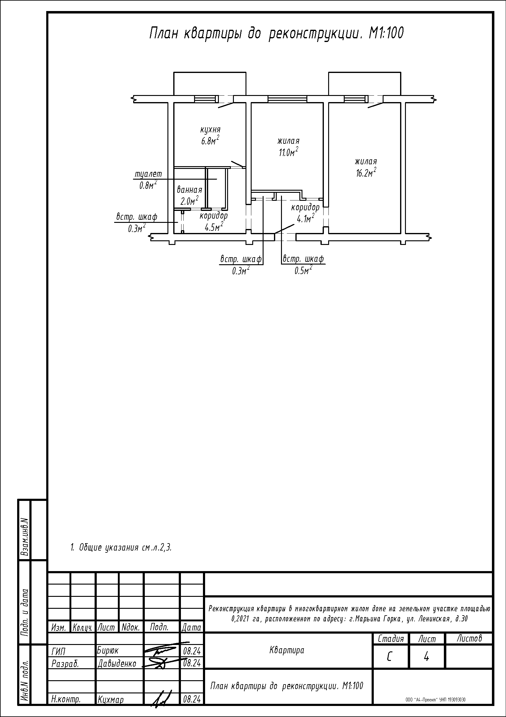
Перепланировка квартиры по ул. Ленинская, 30 в г. Марьина Горка
Пожелания заказчика:
- Демонтаж перегородок между коридором, ванной, туалетом и встроенным шкафом с последующим устройством перегородок на части площади коридора и с целью устройства совмещенного санузла на части площади коридора, ванной, туалета и встроенного шкафа;
- Демонтаж перегородок между коридором, встроенным шкафом, встроенным шкафом и жилой с последующим устройством перегородки на части площади коридора и жилой;
- Замена дверного блока входной двери со сменой направления открывания.
Нами были разработаны следующие разделы проектной документации для согласования в исполкоме:
- АС - архитектурно-строительные решения.
