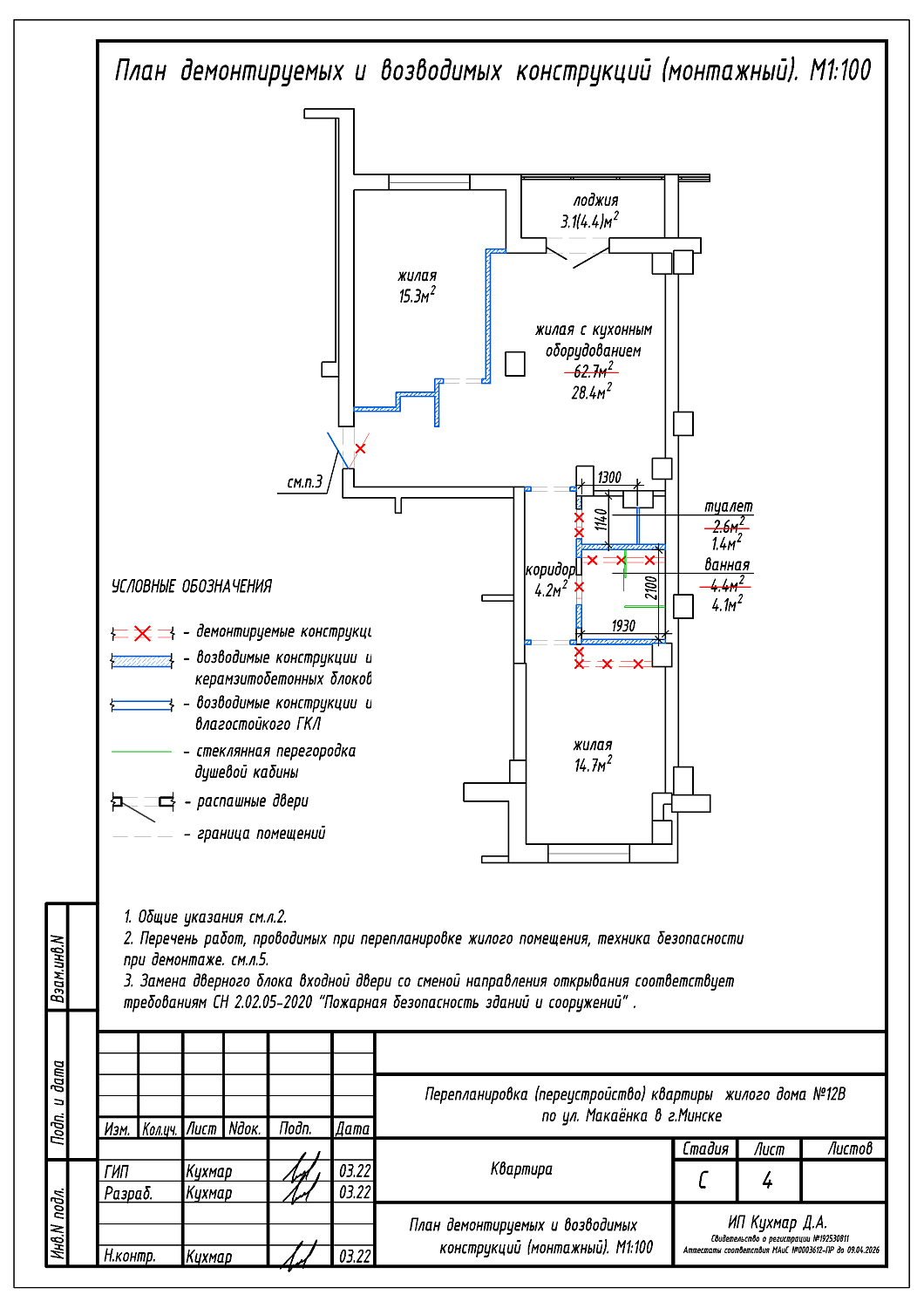
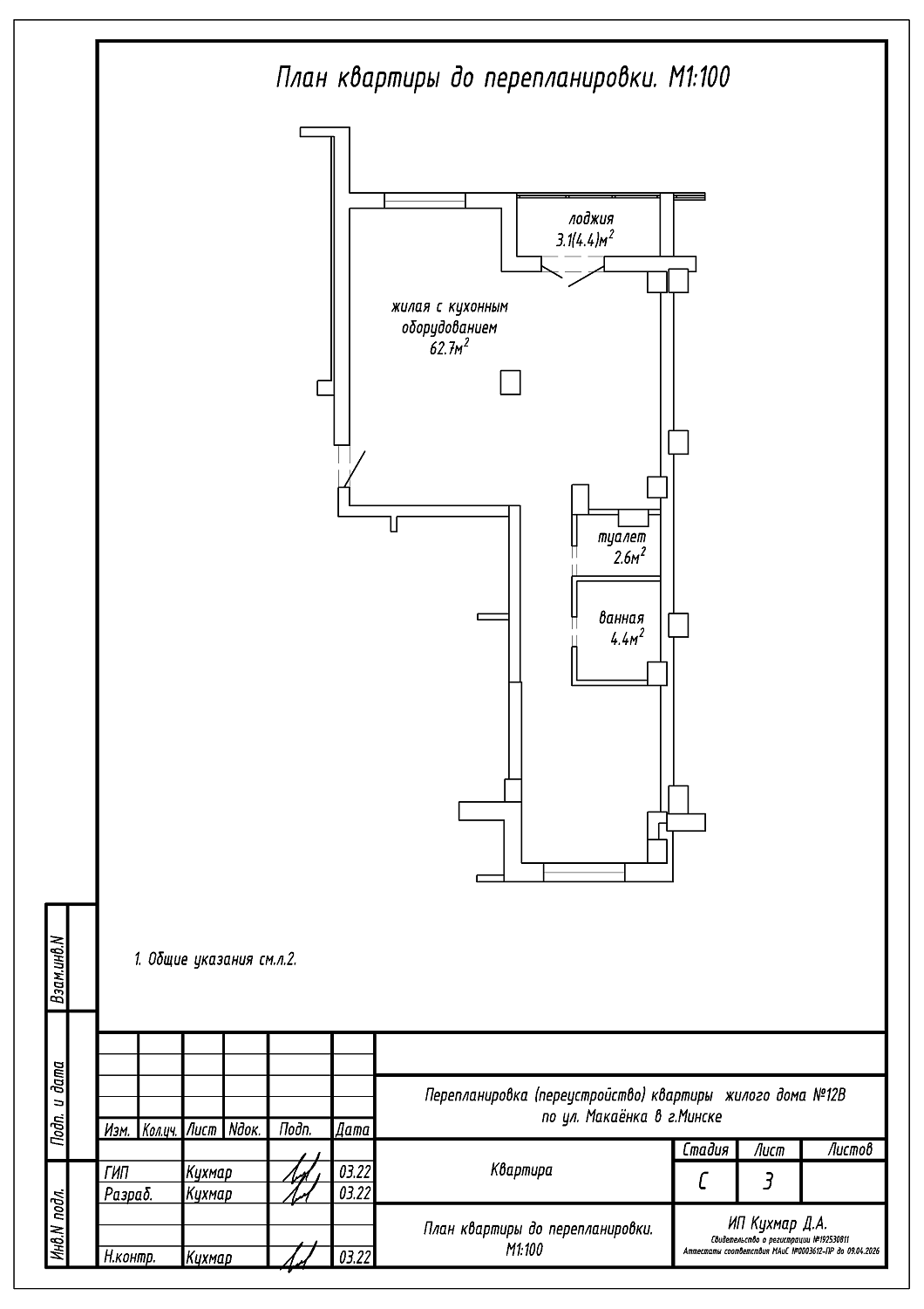
Перепланировка квартиры по ул. Макаёнка, 12В в ЖК «Vogue»
Пожелания заказчика:
- Разделение общей жилой с кухонным оборудованием на жилую с кухонным оборудованием, коридор и двух жилых;
- Смена направления открывания входной двери;
- Изменение габаритов ванной и туалета;
- Устройство зашивки из ГКЛ на площади туалета и ванной.
Нами были разработаны следующие разделы проектной документации для согласования в исполкоме:
- АС - архитектурно-строительные решения.
