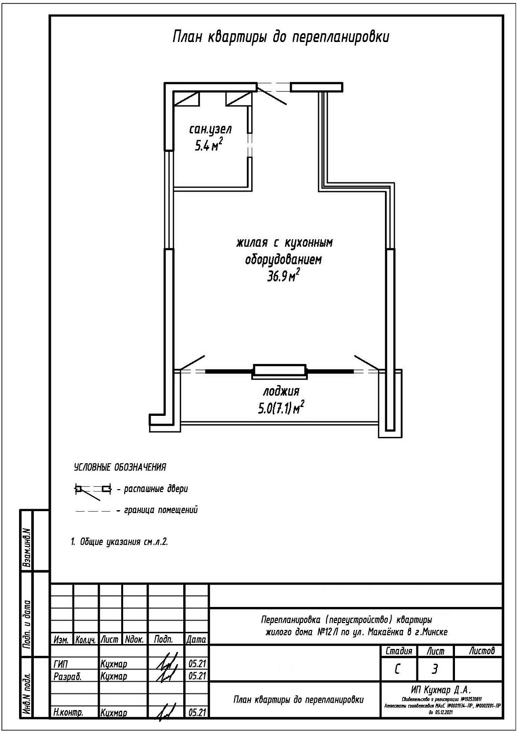
Перепланировка квартиры по ул. Макаёнка, 12Л в ЖК «Vogue»
Пожелания заказчика:
- Смещение и расширение дверного проёма в перегородке между санузлом и жилой с кухонным оборудованием;
- Демонтаж перегородки между санузлом и жилой с кухонным оборудованием с последующим устройством перегородок на части площади жилой с кухонным оборудованием, с целью увеличения площади санузла и устройства прихожей на части площади жилой с кухонным оборудованием;
- Устройство зашивок коммуникаций и инсталляции в санузле;
- Смена направления открывания входной двери.
Нами были разработаны следующие разделы проектной документации для согласования в исполкоме:
- АС - архитектурно-строительные решения.
