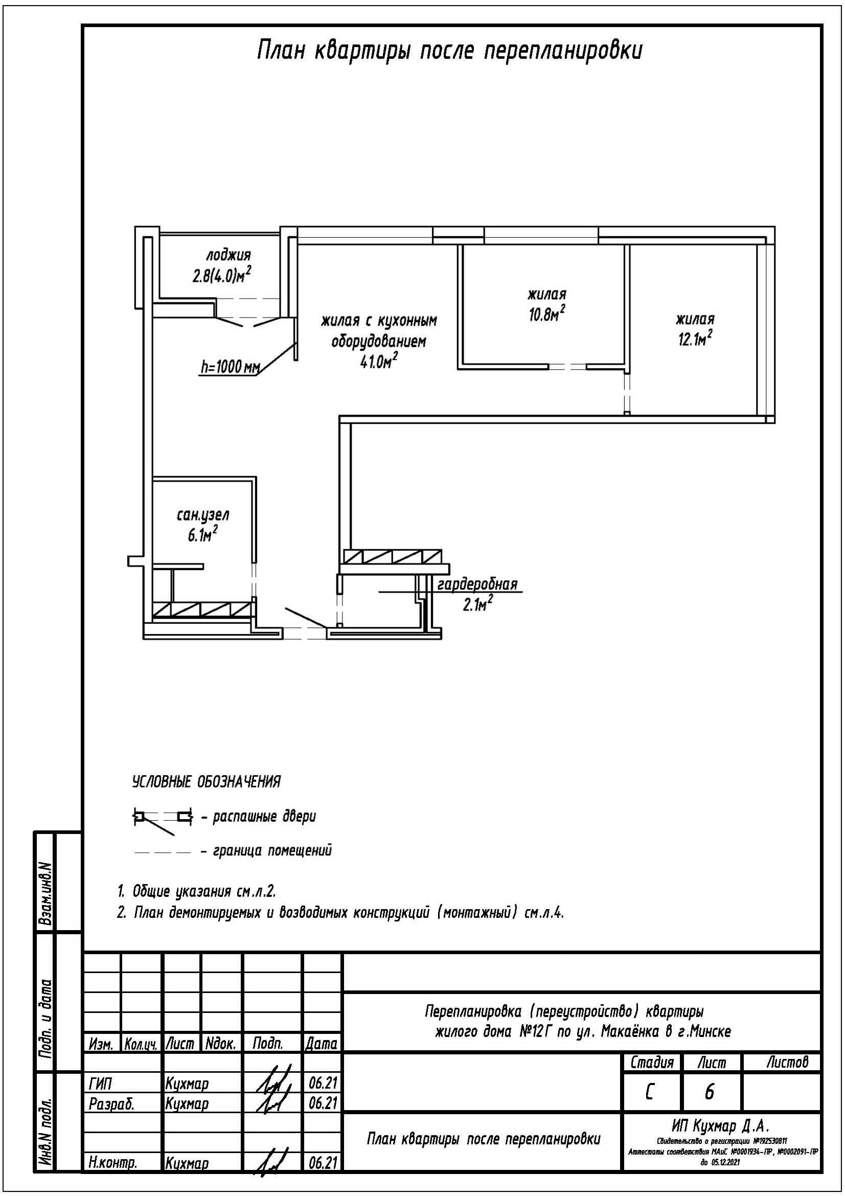
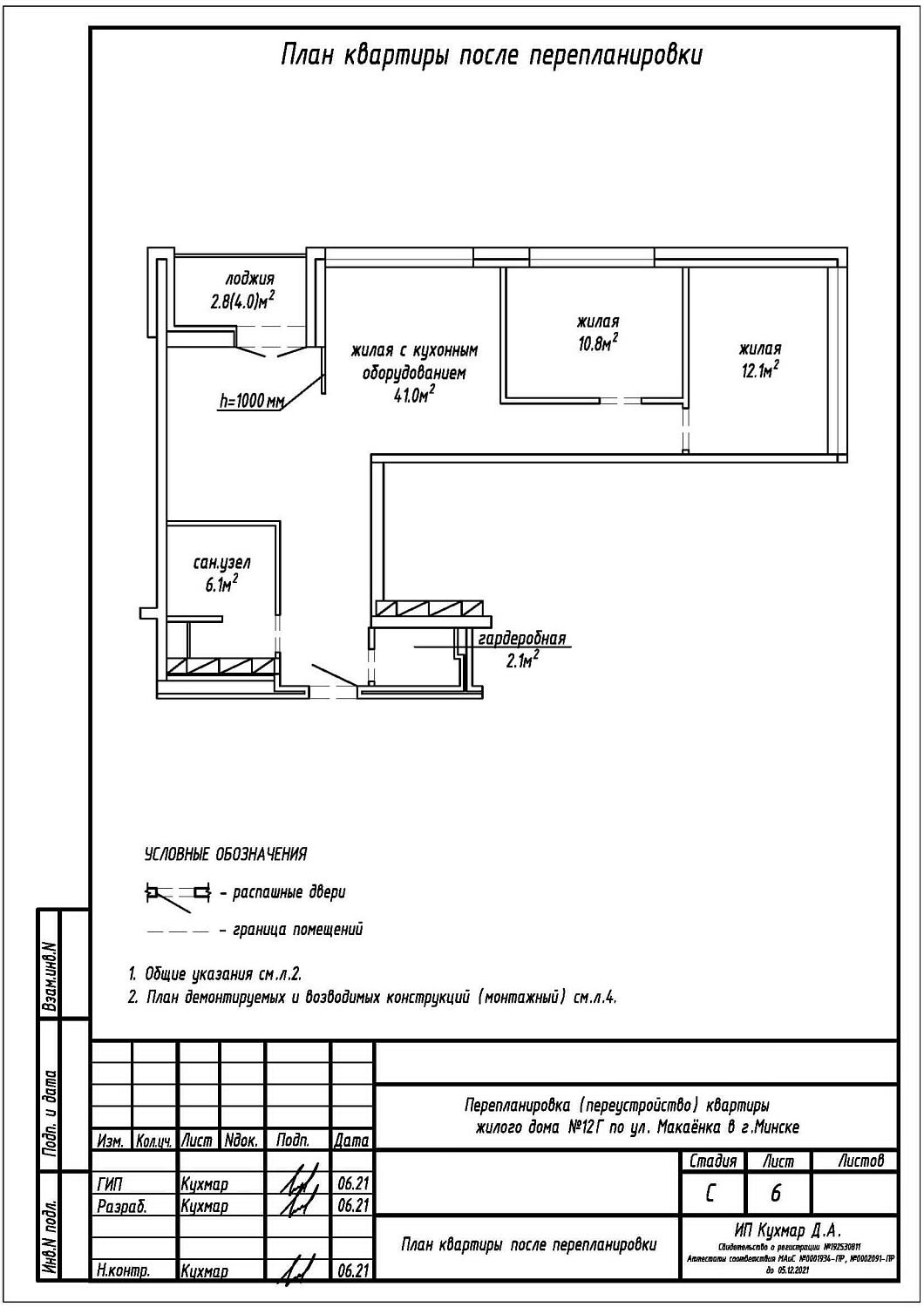
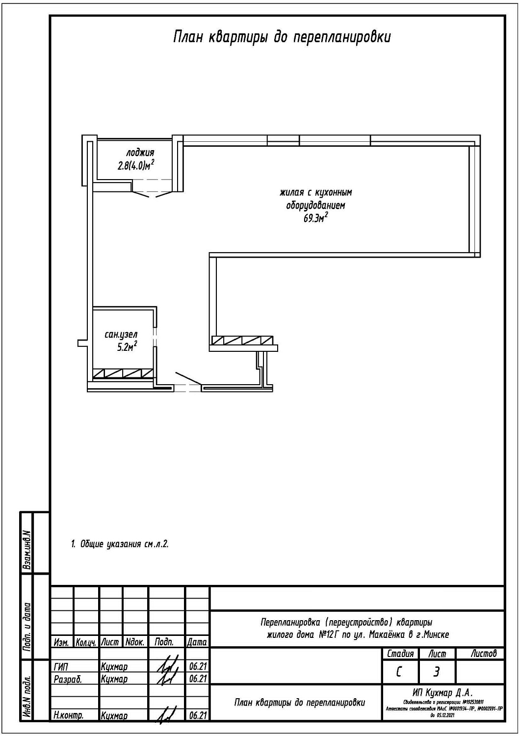
Перепланировка квартиры по ул. Макаёнка, 12Г в ЖК «Vogue»
Пожелания заказчика:
- Разделение общей жилой с кухонным оборудованием на жилую с кухонным оборудованием, две жилые, гардеробную;
- Увеличение площади санузла за счёт площади жилой с кухонным оборудованием, но не более чем на 25%;
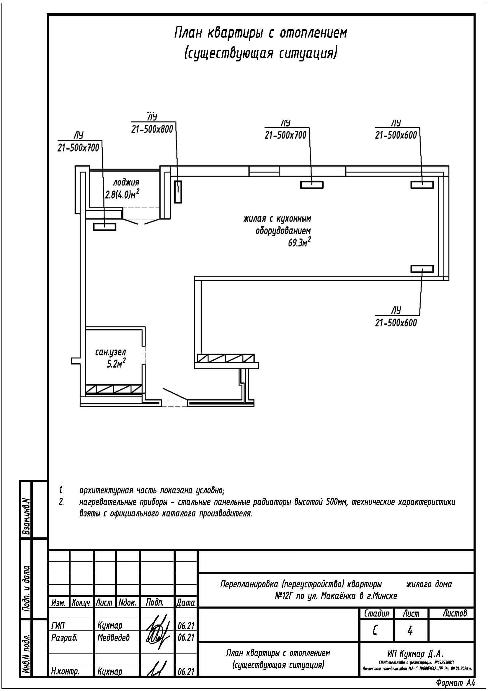
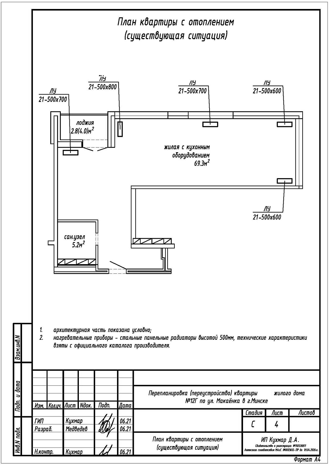
- Перенос и замена отопительных приборов.
Нами были разработаны следующие разделы проектной документации для согласования в исполкоме:
- АС - архитектурно-строительные решения;
- ОВ - отопление и вентиляция.
