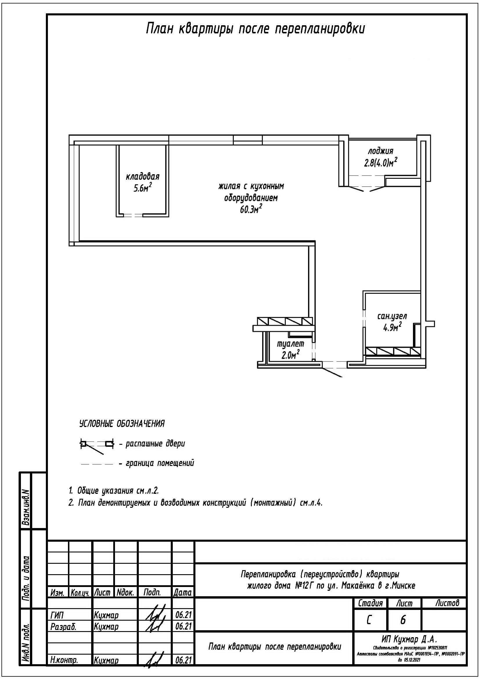
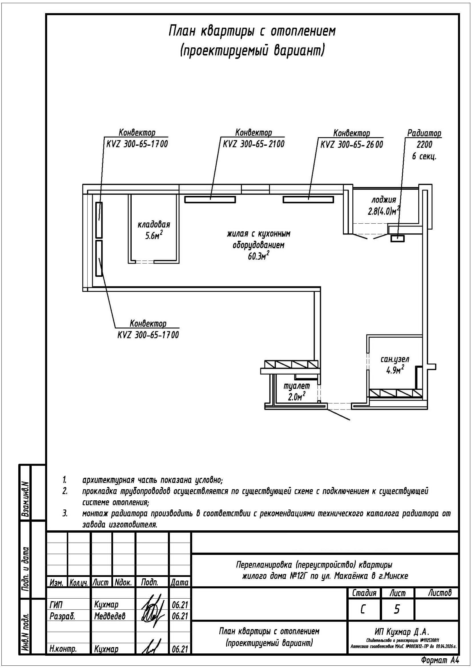
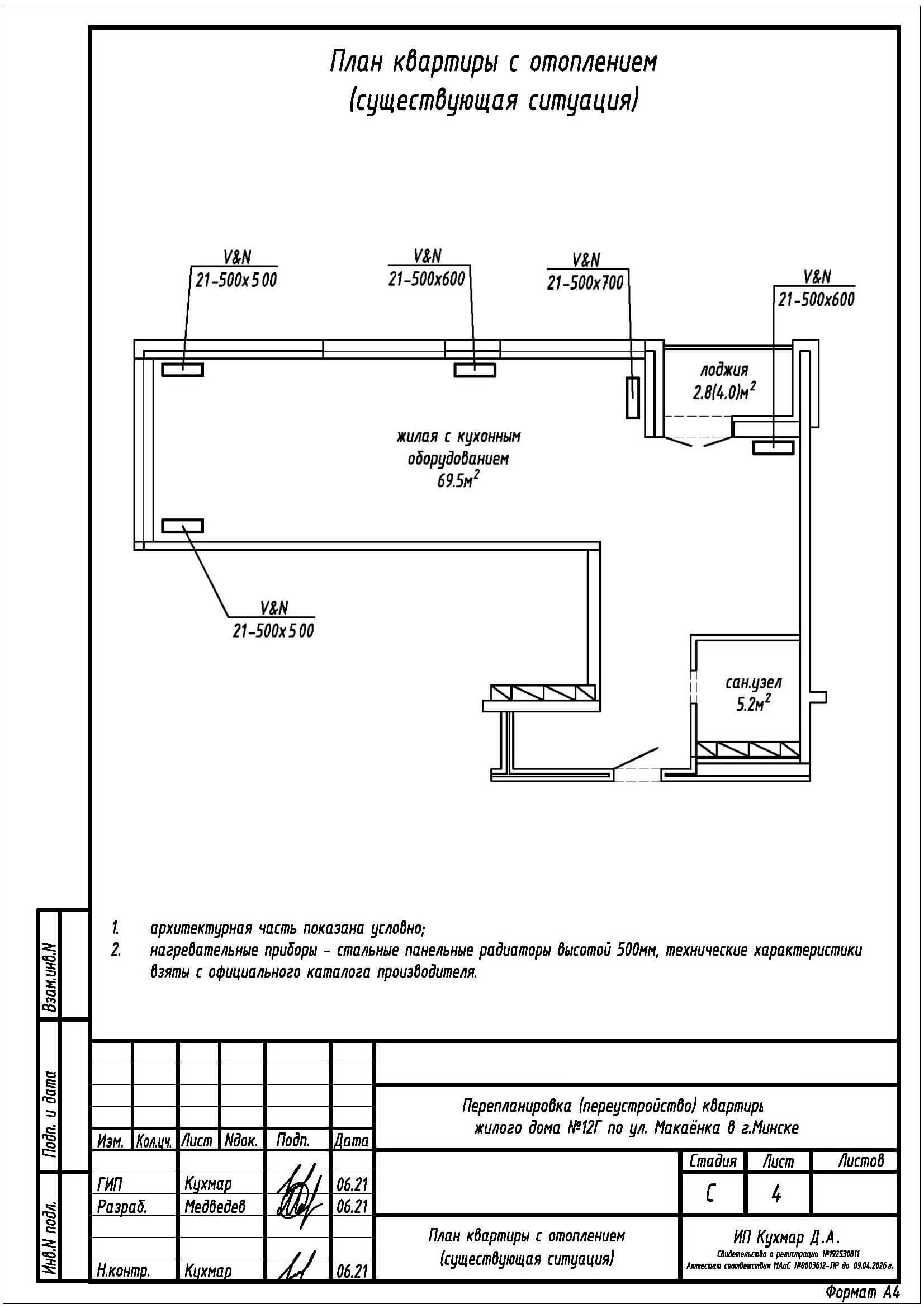
Перепланировка квартиры по ул. Макаёнка, 12Г в ЖК «Vogue»
Пожелания заказчика:
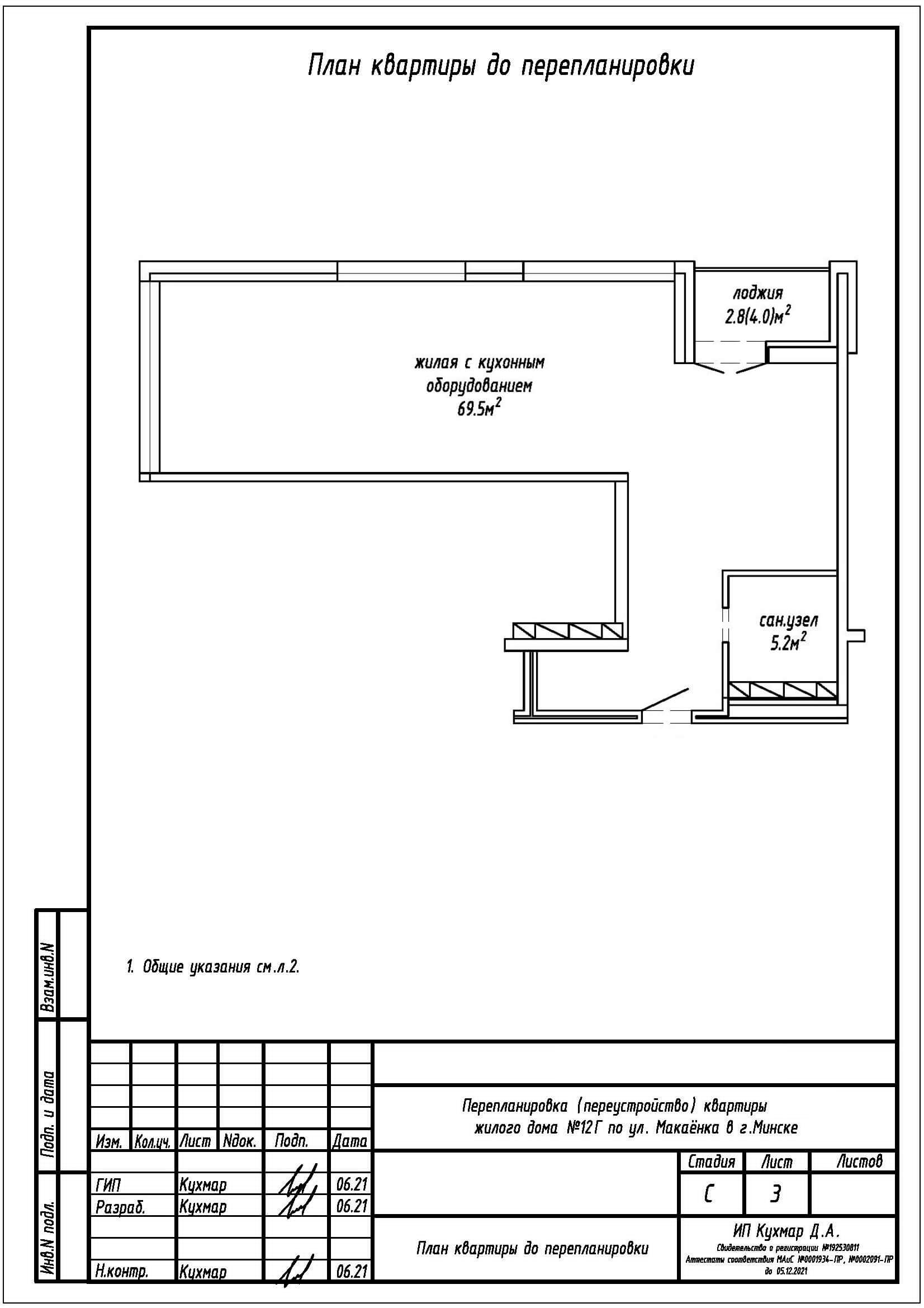
- Устройство кладовой на площади жилой с кухонным оборудованием;
- Устройство отдельного туалета на площади жилой с кухонным оборудованием (согласно строительной документации от застройщика размещение нового туалета осуществляется на площади коридора);
- Замена материала перегородок санузла;
- Смена направления открытия входной двери;
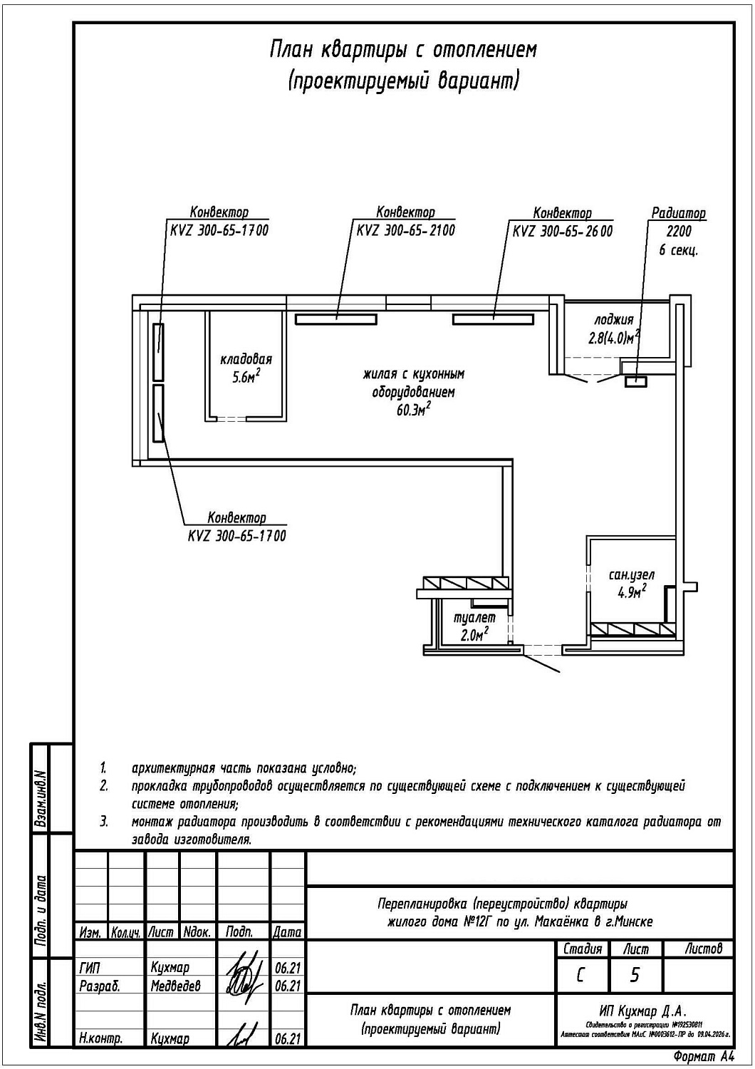
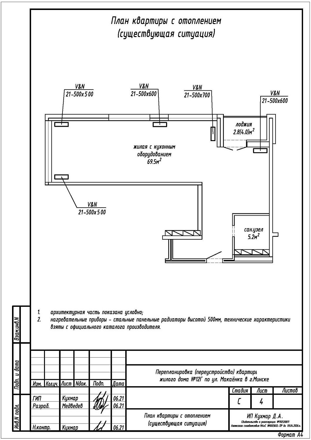
- Замена и перенос отопительных приборов
Нами были разработаны следующие разделы проектной документации для согласования в исполкоме:
- АС - архитектурно-строительные решения;
- ОВ - отопление и вентиляция.
