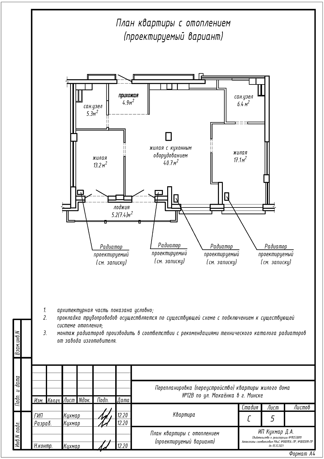
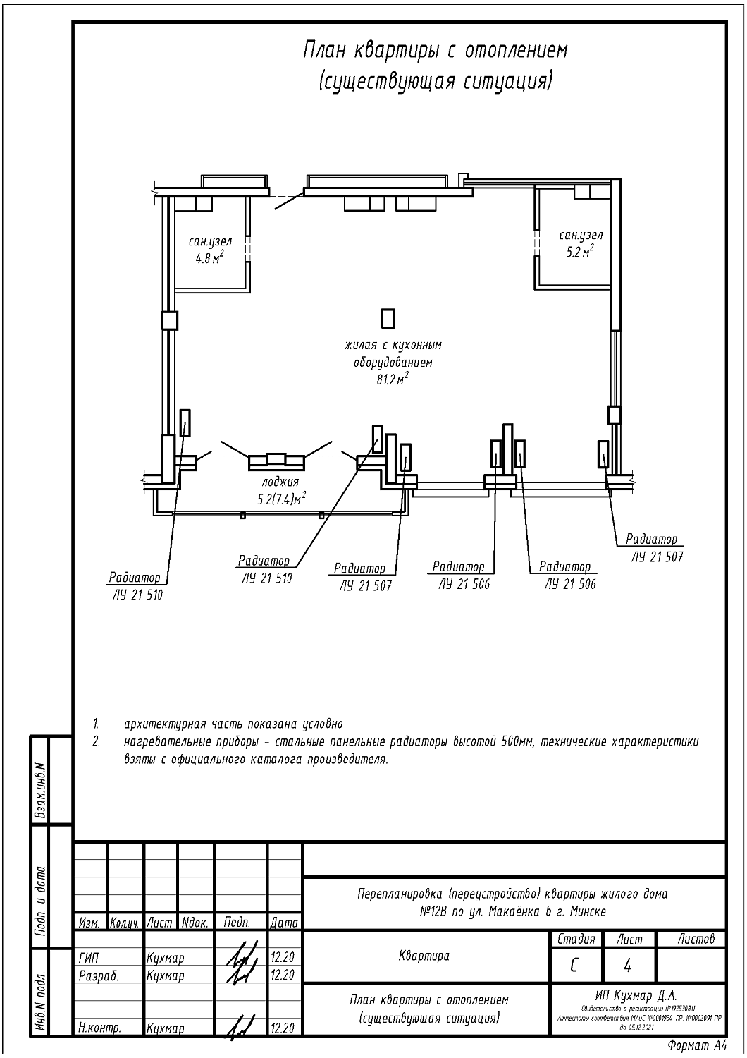
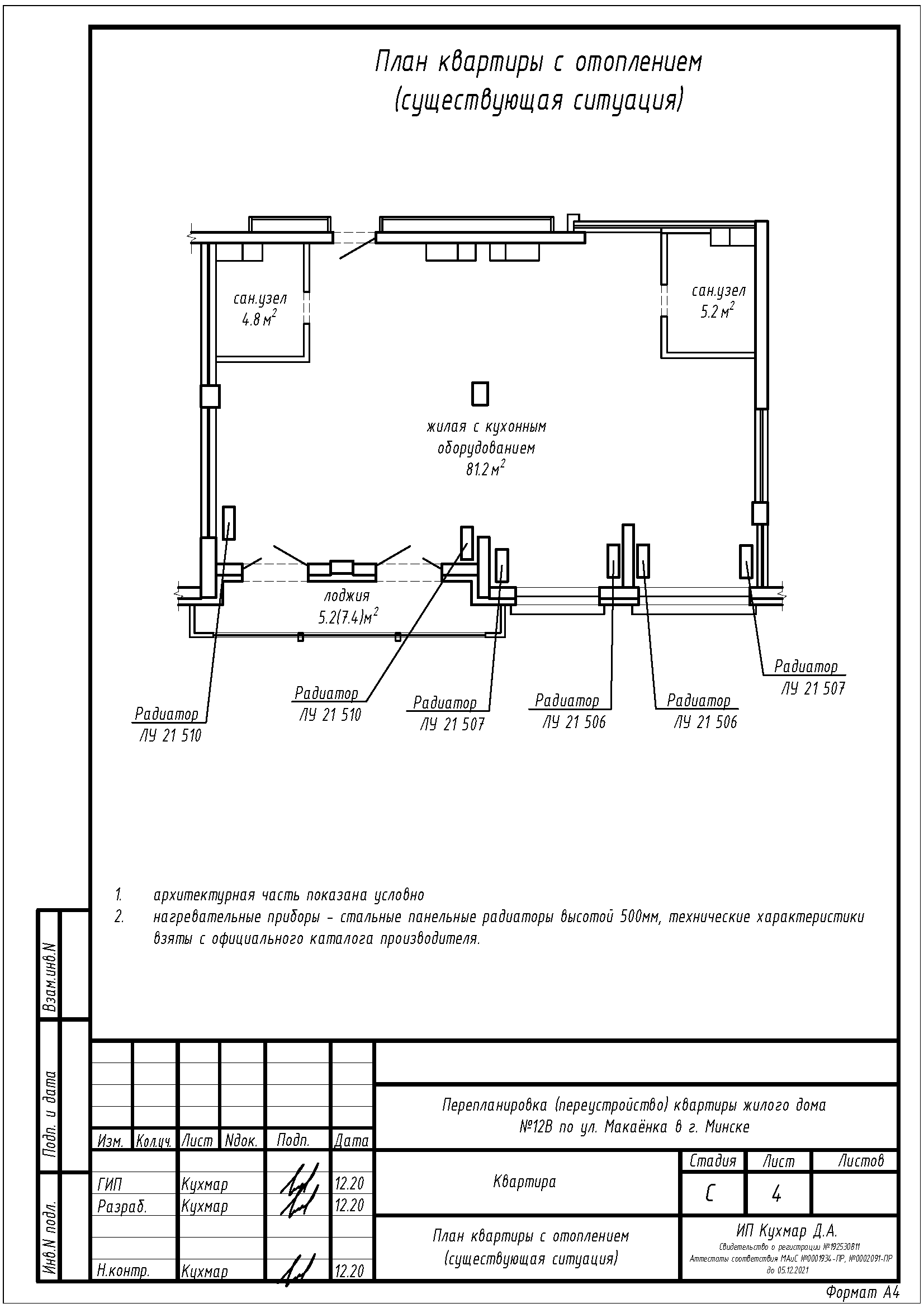
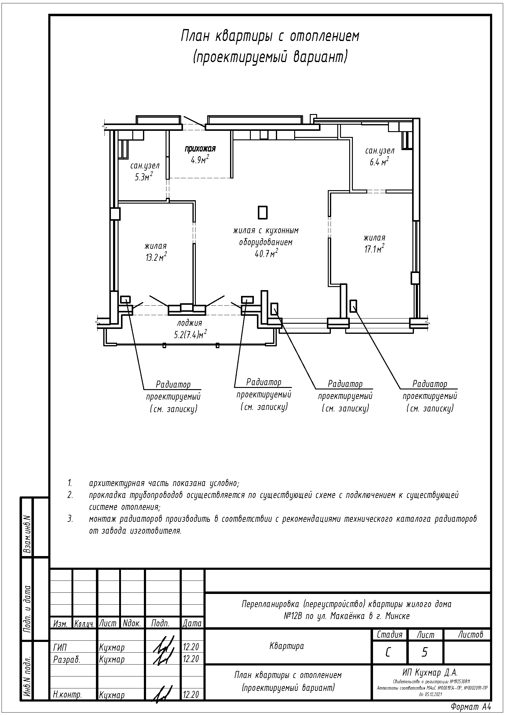
Перепланировка квартиры по ул. Макаёнка, 12В в ЖК «Vogue»
Пожелания заказчика:
- Увеличение санузлов за счет жилой с кухонным оборудованием;
- Разделение общего помещения "жилая с кухонным оборудованием" на 2 отдельные жилые, жилую с кухонным оборудованием, прихожую;
- Замена и перенос радиаторов отопления.
Нами были разработаны следующие разделы проектной документации для согласования в исполкоме:
- АС - архитектурно-строительные решения;
- ОВ - отопление и вентиляция.
