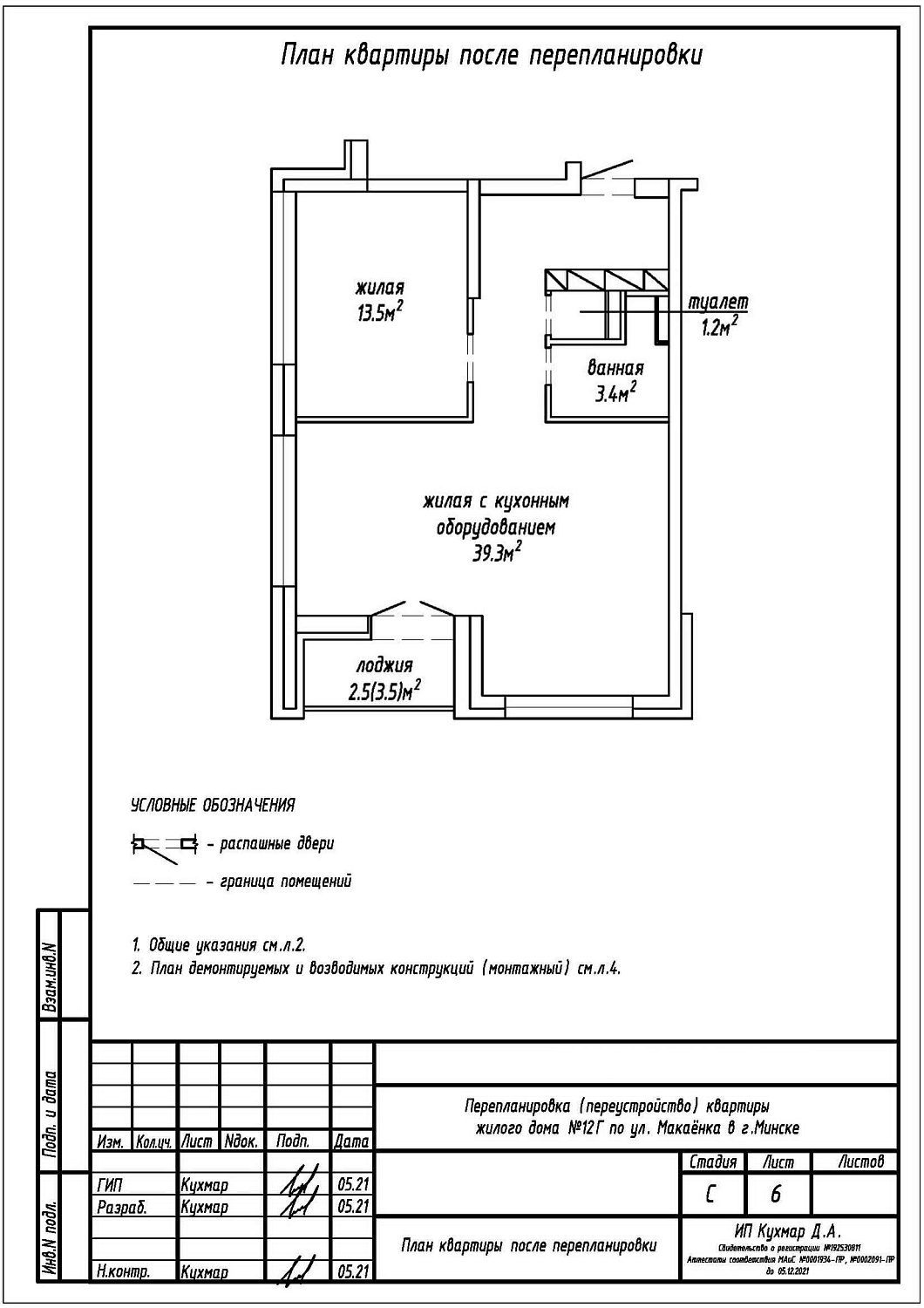
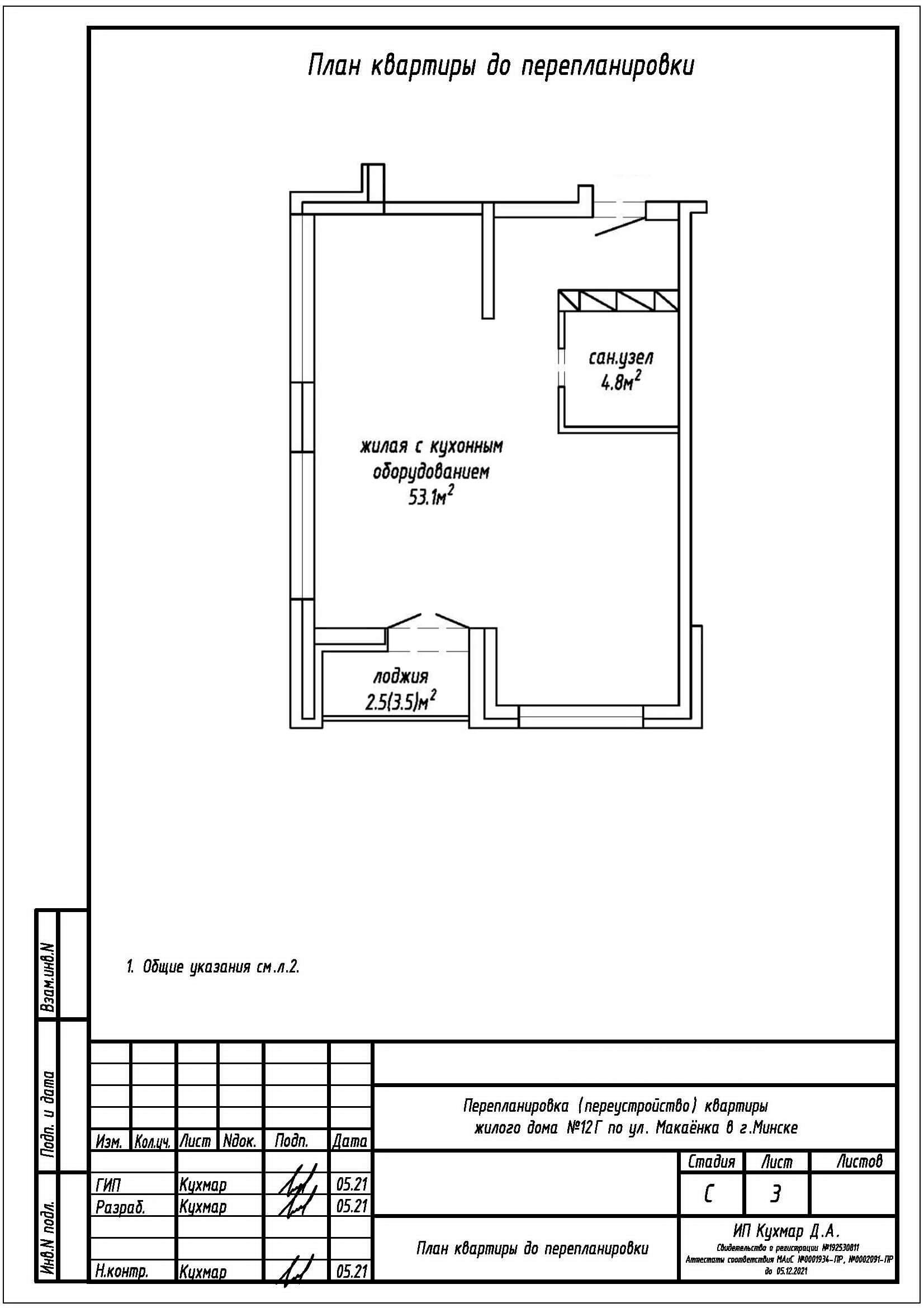
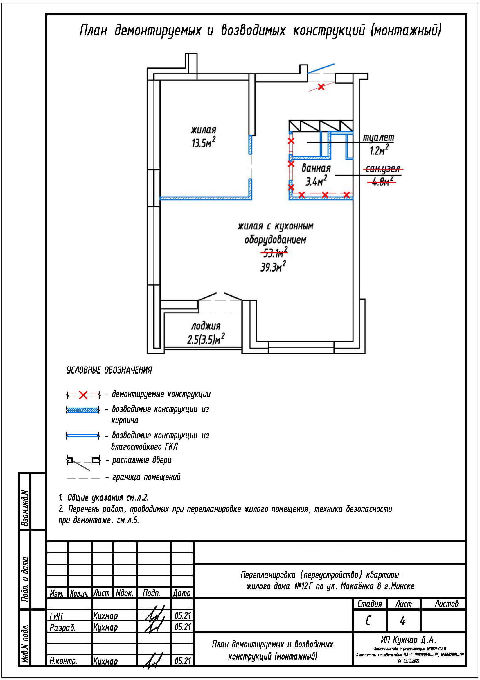
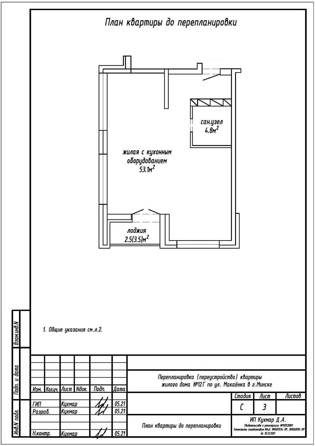
Перепланировка квартиры по ул. Макаёнка, 12Г в ЖК «Vogue»
Пожелания заказчика:
- Разделение общей жилой с кухонным оборудованием на жилую с кухонным оборудованием и жилую;
- Объединение туалета и ванной в единый санузел;
- Замена дверного блока входной двери с направлением открывания.
Нами были разработаны следующие разделы проектной документации для согласования в исполкоме:
- АС - архитектурно-строительные решения.
