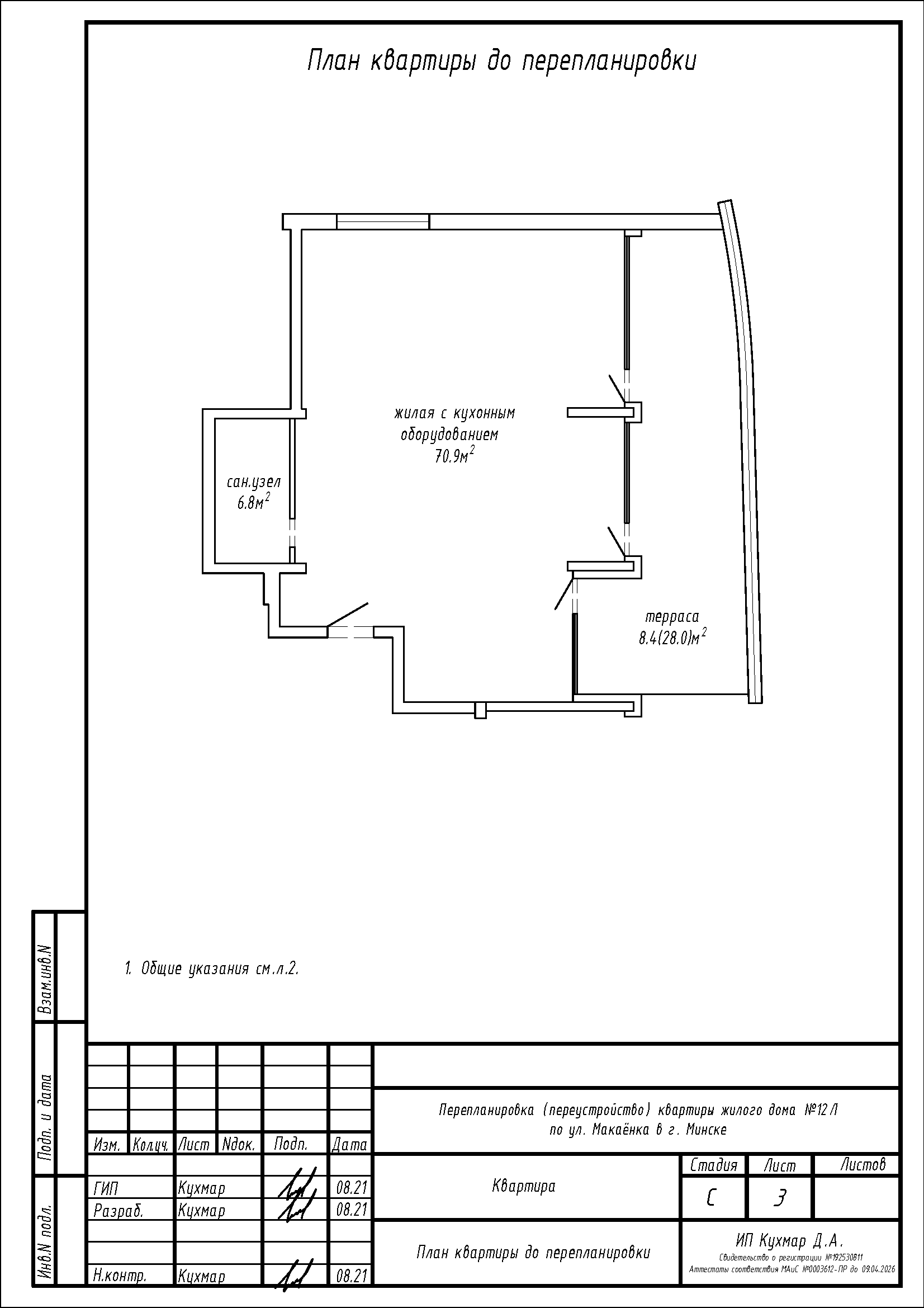
Перепланировка квартиры по ул. Макаёнка, 12Л в ЖК «Vogue»
Пожелания заказчика:
- Разделение общей жилой с кухонным оборудованием на жилую с кухонным оборудованием, три жилые;
- Смена направления открывания входной двери;
- Разделение общего санузла на ванную, постирочную и туалет с целью увеличения за счёт площади жилой с кухонным оборудованием, что является меньше допустимого увеличения;
- Устройство зашивки в санузле.
Нами были разработаны следующие разделы проектной документации для согласования в исполкоме:
- АС - архитектурно-строительные решения.
