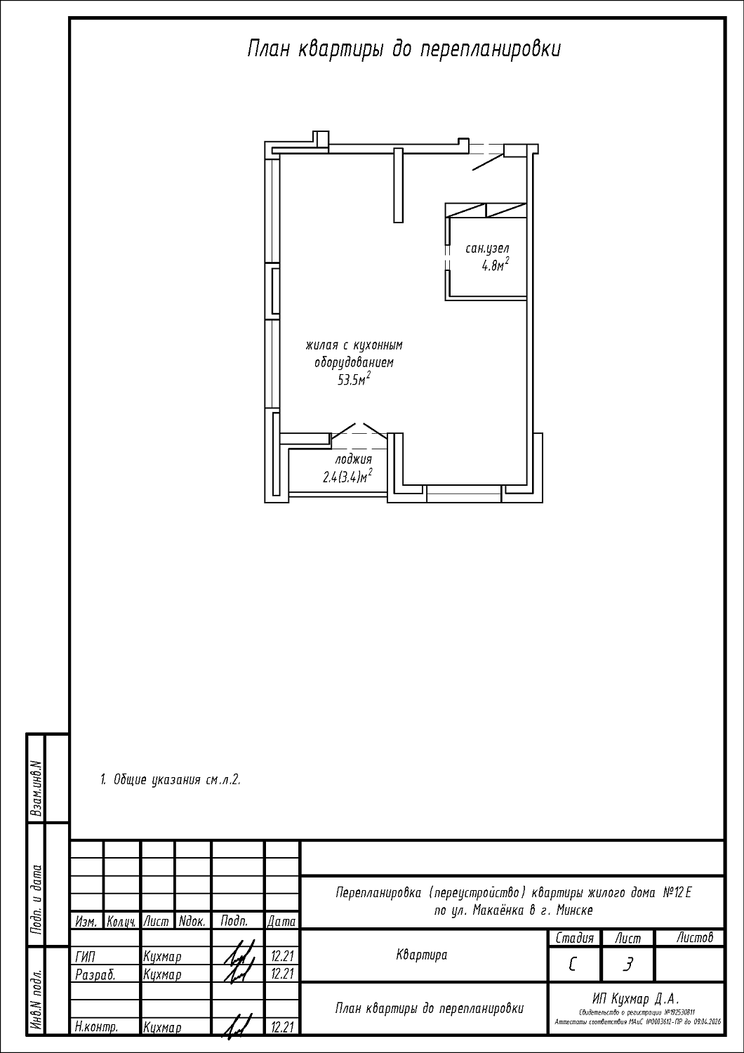
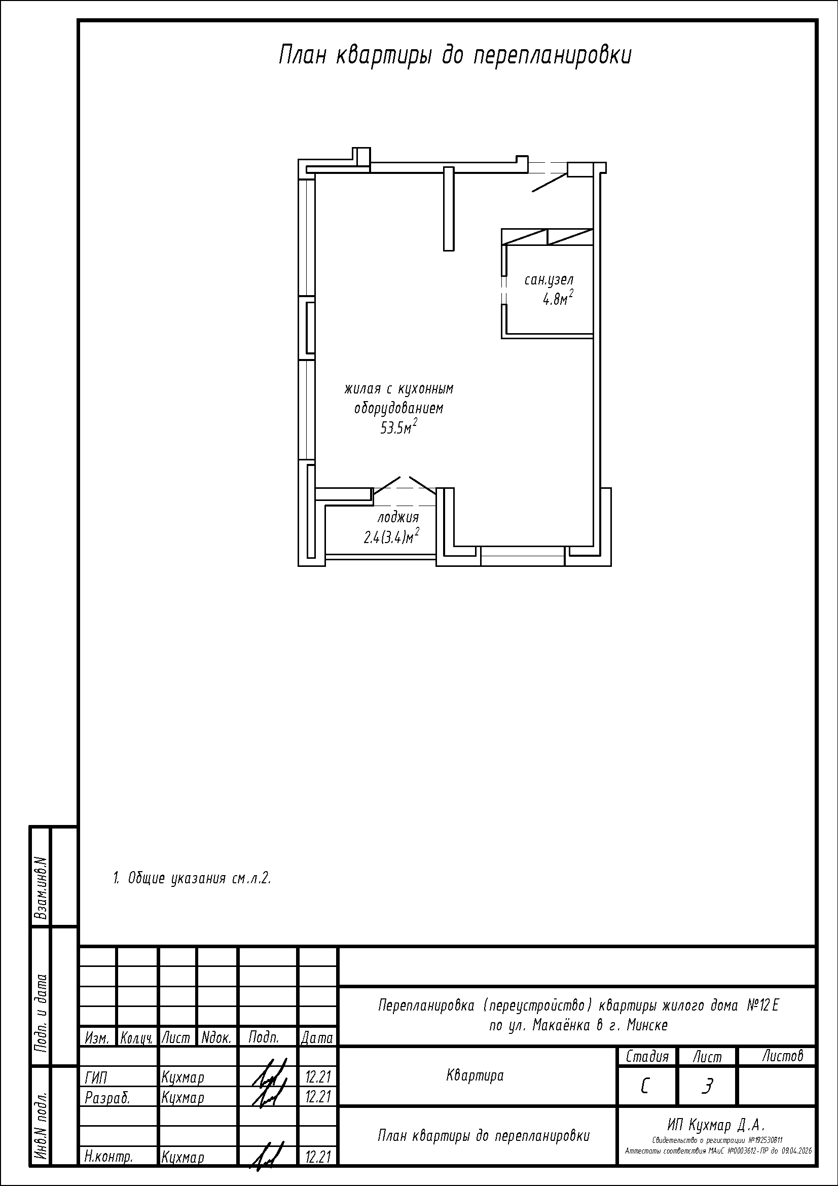
Перепланировка квартиры по ул. Макаёнка, 12Е в ЖК «Vogue»
Пожелания заказчика:
- Разделение общей жилой с кухонным оборудованием на жилую с кухонным оборудованием, две жилые, коридор;
- Смена направления открывания входной двери;
- Разделение санузла на туалет и ванную;
- Увеличение ванной за счёт площади жилой с кухонным оборудованием, но не более чем на 25%;
- Устройство звукоизоляции на части площади жилой с кухонным оборудованием;
- Устройство зашивки коммуникаций и инсталляции на части площади туалета;
- Замена и перенос существующих отопительных приборов.
Нами были разработаны следующие разделы проектной документации для согласования в исполкоме:
- АС - архитектурно-строительные решения;
- ОВ - отопление и вентиляция.
