Размер шрифта
Цвет фона и шрифта
Изображения
Озвучивание текста
Обычная версия сайта
Перепланировка квартир
Полный комплекс услуг по перепланировке квартир в Минске
+375 (44) 535-33-00
+375 (44) 535-33-00
+375 (44) 515-33-00
Заказать звонок
E-mail
inproekt100@gmail.com
Адрес
г. Минск, ул. Чапаева 3, офис 101
Режим работы
Пн. – Пт.: с 9:00 до 18:00
Подать заявку
Услуги
  • Квартиры
    • Дизайн-проект
    • Согласование перепланировки
    • Проект перепланировки
    • Технический надзор за выполнением работ
    • Строительно-монтажные работы
    • Согласование самовольной перепланировки
    • Техническое заключение
    • Обмеры
  • Нежилые помещения
    • Перепланировка, модернизация, реконструкция помещений
    • Обмеры нежилых помещений
  • Мастер-классы
    • Мастер-класс по перепланировке для дизайнеров
    • Мастер-класс по перепланировке для дизайнеров
Акции
Проекты
  • Санузлы
  • Батареи
  • Антресоль
  • Газ на электро
  • Дизайн
  • Кухня в жилую
  • Нежилые
  • Объединение / разделение квартир
  • Проём в несущей
Отзывы
Статьи
Мастер-класс
О нас
  • Лицензии
  • Сотрудники
  • Отзывы
Контакты
г. Минск, ул. Чапаева 3, офис 101
...
+375 (44) 535-33-00
+375 (44) 535-33-00
+375 (44) 515-33-00
Заказать звонок
E-mail
inproekt100@gmail.com
Адрес
г. Минск, ул. Чапаева 3, офис 101
Режим работы
Пн. – Пт.: с 9:00 до 18:00
Заказать звонок
Перепланировка квартир
Услуги
  • Квартиры
    Квартиры
    • Дизайн-проект
    • Согласование перепланировки
    • Проект перепланировки
    • Технический надзор за выполнением работ
    • Строительно-монтажные работы
    • Согласование самовольной перепланировки
    • Техническое заключение
    • Обмеры
  • Нежилые помещения
    Нежилые помещения
    • Перепланировка, модернизация, реконструкция помещений
    • Обмеры нежилых помещений
  • Мастер-классы
    Мастер-классы
    • Мастер-класс по перепланировке для дизайнеров
    • Мастер-класс по перепланировке для дизайнеров
Акции
Проекты
  • Санузлы
  • Батареи
  • Антресоль
  • Газ на электро
  • Дизайн
  • Кухня в жилую
  • Нежилые
  • Объединение / разделение квартир
  • Проём в несущей
Отзывы
Статьи
Мастер-класс
О нас
  • Лицензии
  • Сотрудники
  • Отзывы
Контакты
    Подать заявку
    Перепланировка квартир
    Услуги
    • Квартиры
      Квартиры
      • Дизайн-проект
      • Согласование перепланировки
      • Проект перепланировки
      • Технический надзор за выполнением работ
      • Строительно-монтажные работы
      • Согласование самовольной перепланировки
      • Техническое заключение
      • Обмеры
    • Нежилые помещения
      Нежилые помещения
      • Перепланировка, модернизация, реконструкция помещений
      • Обмеры нежилых помещений
    • Мастер-классы
      Мастер-классы
      • Мастер-класс по перепланировке для дизайнеров
      • Мастер-класс по перепланировке для дизайнеров
    Акции
    Проекты
    • Санузлы
    • Батареи
    • Антресоль
    • Газ на электро
    • Дизайн
    • Кухня в жилую
    • Нежилые
    • Объединение / разделение квартир
    • Проём в несущей
    Отзывы
    Статьи
    Мастер-класс
    О нас
    • Лицензии
    • Сотрудники
    • Отзывы
    Контакты
      +375 (44) 535-33-00
      +375 (44) 515-33-00
      Заказать звонок
      E-mail
      inproekt100@gmail.com
      Адрес
      г. Минск, ул. Чапаева 3, офис 101
      Режим работы
      Пн. – Пт.: с 9:00 до 18:00
      Подать заявку
      Перепланировка квартир
      Телефоны
      +375 (44) 535-33-00
      +375 (44) 515-33-00
      Заказать звонок
      Перепланировка квартир
      • Услуги
        • Услуги
        • Квартиры
          • Квартиры
          • Дизайн-проект
          • Согласование перепланировки
          • Проект перепланировки
          • Технический надзор за выполнением работ
          • Строительно-монтажные работы
          • Согласование самовольной перепланировки
          • Техническое заключение
          • Обмеры
        • Нежилые помещения
          • Нежилые помещения
          • Перепланировка, модернизация, реконструкция помещений
          • Обмеры нежилых помещений
        • Мастер-классы
          • Мастер-классы
          • Мастер-класс по перепланировке для дизайнеров
          • Мастер-класс по перепланировке для дизайнеров
      • Акции
      • Проекты
        • Проекты
        • Санузлы
        • Батареи
        • Антресоль
        • Газ на электро
        • Дизайн
        • Кухня в жилую
        • Нежилые
        • Объединение / разделение квартир
        • Проём в несущей
      • Отзывы
      • Статьи
      • Мастер-класс
      • О нас
        • О нас
        • Лицензии
        • Сотрудники
        • Отзывы
      • Контакты
      Подать заявку
      • +375 (44) 535-33-00
        • Телефоны
        • +375 (44) 535-33-00
        • +375 (44) 515-33-00
        • Заказать звонок
      • г. Минск, ул. Чапаева 3, офис 101
      • inproekt100@gmail.com
      • Пн. – Пт.: с 9:00 до 18:00
      Санузлы

      ул. Лещинского, 25_1

      Перепланировка квартиры в г. Минске:
      psd_1.png Комплекс услуг: Проект
      projekt_1.png Разделы проекта: АС
      location_1.png Место: Фрунзенский район
      JK_1.png ЖК: 
      Подробнее
      ул. Лещинского, 25_1
      Фотогалерея
      4 —
      1/4 —
      ул. Лещинского, 25_1
      ул. Лещинского, 25_1
      ул. Лещинского, 25_1
      ул. Лещинского, 25_1
      ул. Лещинского, 25_1
      ул. Лещинского, 25_1
      ул. Лещинского, 25_1
      ул. Лещинского, 25_1
      Оформите заявку на проект, мы свяжемся с вами в ближайшее время и ответим на все интересующие вопросы.
      Заказать проект
      ?
      • Описание
      • Вопросы и ответы

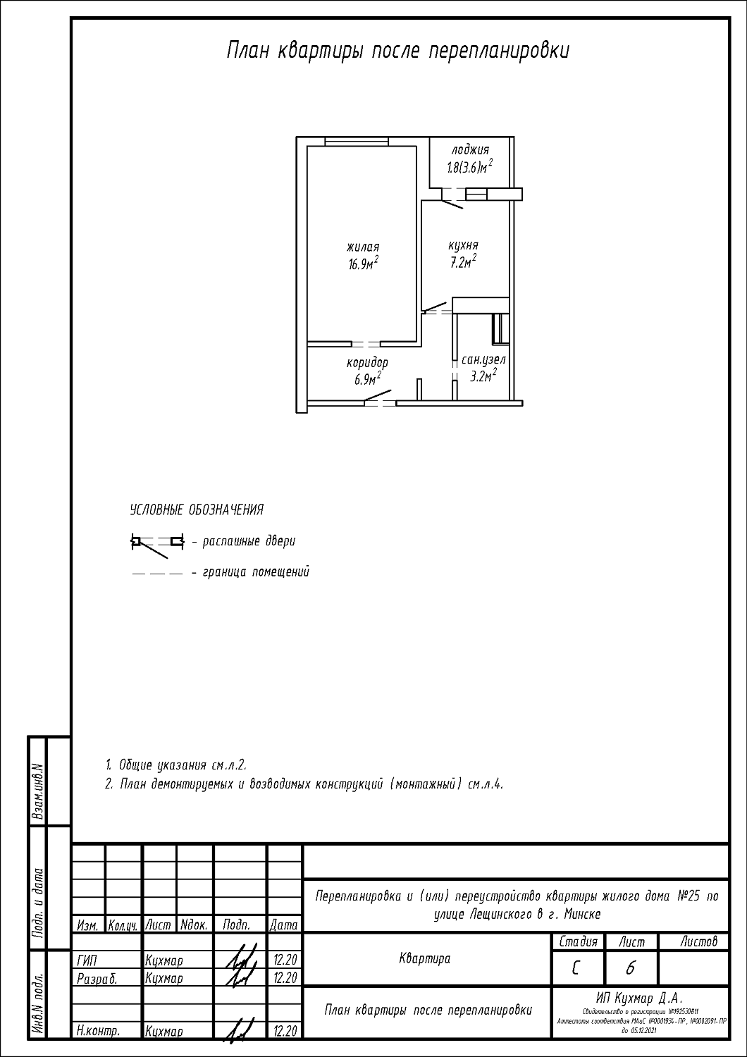
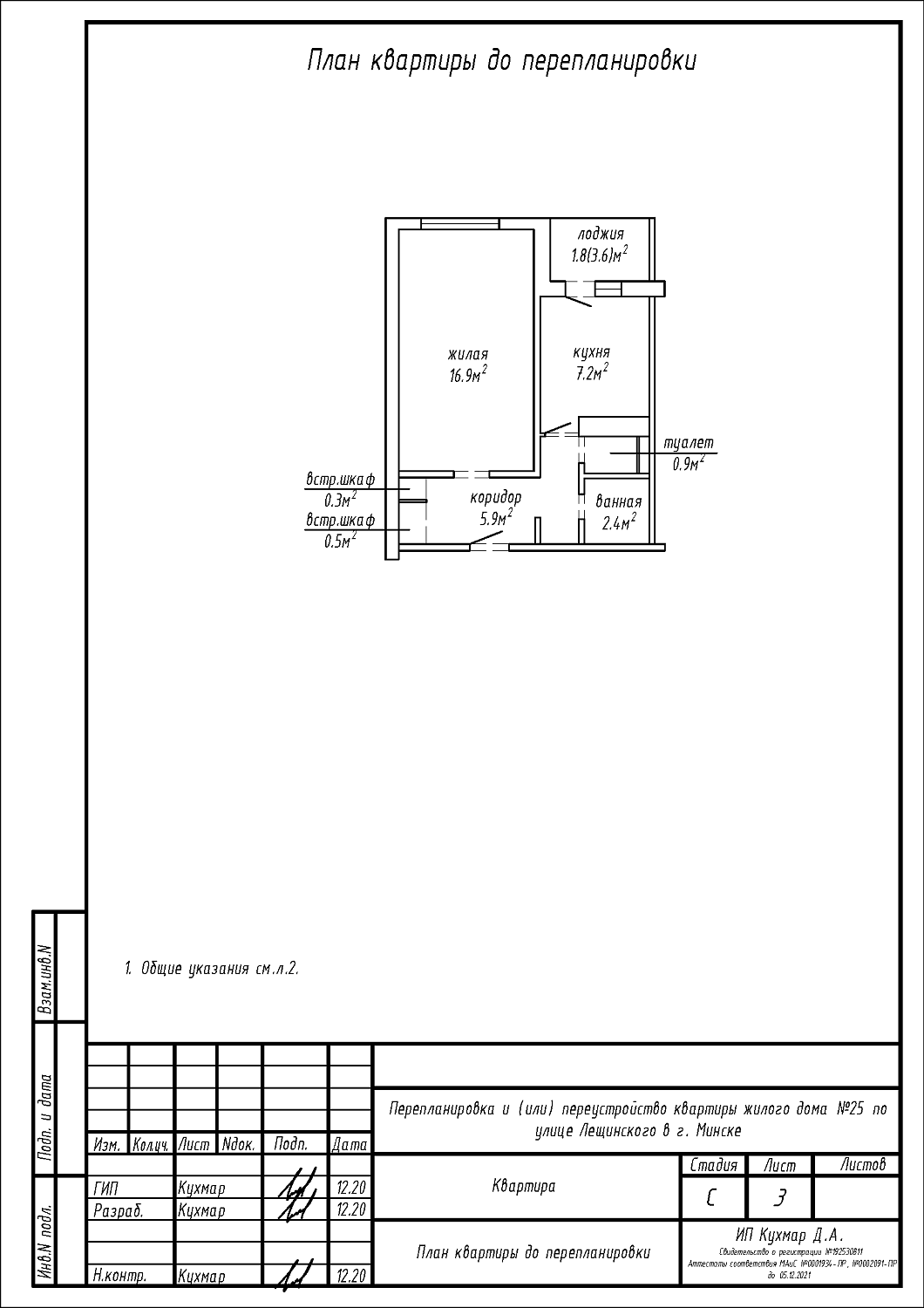
      Перепланировка квартиры по ул. Лещинского, 25 в г. Минске

      Пожелания заказчика:

      1. Объединение ванной и туалета в единый санузел;
      2. Демонтаж встроенных шкафов в коридоре.

      Нами были разработаны следующие разделы проектной документации для согласования в исполкоме:

      • АС - архитектурно-строительные решения.
      Вопросы и ответы
      Что относится к переустройству и (или) перепланировке?

      Согласно Постановлению Совета Министров Республики Беларусь №384 к работам по переустройству и (или) перепланировке относятся:

      • замена или перенос систем газоснабжения, центрального отопления, мусороудаления, газоудаления;
      • устройство гидро-, паро-, тепло- и звукоизоляции;
      • изменения в несущих конструкциях;
      • изменение площади, количества жилых комнат и подсобных помещений в квартире за счет разборки существующих и (или) устройства новых перегородок;
      • изменение площади и количества помещений в изолированных нежилых помещениях за счет разборки существующих и (или) устройства новых перегородок;
      • устройство, увеличение проемов в ненесущих стенах и перегородках.

      Простыми словами, все что изменяет планировочное решение вашей квартиры будет считаться перепланировкой. Плюс, вмешательства в игженерные системы отопления, газоснабжения дома.

      Иные работы не являются работами по переустройству и (или) перепланировке.

      Когда не нужен проект перепланировки, но необходимо разрешение (согласование) администрации исполкома района?

      Проект не нужен, если вы планируете следующие работы:

      • изменение площади, количества жилых комнат и подсобных помещений в квартире за счет разборки существующих и (или) устройства новых перегородок;
      • изменение площади и количества помещений в изолированных нежилых помещениях за счет разборки существующих и (или) устройства новых перегородок;
      • устройство, увеличение проемов в ненесущих стенах и перегородках.
      У кого нужно согласовывать проект перепланировки?

      Проект нужно согласовать в обслуживающей организации (товариществе собственников либо ЖЭС) и «Одном Окне» администрации вашего района.

      Дополнительно (при необходимости):

      • если затрагиваются несущие конструкции, то дополнительно необходимо получить согласование проекта в РУП «Госстройэкспертиза»;
      • если в квартире установлена газовая плита, то дополнительно необходимо согласование в УП «Мингаз»;
      • если планируется переход с газовой плиты на электрическую, проект дополнительно согласовывается в Госэнергонадзоре и Энергосбыте.
      Хочу увеличить площадь санузла. Какие есть нюансы?

      Допускается увеличение санузлов за счет площади нежилых помещений (коридор, прихожая, кладовая, гардеробная) без ограничений по площади.

      Частичное размещение одного из помещений санузла (не более 25% его площади) над жилой комнатой разрешается, если выполнены мероприятия по повышению гидро- и звукоизоляции конструкции пола этого санузла.

      Не допускается размещать санузлы непосредственно над жилыми комнатами и кухнями. Размещение санузла над кухней допускается в многоуровневых квартирах в случае, когда санузел и кухня входят в состав одной квартиры.

      На всей площади санузла должна быть реализована гидроизоляция.

      Карта
      загрузка карты...
      Сопутствующие услуги
      Проект перепланировки
      Разработка проектной документации для согласования перепланировки, реконструкции квартиры.
      от 400 BYN
      Технический надзор за выполнением работ
      Технический надзор за выполнением строительно-монтажных работ по перепланировке, реконструкции квартиры.
      от 300 BYN
      Строительно-монтажные работы
      Аттестованный подряд на выполнение работ по отопительным приборам, гидроизоляции, усилению проемов в несущих стенах и прочие виды скрытых работ. Черновые и чистовые сторительно-монтаные работы.
      от 300 BYN
      Похожие проекты
      Санузлы
      ул. Захарова, 77А
      Перепланировка квартиры в г. Минске:
      psd_1.png Комплекс услуг: Проект
      projekt_1.png Разделы проекта: АС
      location_1.png Место: Партизанский район
      JK_1.png ЖК: 
      Проём в несущей, Санузлы
      ул. Плеханова, 57
      Перепланировка квартиры в г. Минске:
      psd_1.png Комплекс услуг: Проект
      projekt_1.png Разделы проекта: АС
      location_1.png Место: Ленинский р-н
      JK_1.png ЖК:
      Санузлы
      ул. Лещинского, 25
      Перепланировка квартиры в г. Минске:
      psd_1.png Комплекс услуг: Проект
      projekt_1.png Разделы проекта: АС
      location_1.png Место: Фрунзенский р-н
      JK_1.png ЖК: 
      Статьи
      5 июня 2023
      Алгоритм согласования перепланировки квартиры 2023
      Как согласовать перепланировку квартиры в Беларуси в 2023 году? Подробный алгоритм и ответы на важные вопросы в нашей статье.
      24 апреля 2020
      7 основных этапов согласования перепланировки квартиры
      Какой процесс прохождения согласования перепланировки квартиры в Беларуси? Узнайте про основные этапы в данной статье.
      24 декабря 2019
      Проект на гидроизоляцию
      Назад к списку

      +375 (44) 535-33-00
      +375 (44) 535-33-00
      +375 (44) 515-33-00
      Заказать звонок
      E-mail
      inproekt100@gmail.com
      Адрес
      г. Минск, ул. Чапаева 3, офис 101
      Режим работы
      Пн. – Пт.: с 9:00 до 18:00
      Заказать звонок
      inproekt100@gmail.com
      г. Минск, ул. Чапаева 3, офис 101
      Услуги
      Квартиры
      Нежилые помещения
      Мастер-классы
      Компания
      Лицензии
      Сотрудники
      Отзывы
      Информация
      Вопрос-ответ
      Как оформить заказ
      платежные системы 1.png
      © 2026 Pereplan.by
      Общество с ограниченной ответственностью «А4-Проект»
      Свидетельство о государственной регистрации 193093030 выдано 13.06.2018 Минским горисполкомом.
      Юр. Адрес: Беларусь, г.Минск, ул. Чапаева, 3-101.
      Политика конфиденциальности
      Договор оферты
      Главная Услуги Проекты Лицензии Статьи FAQ Скидки Отзывы Поиск Сотрудники Контакты