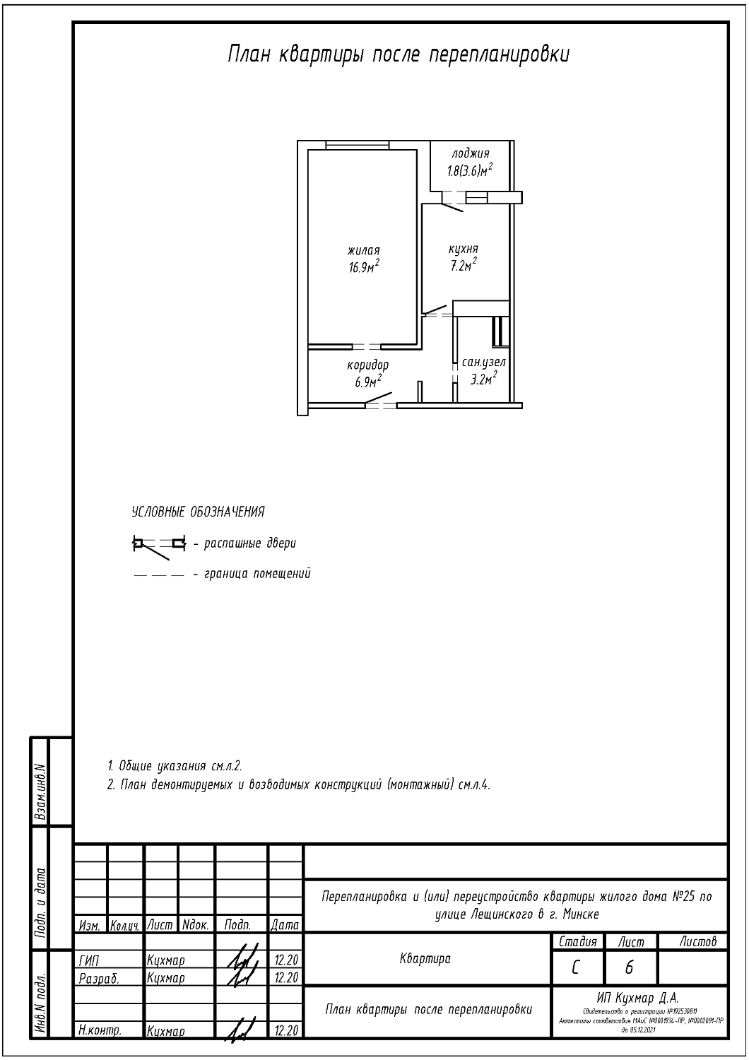
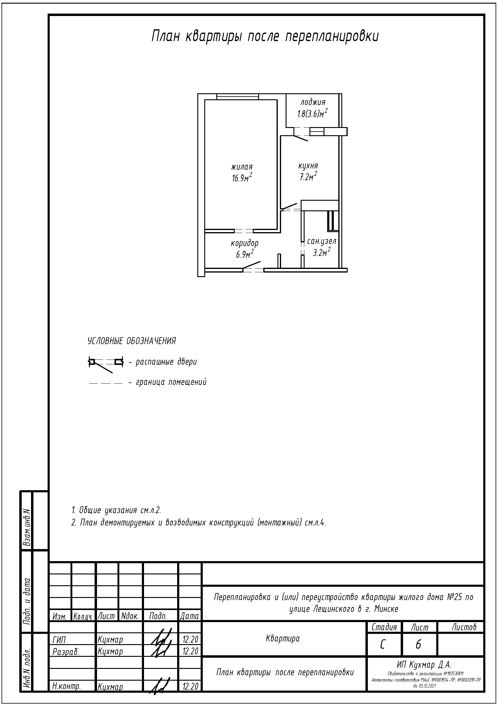
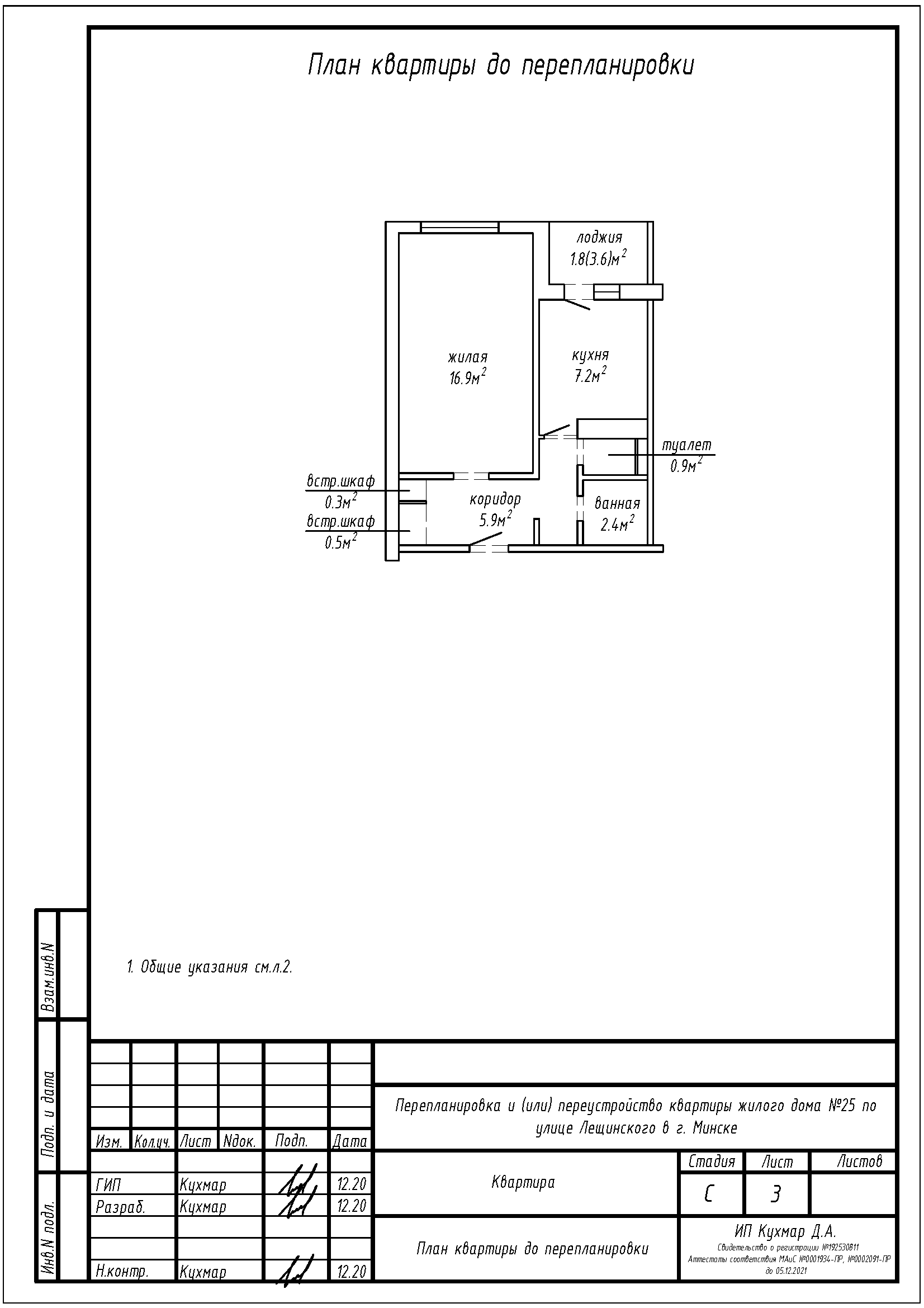
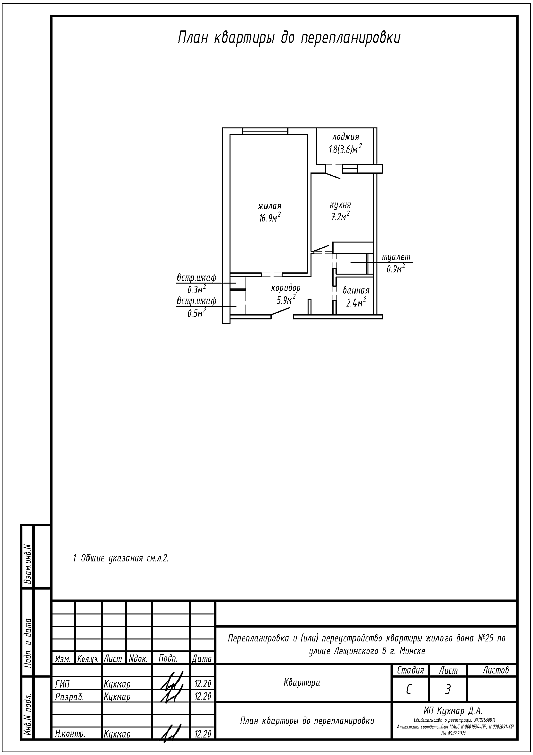
Перепланировка квартиры по ул. Лещинского, 25 в г. Минске
Пожелания заказчика:
- Объединение ванной и туалета в единый санузел;
- Демонтаж встроенных шкафов.
Нами были разработаны следующие разделы проектной документации для согласования в исполкоме:
- АС - архитектурно-строительные решения.
